339 875 Р 4 340 $ или 3 690

Информация о помещении и здании

2
Этаж
3
Этажность
Развернуть
Агент
+7 (986) 274-27-15
Начать чат с агентом

Офис в Москва ул. Водников, 2С2 (272 м)

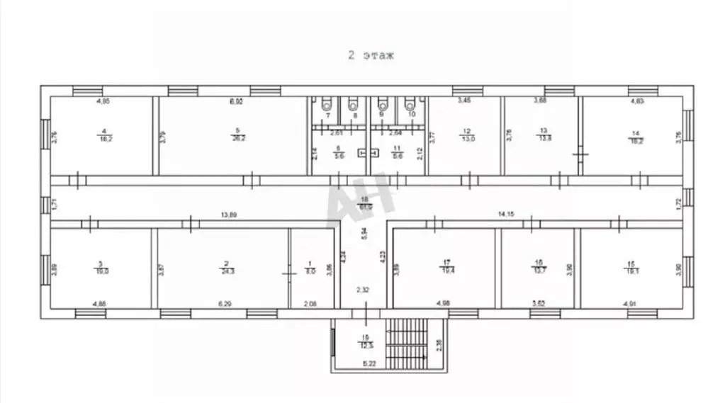
ЛотПредложение от Собственника Предлагается в аренду офисный блок общей площадью 271.9 кв. м. на 2 этаже (полностью этаж).Ул. Водников, д. 2, стр. 17. Кабинетная планировка, которую возможно изменить по предварительному согласованию. Два санузла расположены непосредственно на этаже. Электроснабжение составляет 15 кВт. Объект находится на территории бизнес-парка Водники , обладающей собственной благоустроенной территорией.Действует упрощенная система налогообложения. Заключается краткосрочный договор аренды сроком на 11 месяцев. Страховой депозит в размере двух месяцев базовой арендной платы. Инфраструктура бизнес-парка включает фитнес-клуб с бассейном, магазин, кафе и кафетерий самообслуживания. Режим доступа: пеший вход свободный с 7:00 до 23:00, въезд автотранспорта осуществляется по пропускам или на основании поданных заявок. До объекта удобно добраться общественным транспортом. От метро Спартак пешая доступность составляет 12 минут. От станций метро Сходненская и Сокол следует трамвай 6 до остановки Канал им. Москвы . От метро Сокол также курсирует автобус 356 до той же остановки. В цену включено: НДС 5 . В цену не включено: затраты на электричество, коммунальные расходы, уборка. Обеспечительный платеж 2 месяцa.Чтобы получить ПОДРОБНУЮ ПРЕЗЕНТАЦИЮ С ПЛАНИРОВКОЙ И ФОТОГРАФИЯМИ, звоните или отправьте свой email и номер телефона в сообщении на портале. Высылаем в течение 15 минут по запросу Конт. лицо: Ринат , доб. 232, ЛОТ 1001678

Читать полностью
    Позвонить Написать
    339 875 Р4 340 $ или 3 690
    Агент
    +7 (986) 274-27-15
    Начать чат с агентом
    Похожие предложения
    Офис (272 м) - Фото 1
    Офис (272 м) - Фото 2
    2-й этаж, всего 3 этажа

    Лот №1001678 Предложение от Собственника Напишите нам в Ватсап, чтобы получить ПОДРОБНУЮ ПРЕЗЕНТАЦИЮ С ПЛАНИРОВКОЙ И ФОТОГРАФИЯМИ Предлагается в аренду офисный блок общей площадью 271.9 кв. м. на 2 этаже (полностью этаж).Ул. Водников, д. 2, стр. 17....
    • 2/3 эт.
    339 875 Р
    Агент
    +7 (965) Показать номер
    Посмотреть контакты
    Офис в Москва ул. Академика Варги, 8К1 (125 м) - Фото 1
    Офис в Москва ул. Академика Варги, 8К1 (125 м) - Фото 2
    13-й этаж, всего 15 этажей

    Предлагается в аренду офис 125 кв.м.Подписание договора аренды напрямую с владельцем помещения. Работаем без комиссии, процентов и надбавок.В арендную ставку включено: - коммунальные услуги, включая электроэнергию,- эксплуат.расходы.В арендную ставку...
    • 13/15 эт.
    335 000 Р
    Агент
    +7 (932) Показать номер
    Посмотреть контакты
    Офис в Москва Садовая-Самотечная ул., 15/1 (156 м) - Фото 1
    Офис в Москва Садовая-Самотечная ул., 15/1 (156 м) - Фото 2
    1-й этаж, всего 3 этажа

    Предлагается в аренду офис 156 кв.м недалеко от метро. Состояние отделки — готово к въезду.Подписание договора аренды напрямую с владельцем помещения. Работаем без комиссии, процентов и надбавок.В арендную ставку не входит: коммунальные услуги, электроэнергия,...
    • 1/3 эт.
    350 000 Р
    Агент
    +7 (932) Показать номер
    Посмотреть контакты
    Офис в Москва ул. Ленинская Слобода, 26С5 (127 м) - Фото 1
    Офис в Москва ул. Ленинская Слобода, 26С5 (127 м) - Фото 2
    1-й этаж, всего 5 этажей

    ВАЖНО: БЕЗ КОММИССИ ДЛЯ АРЕНДАТОРОВ, ПРЯМАЯ АРЕНДА ОТ СОБСТВЕННИКАБизнес-центр B+ класса Симонов плаза расположен по адресу Москва, ЮАО, район Даниловский, ул. Ленинская Слобода, 26с5, в пешей доступности от метро Автозаводская (7 мин).Характеристики...
    • 1/5 эт.
    332 359 Р
    Агент
    +7 (916) Показать номер
    Посмотреть контакты
    Офис в Москва Марксистская ул., 34к4 (145 м) - Фото 1
    Офис в Москва Марксистская ул., 34к4 (145 м) - Фото 2
    1-й этаж, всего 5 этажей

    Сдается в аренду офисное помещение на 1 этаже в бизнес-центре В класса, который находится по адресу: ул. Марксистская, д. 34, корп. 4. ЛОКАЦИЯ:- В шаговой доступности станции метро Пролетарская, Крестьянская застава, Марксистская.- Рядом пролегают Волгоградский...
    • 1/5 эт.
    350 000 Р
    Агент
    +7 (989) Показать номер
    Посмотреть контакты

    Не нашли подходящего объявления?

    Оставьте заявку, и наши риэлторы подберут офис в районе Москвы

    (0)