52 700 Р 678 $ или 578

Информация о помещении и здании

2
Этаж
5
Этажность
Развернуть
Агент
+7 (917) 519-85-39
Начать чат с агентом

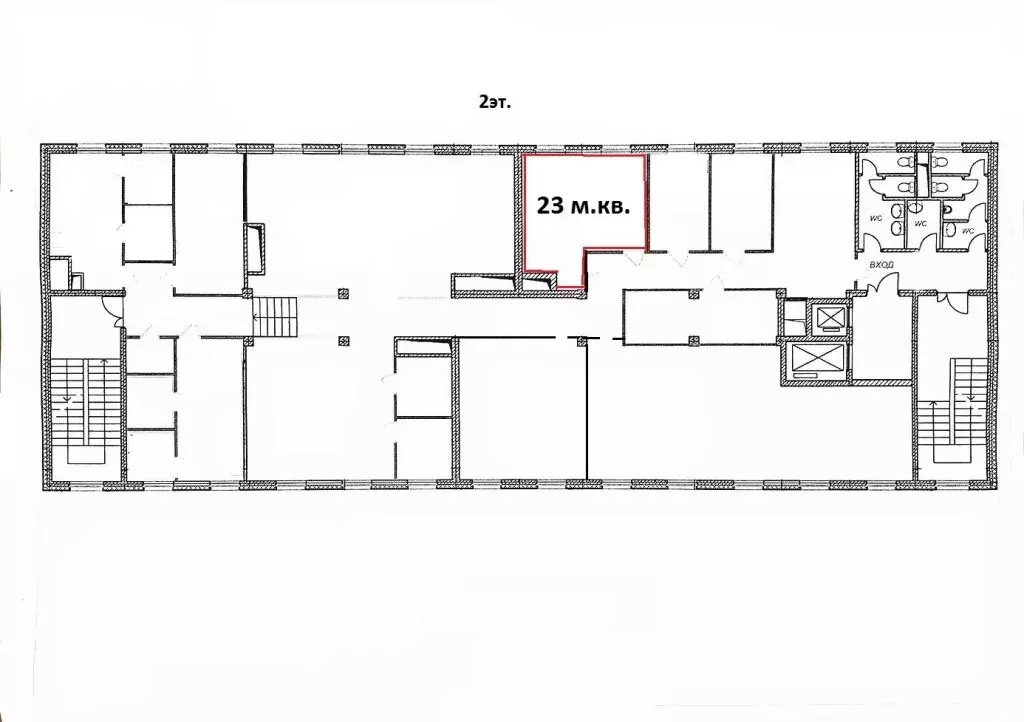
Офис (23 м)

Арт.. БЕЗ КОМИССИИ ПРЕДЛОЖЕНИЕ ОТ СОБСТВЕННИКА М Павелецкая, Новокузнецкая. Садовническая набережная, 71Офис в БЦ (класса В+) в аренду: 2 этаж - 23м2. (Опен-спейс). Поэтажный план см. в ФОТО На этаже есть кухня общего пользования.При определённых обстоятельствах действующий арендатор может съехать раньше.Два лифта.Цена кв.м. в год с учётом НДС, эксплуатационных икоммунальных платежей.Предоплата 1 месяц. Страховой депозит 1 месяц.Отдельно оплачивается электричество, уборка помещения, Интернет.График работы для арендаторов - 24/7.Парковка для арендаторов во дворе, стихийная, бесплатная.Охрана, пропускная система с регистрацией По договоренности предоставляется юр. адрес, ИФНС 5. Первая линия домов, административное здание. Кабинетно-коридорная планировка, с/у на этаже. Провайдеры: Вест Колл, Интел Ком. Евгений Р

Читать полностью
    Позвонить Написать
    52 700 Р678 $ или 578
    Агент
    +7 (917) 519-85-39
    Начать чат с агентом
    Похожие предложения
    Офис в Москва Садовническая наб., 71 (23 м) - Фото 1
    Офис в Москва Садовническая наб., 71 (23 м) - Фото 2
    2-й этаж, всего 5 этажей

    В аренду предлагается офис порядка 23 м на 2 этаже. Офис свободен и готов к въезду. САДОВНИЧЕСКОЯ 71 (SDVN71) - небольшой бизнес-центра класса В, расположенный в Замоскворечье на набережной обводного канала в 5 минутах пешком от метро Павелецкая / Новокузнецкая.•...
    • 2/5 эт.
    52 700 Р
    Агент
    +7 (915) Показать номер
    Посмотреть контакты
    Офис в Москва Садовническая ул., 71С2 (23 м) - Фото 1
    Офис в Москва Садовническая ул., 71С2 (23 м) - Фото 2
    2-й этаж, всего 4 этажа

    Аренда офиса от собственника 23 кв.м недалеко от метро. Состояние отделки — готово к въезду.Договор аренды заключаете с собственником помещения. Без надбавки к итоговой стоимости аренды.В арендную ставку включено: - коммунальные услуги, не включая электроэнергию,-...
    • 2/4 эт.
    52 708 Р
    Агент
    +7 (932) Показать номер
    Посмотреть контакты
    Офис (23 м) - Фото 1
    Офис (23 м) - Фото 2
    2-й этаж, всего 4 этажа

    Сдается в аренду просторный офис 23 кв.м недалеко от метро. Состояние отделки — готово к въезду. Подписание договора аренды напрямую с владельцем помещения. Работаем без комиссии, процентов и надбавок. В арендную ставку включено: - коммунальные услуги,...
    • 2/4 эт.
    52 708 Р
    Агент
    +7 (932) Показать номер
    Посмотреть контакты
    Аренда офиса, м. Улица 1905 года, Звенигородское ш. - Фото 1
    Аренда офиса, м. Улица 1905 года, Звенигородское ш. - Фото 2
    Аренда офиса, м. Улица 1905 года, Звенигородское ш. - Фото 3
    Аренда офиса, м. Улица 1905 года, Звенигородское ш. - Фото 4
    Аренда офиса, м. Улица 1905 года, Звенигородское ш. - Фото 5
    Аренда офиса, м. Улица 1905 года, Звенигородское ш. - Фото 6
    Аренда офиса, м. Улица 1905 года, Звенигородское ш. - Фото 7
    Аренда офиса, м. Улица 1905 года, Звенигородское ш. - Фото 8
    Аренда офиса, м. Улица 1905 года, Звенигородское ш. - Фото 9
    Аренда офиса, м. Улица 1905 года, Звенигородское ш. - Фото 10
    Аренда офиса, м. Улица 1905 года, Звенигородское ш. - Фото 11
    общая площадь офисного здания 1292м², реализуемая площадь 1292м², 2-й этаж, всего 6 этажей

    Аренда офисакласса В. ЦАО, район Пресненский. 2 минуты пешком от станции метро Улица 1905 года. 1-я линия Звенигородского шоссе. Общая площадь - 1292 м2, полностью 2-й этаж, планировка – смешанная: залы и кабинеты, высота потолков 3,6-5 м, панорамные...
    • 1 292 м²
    • 2/6 эт.
    5 598 700 Р /в месяц
    Агент
    +7 (903) Показать номер
    Посмотреть контакты
    Аренда офиса, ул. Правды - Фото 1
    Аренда офиса, ул. Правды - Фото 2
    Аренда офиса, ул. Правды - Фото 3
    Аренда офиса, ул. Правды - Фото 4
    Аренда офиса, ул. Правды - Фото 5
    Аренда офиса, ул. Правды - Фото 6
    Аренда офиса, ул. Правды - Фото 7
    Аренда офиса, ул. Правды - Фото 8
    Аренда офиса, ул. Правды - Фото 9
    Аренда офиса, ул. Правды - Фото 10
    Аренда офиса, ул. Правды - Фото 11
    Аренда офиса, ул. Правды - Фото 12
    Аренда офиса, ул. Правды - Фото 13
    Аренда офиса, ул. Правды - Фото 14
    Аренда офиса, ул. Правды - Фото 15
    Аренда офиса, ул. Правды - Фото 16
    Аренда офиса, ул. Правды - Фото 17
    Аренда офиса, ул. Правды - Фото 18
    Аренда офиса, ул. Правды - Фото 19
    Аренда офиса, ул. Правды - Фото 20
    общая площадь офисного здания 520м², реализуемая площадь 520м², 5-й этаж, всего 14 этажей

    Аренда офисного блока в БЦ класса А "СЕВЕРНОЕ СИЯНИЕ". Общая площадь офиса - 520 кв.м. Смешанная планировка: 5 кабинетов, 2 переговорные комнаты, open space, кухня, серверная, подсобное помещение. Выполнена качественная отделка, высокие потолки,,...
    • 520 м²
    • 5/14 эт.
    2 262 000 Р /в месяц
    Агент
    +7 (903) Показать номер
    Посмотреть контакты

    Не нашли подходящего объявления?

    Оставьте заявку, и наши риэлторы подберут офис в районе Москвы

    (0)