Россия, Москва, Ходынский бул., 20А/2
8 243 233 Р 106 400 $ или 90 110

Информация о помещении и здании

7
Этаж
11
Этажность
Развернуть
Агент
+7 (915) 266-41-29
Начать чат с агентом

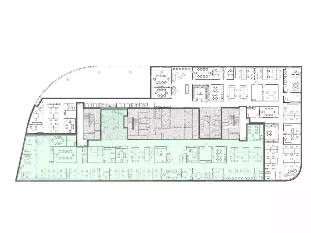
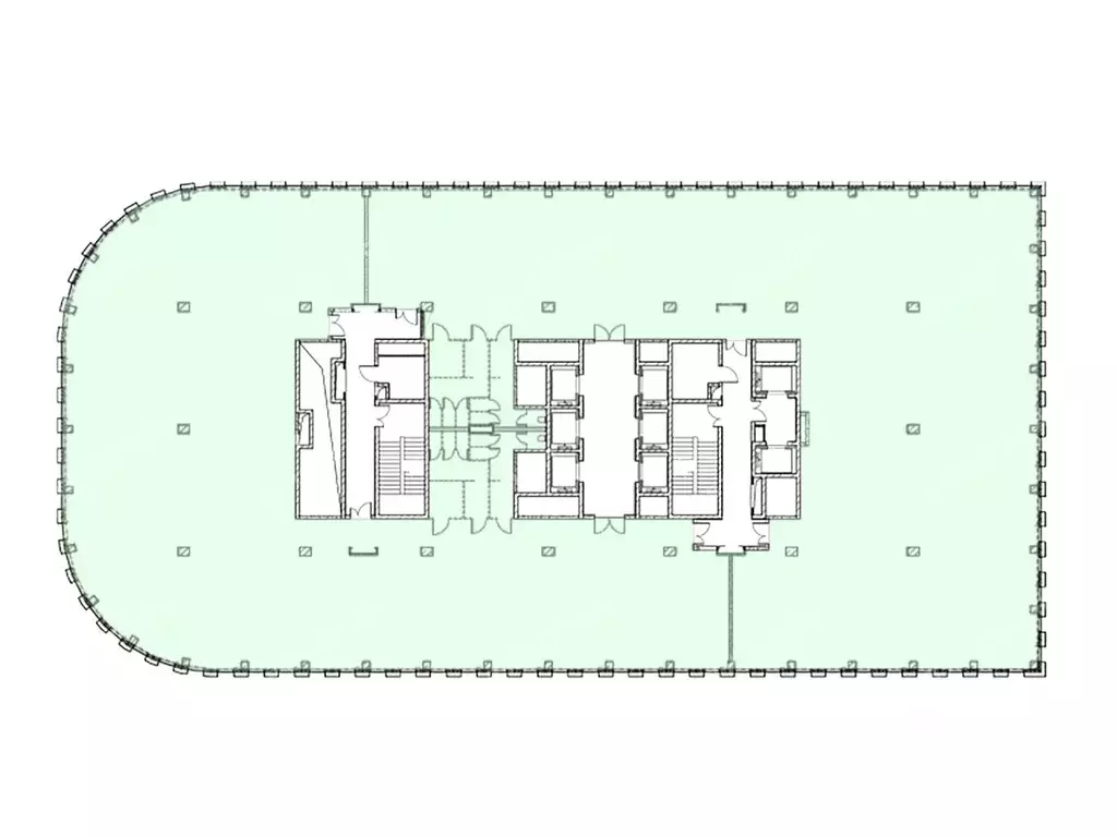
Офис в Москва Ходынский бул., 20А/2 (1252 м)

Офисное помещение 1 252.2 кв. м в бизнес-центре STONE Ходынка 2 G2 . Объект на стадии активного строительства, готовность ко въезду уточняется по запросу. Округ: Северный (САО). Район: Хорошевский. Ближайшие станции метро: ЦСКА, Аэропорт, Динамо. Характеристики:- Класс: A; - Разрешение на строительство: Да; - Арендопригодная площадь: 11200; - Размер типового этажа: 1260. Арендная ставка: 78 999./кв. м в год. Финансовые условия: - Оплачивается отдельно: Электроэнергия, OPEX, Интернет, Коммунальные услуги, Телефония, Уборка; - В стоимость включено: НДС; - Налог: Включая НДС. Без комиссии и скрытых платежей для арендатора. Готовы оперативно организовать просмотр в удобное время, предоставить PDF-презентацию и план. Точное местоположение объекта можно найти по данным координатам: 55.789182,37.525199 ID = c_1784927

Читать полностью
    Позвонить Написать
    8 243 233 Р106 400 $ или 90 110
    Агент
    +7 (915) 266-41-29
    Начать чат с агентом
    Похожие предложения
    Офис в Москва Ходынский бул., 20А/2 (1490 м) - Фото 1
    Офис в Москва Ходынский бул., 20А/2 (1490 м) - Фото 2
    15-й этаж, всего 23 этажа

    Офисное помещение 1 489.8 кв. м в бизнес-центре STONE Ходынка 2 G1 . Объект на стадии активного строительства, готовность ко въезду уточняется по запросу. Округ: Северный (САО). Район: Хорошевский. Ближайшие станции метро: ЦСКА, Аэропорт, Динамо. Характеристики:-...
    • 15/23 эт.
    8 193 900 Р
    Агент
    +7 (915) Показать номер
    Посмотреть контакты
    Офис в Москва Ходынский бул., 20А/2 (1505 м) - Фото 1
    Офис в Москва Ходынский бул., 20А/2 (1505 м) - Фото 2
    16-й этаж, всего 23 этажа

    Офисное помещение 1 504.5 кв. м в бизнес-центре STONE Ходынка 2 G1 . Объект на стадии активного строительства, готовность ко въезду уточняется по запросу. Округ: Северный (САО). Район: Хорошевский. Ближайшие станции метро: ЦСКА, Аэропорт, Динамо. Характеристики:-...
    • 16/23 эт.
    8 274 750 Р
    Агент
    +7 (915) Показать номер
    Посмотреть контакты
    Офис в Москва Стоун Савеловская бк, 1 (1825 м) - Фото 1
    Офис в Москва Стоун Савеловская бк, 1 (1825 м) - Фото 2
    23-й этаж, всего 24 этажа

    Офисное помещение 1 825 кв. м в бизнес-центре STONE Савеловская . Объект на стадии активного строительства, готовность ко въезду уточняется по запросу. Округ: Северо-Восточный (СВАО). Район: Савёловский. Ближайшие станции метро: Савёловская, Марьина...
    • 23/24 эт.
    8 212 500 Р
    Агент
    +7 (915) Показать номер
    Посмотреть контакты
    Офис в Москва Стоун Савеловская бк, 1 (1824 м) - Фото 1
    Офис в Москва Стоун Савеловская бк, 1 (1824 м) - Фото 2
    24-й этаж, всего 24 этажа

    Офисное помещение 1 824.3 кв. м в бизнес-центре STONE Савеловская . Объект на стадии активного строительства, готовность ко въезду уточняется по запросу. Округ: Северо-Восточный (СВАО). Район: Савёловский. Ближайшие станции метро: Савёловская, Марьина...
    • 24/24 эт.
    8 285 971 Р
    Агент
    +7 (915) Показать номер
    Посмотреть контакты
    Офис в Москва Варшавское ш., 9С1 (2596 м) - Фото 1
    Офис в Москва Варшавское ш., 9С1 (2596 м) - Фото 2
    6-й этаж, всего 6 этажей

    Экономьте время и деньги: отрисуем планировку под вас бесплатно, с любым количеством правок. Предлагаем в аренду Офис в бизнес-центре Даниловская мануфактура по адресу: Москва, Варшавское шоссе, 9с1.Рабочих мест: от 325 до 576*.Площадь: 2 596 м2.Планировка:...
    • 6/6 эт.
    8 252 333 Р
    Агент
    +7 (980) Показать номер
    Посмотреть контакты

    Не нашли подходящего объявления?

    Оставьте заявку, и наши риэлторы подберут офис в районе Москвы

    (0)