Россия, Москва, Воронцовский парк тер., 4
2 949 991 Р 37 710 $ или 32 030

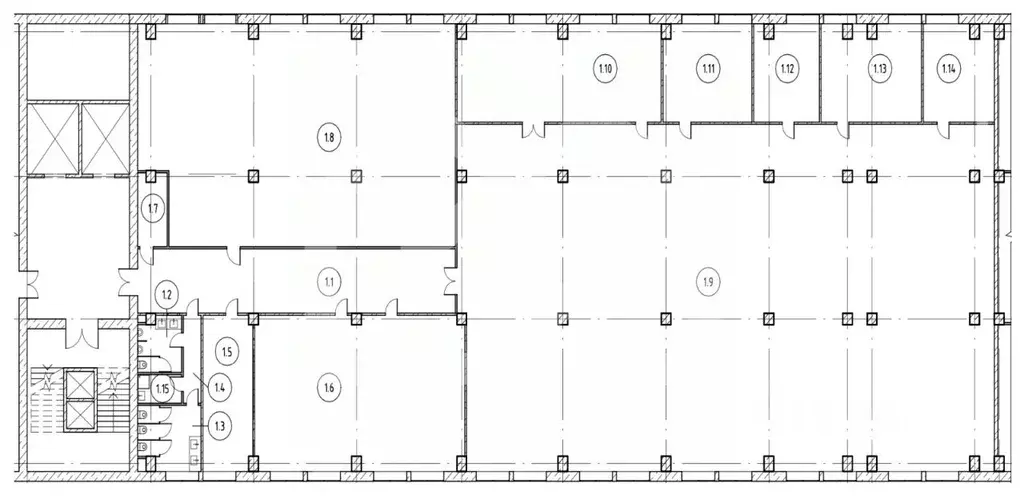
Информация о помещении и здании

1
Этаж
3
Этажность
Развернуть
Агент
+7 (915) 101-43-18
Начать чат с агентом

Офис в Москва Воронцовский парк тер., 4 (1023 м)

БЕЗ КОМИССИИ Особняк класса B+. Сдаётся под офис или медцентр здание целиком площадью 1023 кв.м. Стандартная отделка. Кондиционер (сплит), вентиляция. 8 мест на парковке.УСН. Воронцовский парк, 4, 9 минут пешком от метро Калужская. ЛОТ 217345

Читать полностью
    Позвонить Написать
    2 949 991 Р37 710 $ или 32 030
    Агент
    +7 (915) 101-43-18
    Начать чат с агентом
    Похожие предложения
    Офис в Москва ул. Воронцовские Пруды, 3 (1000 м) - Фото 1
    Офис в Москва ул. Воронцовские Пруды, 3 (1000 м) - Фото 2
    1-й этаж, всего 3 этажа

    Точный адрес: Воронцовский парк, д. 4. (нет на циан)Особняк на территории Воронцовского парка у входа в парк со стороны ул. Намёткина и Архитектора Власова. В помещении сделан хороший ремонт. Доступно восемь мест на парковке, есть кондиционеры, вентиляция....
    • 1/3 эт.
    2 950 000 Р
    Агент
    +7 (915) Показать номер
    Посмотреть контакты
    Офис в Москва Бумажный проезд, 14С2 (800 м) - Фото 1
    Офис в Москва Бумажный проезд, 14С2 (800 м) - Фото 2
    8-й этаж, всего 8 этажей

    1005233 . Предлагаем в аренду сервисный офис площадью 800 кв. м, расположенный в здании по адресу Бумажный проезд, д 14 стр 2Преимущества объекта: - Здание класса В- Шаговая доступность от станции метро Савеловская (5 минут пешком)- Этаж: 8- Помещение...
    • 8/8 эт.
    3 000 000 Р
    Агент
    +7 (938) Показать номер
    Посмотреть контакты
    Офис в Москва Варшавское ш., 9С1 (773 м) - Фото 1
    Офис в Москва Варшавское ш., 9С1 (773 м) - Фото 2
    2-й этаж, всего 5 этажей

    Сдается в аренду просторный офис 773.03 кв.м недалеко от метро. Состояние отделки — готово к въезду.Договор аренды заключаете с собственником помещения. Без надбавки к итоговой стоимости аренды.В арендную ставку включено: - НДС,- эксплуат.расходы.В арендную...
    • 2/5 эт.
    2 812 367 Р
    Агент
    +7 (932) Показать номер
    Посмотреть контакты
    Офис в Москва Ленинский просп., 109 (1672 м) - Фото 1
    Офис в Москва Ленинский просп., 109 (1672 м) - Фото 2
    6-й этаж, всего 6 этажей

    Аренда офиса 1672 кв.м недалеко от метро.Договор аренды заключаете с собственником помещения. Без надбавки к итоговой стоимости аренды.В арендную ставку включено: - эксплуат.расходы.В арендную ставку не входит: коммунальные услуги, электроэнергия, уборка...
    • 6/6 эт.
    3 000 000 Р
    Агент
    +7 (932) Показать номер
    Посмотреть контакты
    Офис в Москва Чапаевский пер., 14 (880 м) - Фото 1
    Офис в Москва Чапаевский пер., 14 (880 м) - Фото 2
    2-й этаж, всего 6 этажей

    1099032 . Предлагаем в аренду офисное помещение площадью 880 кв. м, расположенное в бизнес-центре Сокол Плейс Преимущества объекта: - Бизнес-центр класса В- Шаговая доступность от станции метро Сокол, Аэропорт (11-14 минут пешком)- Этаж: 2- Помещение...
    • 2/6 эт.
    2 933 333 Р
    Агент
    +7 (938) Показать номер
    Посмотреть контакты

    Не нашли подходящего объявления?

    Оставьте заявку, и наши риэлторы подберут офис в районе Москвы

    (0)