500 000 Р 6 390 $ или 5 430

Информация о помещении и здании

2
Этаж
6
Этажность
Развернуть
Агент
+7 (989) 048-35-61
Начать чат с агентом

Офис в Москва пер. Романов, 3С1 (155 м)

Сдается в аренду офисное помещение на 2 этаже в жилом доме B класса, который находится по адресу: Романов пер., д. 3, стр. 1. Без комиссии для Арендатора ЛОКАЦИЯ:- Шаговая доступность от м. Библиотека им. Ленина, Арбатская, Александровский сад. - Непосредственная близость от улиц Большая Никитская, Тверская, Воздвиженка и Моховая.ПОМЕЩЕНИЕ:- В помещении выполнена отделка, кабинетная планировка. - Сплит-системы и приточно-вытяжная вентиляция. - В наличии наземная парковка.- Арендные каникулы и ставка подлежат обсуждению.Звоните, отвечаем по будням с 09:00 до 18:00, а в другое время передадим Ваш контакт нашему менеджеру

Читать полностью
    Позвонить Написать
    500 000 Р6 390 $ или 5 430
    Агент
    +7 (989) 048-35-61
    Начать чат с агентом
    Похожие предложения
    Офис в Москва Ленинский просп., 38 (92 м) - Фото 1
    Офис в Москва Ленинский просп., 38 (92 м) - Фото 2
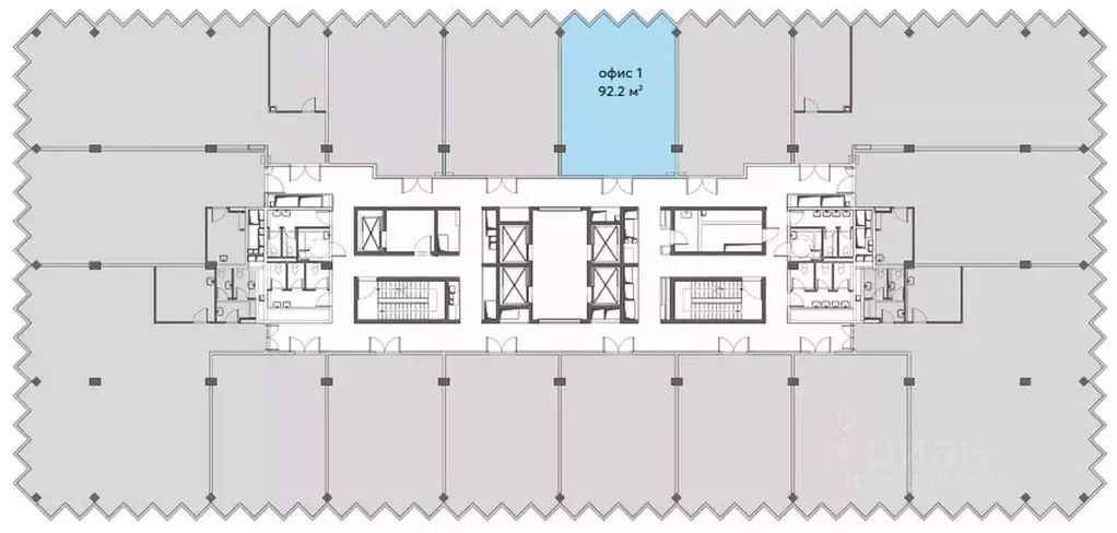
    4-й этаж, всего 6 этажей

    Аренда офиса в БЦ LUNAR Площадь: 92,2 м Ставка: за 1 м в годОтдельно оплачиваются эксплуатационные расходы в размере за 1 м в год.Преимущества: Арендодатель готов сделать 1 кабинет Возможность аренды м/м Быстрый выход на сделку, прямая аренда.
    • 4/6 эт.
    499 417 Р
    Агент
    +7 (983) Показать номер
    Посмотреть контакты
    Офис в Москва Долгоруковская ул., 27С1 (131 м) - Фото 1
    Офис в Москва Долгоруковская ул., 27С1 (131 м) - Фото 2
    1-й этаж, всего 4 этажа

    Сдается в аренду офисное помещение на 1 этаже в административном здании В класса, которое находится по адресу: ул. Долгоруковская, д. 27, стр. 1. Без комиссии для арендатора ЛОКАЦИЯ:- Пешая доступность от м. Новослободская, Менделеевская, Маяковская.-...
    • 1/4 эт.
    507 100 Р
    Агент
    +7 (989) Показать номер
    Посмотреть контакты
    Офис в Москва Ленинский просп., 70/11 (183 м) - Фото 1
    Офис в Москва Ленинский просп., 70/11 (183 м) - Фото 2
    2-й этаж, всего 9 этажей

    Показ в удобное время. С АГЕНТАМИ РАБОТАЕМ И ПЛАТИМ. Жилой дом расположен в Гагаринском районе Юго-Западного административного округа Москвы. Он находится на пересечении Ломоносовского и Ленинского проспектов, рядом с автобусной остановкой Ломоносовский...
    • 2/9 эт.
    499 000 Р
    Агент
    +7 (933) Показать номер
    Посмотреть контакты
    Офис в Москва Ленинградский просп., 36с40 (147 м) - Фото 1
    Офис в Москва Ленинградский просп., 36с40 (147 м) - Фото 2
    3-й этаж, всего 25 этажей

    Сдается в аренду офисное помещение на 3 этаже в бизнес-парке ВТБ Арена Парк, А класса, который находится по адресу: Ленинградский пр-кт, д. 36, стр. 40.Пешая доступность от м. Динамо, Петровский Парк, Савеловская. Удобный выезд на ТТК и Ленинградский...
    • 3/25 эт.
    500 000 Р
    Агент
    +7 (989) Показать номер
    Посмотреть контакты
    Офис в Москва ул. Большие Каменщики, 19 (125 м) - Фото 1
    Офис в Москва ул. Большие Каменщики, 19 (125 м) - Фото 2
    1-й этаж, всего 13 этажей

    БЕЗ КОМИССИИ Жилой дом. Сдаётся под офис, магазин (кроме продуктового) или салон блок с санузлом на первом этаже площадью 125 кв.м. Стандартная отделка.УСН. Улица Большие Каменщики, 19, 10 минут пешком от метро Таганская. ЛОТ 242209
    • 1/13 эт.
    500 000 Р
    Агент
    +7 (915) Показать номер
    Посмотреть контакты

    Не нашли подходящего объявления?

    Оставьте заявку, и наши риэлторы подберут офис в районе Москвы

    (0)