207 900 Р 2 700 $ или 2 310

Информация о помещении и здании

2
Этаж
4
Этажность
Развернуть
Агент
+7 (916) 933-05-64
Начать чат с агентом

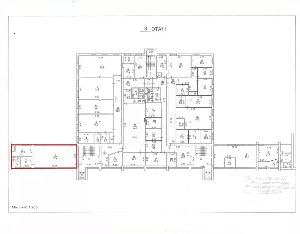
Офис в Москва ул. Шаболовка, 31А (84 м)

АРЕНДА ОТ СОБСТВЕННИКА Москва, ул Шаболовка, 31 стр АЗвоните и пишите прямо сейчас - Удобная транспортная доступность — всего несколько минут от метро (м. Шаболовская/Октябрьская) - Центральная система кондиционирования. - Охраняемая парковка. - Круглосуточная охрана здания. Звоните прямо сейчас и Вы получите:РАСШИРЕННУЮ презентацию с актуальными фото и поэтажными планами — вышлем за 15 минут на Ваш WhatsApp Прямой договор с собственником — никаких посредников Полное сопровождение сделки на всех этапах лучшими специалистами Оперативную организацию просмотра Добавляйте объявление в Избранное, чтобы не потерять Самая обширная база актуальных объектов Работаем для Вас с 9:30 до 21:00.Звоните и записывайтесь на просмотр У нас есть то, что Вам нужно Номер объекта: 6854

Читать полностью
    Позвонить Написать
    207 900 Р2 700 $ или 2 310
    Агент
    +7 (916) 933-05-64
    Начать чат с агентом
    Похожие предложения
    Офис в Москва Ленинский просп., 19С1 (82 м) - Фото 1
    Офис в Москва Ленинский просп., 19С1 (82 м) - Фото 2
    2-й этаж, всего 4 этажа

    АРЕНДА ОФИСА 81,7 М НА ЛЕНИНСКОМ ПРОСПЕКТЕ ГИБКОЕ ПРОСТРАНСТВО С ЛИФТОМ, КРУГЛОСУТОЧНЫМ ДОСТУПОМ И ПАРКОВКОЙ (БЕСПЛАТНО ДО 3 ЧАСОВ) В 6 МИНУТАХ ОТ МЕТРО ШАБОЛОВСКАЯ Универсальное помещение свободного назначения с офисной отделкой в престижном районе...
    • 2/4 эт.
    203 229 Р
    Агент
    +7 (989) Показать номер
    Посмотреть контакты
    Офис в Москва Имени Баумана городок, 2с10 (184 м) - Фото 1
    Офис в Москва Имени Баумана городок, 2с10 (184 м) - Фото 2
    1-й этаж, всего 3 этажа

    Вашему вниманию предлагается помещение свободного назначенияКабинетная планировка, разбиты на . , свои кухня и санузел. Данное крыло отделено дверью с магнитным замком. Интернет разведен на кабинеты.В пешей доступности от станции метро ПартизанскаяНа...
    • 1/3 эт.
    210 000 Р
    Агент
    +7 (915) Показать номер
    Посмотреть контакты
    Офис в Москва ул. Докукина, 16С1 (97 м) - Фото 1
    Офис в Москва ул. Докукина, 16С1 (97 м) - Фото 2
    3-й этаж, всего 9 этажей

    ЛотПредложение от Собственника Сдаётся в аренду офисное помещение общей площадью 96,8 кв.м., расположенный на 3-м этаже 9ти этажного БЦ класса Б, в 9ти минутах пешком от м.Ботанический сад. Блок в отличном состоянии, сделан качественный ремонт: напольное...
    • 3/9 эт.
    205 023 Р
    Агент
    +7 (986) Показать номер
    Посмотреть контакты
    Офис в Москва 3-й Красносельский пер., 21С1 (106 м) - Фото 1
    Офис в Москва 3-й Красносельский пер., 21С1 (106 м) - Фото 2
    2-й этаж, всего 8 этажей

    ЛотПредложение от Собственника Предлагаем в аренду офисный блок смешанной планировки площадью 106.3 кв.м, в Административном здании класса Б. Офис после ремонта и оборудованный кондиционером. Возможно использовать как офис-склад. Прямая аренда с предоставлением...
    • 2/8 эт.
    205 514 Р
    Агент
    +7 (986) Показать номер
    Посмотреть контакты
    Офис в Москва ул. Академика Варги, 8К1 (90 м) - Фото 1
    5-й этаж, всего 15 этажей

    Прямая аренда от управляющей компании в Бизнес Центре B+ Лейпциг Сдаётся меблированный офис 90 м — 204 000 /мес* акционная цена. УСНОфис предоставляется с новой мебелью на необходимое количество сотрудников, со свежим ремонтом, юридическим адресом и...
    • 5/15 эт.
    204 000 Р
    Агент
    +7 (923) Показать номер
    Посмотреть контакты

    Не нашли подходящего объявления?

    Оставьте заявку, и наши риэлторы подберут офис в районе Москвы

    (0)