5 456 700 Р 70 460 $ или 59 650

Информация о помещении и здании

3
Этаж
15
Этажность
Развернуть
Агент
+7 (911) 147-09-38
Начать чат с агентом

Офис в Москва ул. Двинцев, 12к1А (1269 м)

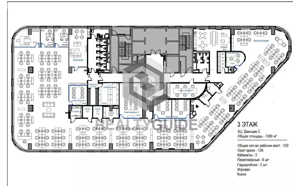
Бизнес-центр Двинцев класса AПлощадь: 1 269 м2Арендная ставка:. за м2 в год включая НДССтоимость площади в месяц:,. включая НДССистема налогообложения: НДСГотовность: готово к въездуЭтаж: 3Планировка: смешаннаяКабинетов: 3Наличие с/у: , ВнутриСтатус: свободенВысота потолков, h: 3.00мХарактеристики зданияАдрес: ул. Двинцев, 12с1, МоскваОкруг: САОКласс: AПлощадь здания: 57 848 м2Полезная площадь: 57 848 м2Этажность: 15Налоговая: 15Год постройки: 2008Безопасность: Охрана, Контрольно-пропускной пункт, Видеонаблюдение, СКУД (электронные пропуска)Парковка: 639м/м, Платная открытая, На прилегающей территории, ПодземнаяПросторный open-space формирует гибкую и энергичную рабочую среду, а кабинеты для руководителей обеспечивают приватность и удобство управленческой работы.Для сотрудников предусмотрены все условия:— большая зона приема пищи для комфортных перерывов,— уютная комната отдыха для восстановления энергии,— множество переговорных комнат для командной работы и встреч с партнёрами.Отделка офиса выполнена в современном стиле с яркими и функциональными интерьерными решениями, которые позволят эффективно использовать пространство для решения бизнес-задач.• Площадь: 1 269 м• Состояние помещения: с отделкой• Рабочих мест (open space): до 140• Кабинетов: 3• Переговорных: 8• Зона отдыха: 1• Серверная: 1• Склад: 3• Архив: 1• Гардеробная: 2• Кухня• Санузел

Читать полностью
    Позвонить Написать
    5 456 700 Р70 460 $ или 59 650
    Агент
    +7 (911) 147-09-38
    Начать чат с агентом
    Похожие предложения
    Офис в Москва ул. Двинцев, 12к1А (1269 м) - Фото 1
    Офис в Москва ул. Двинцев, 12к1А (1269 м) - Фото 2
    3-й этаж, всего 14 этажей

    ВАЖНО: БЕЗ КОММИССИ ДЛЯ АРЕНДАТОРОВ, ПРЯМАЯ АРЕНДА ОТ СОБСТВЕННИКАБизнес-центр A класса Двинцев расположен по адресу Москва, СВАО, район Марьина Роща, ул. Двинцев, дом 12, в пешей доступности от метро Савёловская (10 мин), метро Марьина Роща (13 мин).Характеристики...
    • 3/14 эт.
    5 456 700 Р
    Агент
    +7 (980) Показать номер
    Посмотреть контакты
    Офис (1269 м) - Фото 1
    Офис (1269 м) - Фото 2
    3-й этаж, всего 15 этажей

    Бизнес-центр «Двинцев класса AАренда помещения площадью 1269,0 кв.мCтоимость кв. метра 51600, в год включая НДС, возможен торгБизнес-центр «Двинцевасположен по адресу: ул. Двинцев, 12с1, Москва
    • 3/15 эт.
    5 456 700 Р
    Агент
    +7 (495) Показать номер
    Посмотреть контакты
    Офис (979 м) - Фото 1
    Офис (979 м) - Фото 2
    17-й этаж, всего 23 этажа

    Экономьте время и деньги: отрисуем планировку под вас бесплатно, с любым количеством правок. Предлагаем в аренду Офис в бизнес-центре Стоун Тауэрс (Башня B) по адресу: Москва, Бумажный проезд, 19с2.Рабочих мест: от 123 до 217*.Площадь: 979 м2.Планировка:...
    • 17/23 эт.
    5 420 790 Р
    Агент
    +7 (966) Показать номер
    Посмотреть контакты
    Офис (1089 м) - Фото 1
    Офис (1089 м) - Фото 2
    4-й этаж, всего 17 этажей

    Экономьте время и деньги: отрисуем планировку под вас бесплатно, с любым количеством правок. Предлагаем в аренду Офис в бизнес-центре «Риверсайд Тауэрс по адресу: Москва, Космодамианская набережная, 52с1.Рабочих мест: от 137 до 242*.Площадь: 1 089...
    • 4/17 эт.
    5 417 400 Р
    Агент
    +7 (966) Показать номер
    Посмотреть контакты
    Офис в Москва Подкопаевский пер., 4 (769 м) - Фото 1
    Офис в Москва Подкопаевский пер., 4 (769 м) - Фото 2
    1-й этаж, всего 5 этажей

    Экономьте время и деньги: отрисуем планировку под вас бесплатно, с любым количеством правок. Предлагаем в аренду Офис в бизнес-центре Ивановская горка по адресу: Москва, Подкопаевский переулок, 4.Рабочих мест: от 97 до 170*.Площадь: 769 м2.Планировка:...
    • 1/5 эт.
    5 447 083 Р
    Агент
    +7 (980) Показать номер
    Посмотреть контакты

    Не нашли подходящего объявления?

    Оставьте заявку, и наши риэлторы подберут офис в районе Москвы

    (0)