6 813 663 Р 87 480 $ или 74 150

Информация о помещении и здании

10
Этаж
15
Этажность
Развернуть
Агент
+7 (986) 274-27-15
Начать чат с агентом

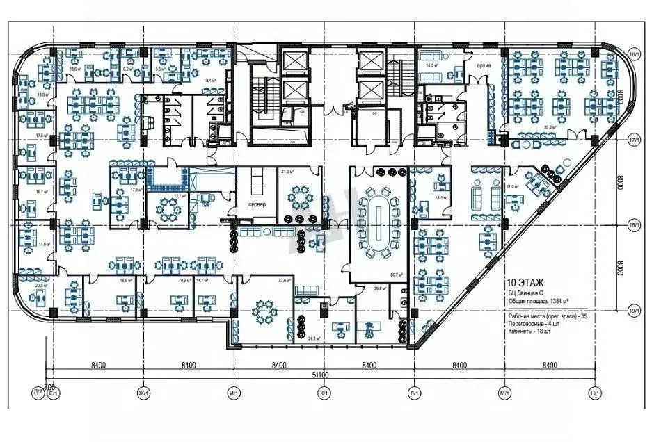
Офис в Москва ул. Двинцев, 12к1С (1384 м)

ЛотПредложение от Собственника Предлагается к аренде офисное помещение общей площадью 1 384 м. Планировка смешанная, включает в себя 18 кабинетов, 3 переговорные комнаты, конференц-зал, зону генерального директора, кухню, серверную и архив. Объект расположен на 10-м этаже бизнес-центра, юридический адрес предоставляется. Мебель не предусмотрена.Стоимость парковочного места составляет за машиноместо в месяц.Заезд возможен с 01.01.2026 года.Бизнес-центр отличается удобным расположением. Для арендаторов и гостей организован регулярный бесплатный шаттл-бас от станции метро Марьина Роща . 13 минут пешком от м. Савёловская.Приглашаем вас на просмотр Звоните В цену включено: НДС 20 . В цену не включено: затраты на электричество, коммунальные расходы, уборка. Обеспечительный платеж 3 месяцa.Чтобы получить ПОДРОБНУЮ ПРЕЗЕНТАЦИЮ С ПЛАНИРОВКОЙ И ФОТОГРАФИЯМИ, звоните или отправьте свой email и номер телефона в сообщении на портале. Высылаем в течение 15 минут по запросу Конт. лицо: Кира Константиновна, доб. 246, ЛОТ 1000444

Читать полностью
    Позвонить Написать
    6 813 663 Р87 480 $ или 74 150
    Агент
    +7 (986) 274-27-15
    Начать чат с агентом
    Похожие предложения
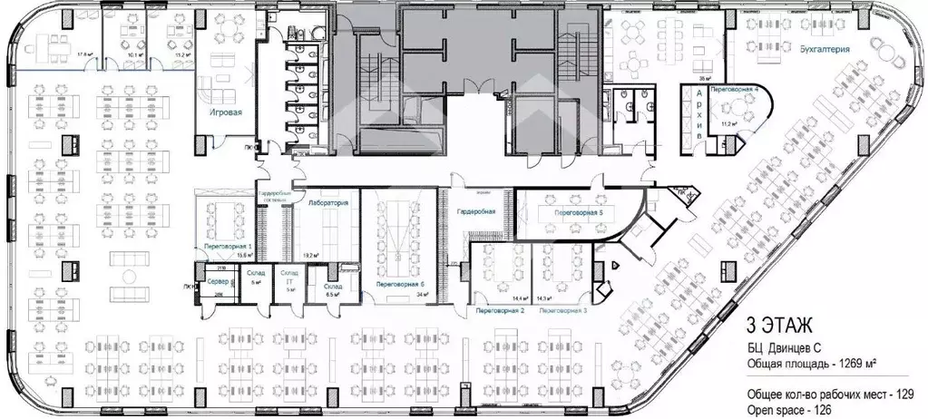
    Офис в Москва ул. Двинцев, 12к1С (1269 м) - Фото 1
    Офис в Москва ул. Двинцев, 12к1С (1269 м) - Фото 2
    3-й этаж, всего 15 этажей

    1098426 . Предлагаем в аренду офисное помещение площадью 1 269 кв. м, расположенное в бизнес-центре Двинцев Преимущества объекта: - Бизнес-центр класса А- Шаговая доступность от станции метро Савёловская (9 минут пешком)- Этаж: 3- Помещение предлагается...
    • 3/15 эт.
    6 859 600 Р
    Агент
    +7 (938) Показать номер
    Посмотреть контакты
    Офис (1384 м) - Фото 1
    Офис (1384 м) - Фото 2
    10-й этаж, всего 15 этажей

    Лот №1000444 Предложение от Собственника Напишите нам в Ватсап, чтобы получить ПОДРОБНУЮ ПРЕЗЕНТАЦИЮ С ПЛАНИРОВКОЙ И ФОТОГРАФИЯМИ Предлагается к аренде офисное помещение общей площадью 1 384 м. Планировка смешанная, включает в себя 18 кабинетов, 3 переговорные...
    • 10/15 эт.
    6 813 432 Р
    Агент
    +7 (495) Показать номер
    Посмотреть контакты
    Офис (1384 м) - Фото 1
    Офис (1384 м) - Фото 2
    10-й этаж, всего 15 этажей

    Лот №1000444 Предложение от Собственника Напишите нам в Ватсап, чтобы получить ПОДРОБНУЮ ПРЕЗЕНТАЦИЮ С ПЛАНИРОВКОЙ И ФОТОГРАФИЯМИ Предлагается к аренде офисное помещение общей площадью 1 384 м. Планировка смешанная, включает в себя 18 кабинетов, 3 переговорные...
    • 10/15 эт.
    6 813 663 Р
    Агент
    +7 (931) Показать номер
    Посмотреть контакты
    Офис (1269 м) - Фото 1
    Офис (1269 м) - Фото 2
    3-й этаж, всего 14 этажей

    Предлагаем в прямую аренду офисное помещение класса А площадью 1269 квадр. метров в бизнес-центре Двинцев .Москва, СВАО, улица Двинцев, 12 к1Удобная локация здания:- Автомобиль: близость транспортных магистралей, таких как Бутырская улица, Третье Транспортное...
    • 3/14 эт.
    6 859 600 Р
    Агент
    +7 (926) Показать номер
    Посмотреть контакты
    Офис в Москва Таганская ул., 17-23 (1717 м) - Фото 1
    Офис в Москва Таганская ул., 17-23 (1717 м) - Фото 2
    8-й этаж, всего 12 этажей

    Экономьте время и деньги: отрисуем планировку под вас бесплатно, с любым количеством правок. Предлагаем в аренду Офис в бизнес-центре Мосэнка Парк Тауэрс 4 по адресу: Москва, Таганская улица, 17-23.Рабочих мест: от 215 до 381*.Площадь: 1 717 м2.Планировка:...
    • 8/12 эт.
    6 740 000 Р
    Агент
    +7 (980) Показать номер
    Посмотреть контакты

    Не нашли подходящего объявления?

    Оставьте заявку, и наши риэлторы подберут офис в районе Москвы

    (0)