Россия, Москва, 1-й Кожевнический переулок, 6с1
366 667 Р 4 730 $ или 4 010

Информация о помещении и здании

4
Этаж
4
Этажность
Развернуть
Агент
+7 (915) 056-88-25
Начать чат с агентом

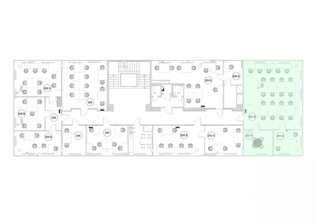
Офис (200 м)

Предлагается под аренду офисный блок площадью 200 кв.м. из нескольких кабинетов, open-space пространства и с/у. В помещении выполнена стандартная отделка. Заведены слаботочные сети для телефонии и интернета. Техническое оснащение соответствует требованиям пожарной безопасности и санитарным нормам. Стоимость. Электричество, интернет и вывоз мусора оплачиваются дополнительно.

Читать полностью
    Позвонить Написать
    366 667 Р4 730 $ или 4 010
    Агент
    +7 (915) 056-88-25
    Начать чат с агентом
    Похожие предложения
    Офис в Москва 1-й Кожевнический пер., 6С1 (208 м) - Фото 1
    Офис в Москва 1-й Кожевнический пер., 6С1 (208 м) - Фото 2
    4-й этаж, всего 4 этажа

    Сдается офис 208м2 в БЦ Павелецкий (м.Павелецкая 7 мп.)Несколько кабинетов (см.план), 4 этаж, есть лифт.Доступ 24/7, паркинг около 10 тыс/место, провайдер Авантел.Электричество по площади, НДС и эксплуатация входят, депозит 1 мес.По всем вопросам звоните...
    • 4/4 эт.
    380 000 Р
    Агент
    +7 (933) Показать номер
    Посмотреть контакты
    Офис в Москва 1-й Кожевнический пер., 6С1 (197 м) - Фото 1
    Офис в Москва 1-й Кожевнический пер., 6С1 (197 м) - Фото 2
    2-й этаж, всего 5 этажей

    Сдается в аренду офисное помещение на 2 этаже в бизнес-центре Павелецкий, В класса, который находится по адресу: 1-й Кожевнический пер., д. 6, стр. 1.Пешая доступность от м. Павелецкая, Серпуховская. Удобный выезд на Садовое кольцо и ТТК.В помещении стандартная...
    • 2/5 эт.
    360 800 Р
    Агент
    +7 (989) Показать номер
    Посмотреть контакты
    Офис в Москва Лесная ул., 43 (128 м) - Фото 1
    Офис в Москва Лесная ул., 43 (128 м) - Фото 2
    4-й этаж, всего 7 этажей

    Ника. Мой приоритет - Ваш успешный бизнес, и именно поэтому я предлагаю этот уникальный лот. Готовый офис с мебелью под ключ . Пространство 128 м2, с современной мебелью и зонированием в комфортном бизнес-центре на улице Лесной. Достойное место в центре...
    • 4/7 эт.
    373 000 Р
    Агент
    +7 (984) Показать номер
    Посмотреть контакты
    Офис в Москва Каширское ш., 3К2С2 (125 м) - Фото 1
    Офис в Москва Каширское ш., 3К2С2 (125 м) - Фото 2
    2-й этаж, всего 6 этажей

    Офисное помещение 125 кв. м в бизнес-центре Сириус Парк с1/2/12 . Объект скоро освободится. Успейте забронировать на выгодных условиях. Готовность ко въезду уточняется по запросу. Округ: Южный (ЮАО). Район: Нагатино-Садовники. Ближайшие станции метро:...
    • 2/6 эт.
    380 000 Р
    Агент
    +7 (915) Показать номер
    Посмотреть контакты
    Офис в Москва Минская ул., 2Ж (44 м) - Фото 1
    Офис в Москва Минская ул., 2Ж (44 м) - Фото 2
    3-й этаж, всего 7 этажей

    ID: L12932Вниманию арендаторам Оперативно покажем помещение, ответим на возникшие вопросы. Направим подробную презентацию с планировками, фотографиями и коммерческими условиями.Офис наабочих мест (44 кв.м.) 3 этаж делового центра Виктори Парк в 3 мин...
    • 3/7 эт.
    379 999 Р
    Агент
    +7 (923) Показать номер
    Посмотреть контакты

    Не нашли подходящего объявления?

    Оставьте заявку, и наши риэлторы подберут офис в районе Москвы

    (0)