Россия, Москва, ул. 3-я Ямского Поля, 32
717 920 Р 9 270 $ или 7 850

Информация о помещении и здании

8
Этаж
8
Этажность
Развернуть
Агент
+7 (923) 072-03-17
Начать чат с агентом

Офис в Москва ул. 3-я Ямского Поля, 32 (256 м)

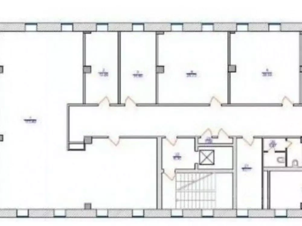
ID: L12995Офисное помещение с отделкойПлощадь: 256.4мЭтаж: 8Высота потолков: 3.3мО здании:Класс B . 8-ми этажное офисное здание. Общая площадь офисов 6 700.4 кв. м, из которых: 5 этаж занимает 704,8 кв. м, 6 этаж 639,5 кв. м, 7 этаж 500 кв. м, 8 этаж 501,8 кв. м. На этажах кабинетная планировка: кабинеты, апартаменты руководителя, комнаты переговоров, подсобные помещения, комнаты для приема пищи, кассовый узел, серверные комнаты, с/узлы. Высота потолков от 3 до 3,3 метра. Внутренняя отделка окраска, плитка, ламинат, паркетная доска, подвесной потолок типа Армстронг . Коммуникации центральные: водопровод, теплоснабжение, канализация, электроснабжение. Бизнес-центр имеет два входа (2 подъезда со стороны 3-я ул. Ямского поля).. Здание находится в 7 минутах ходьбы от ст. м. Белорусская . Расстояние до Ленинградского пр-та 300м, до ТТК 800м.. Приточно-вытяжная вентиляция. Центральное кондиционирование. Электрическая мощность: 124кВт.. Интернет, телефония. Провайдер: Коммерческий. Охрана. Видеонаблюдение. Система контроля доступа. Лифты: 2 грузопассажирских.

Читать полностью
    Позвонить Написать
    717 920 Р9 270 $ или 7 850
    Агент
    +7 (923) 072-03-17
    Начать чат с агентом
    Похожие предложения
    Офис в Москва ул. 3-я Ямского Поля, 32 (256 м) - Фото 1
    Офис в Москва ул. 3-я Ямского Поля, 32 (256 м) - Фото 2
    8-й этаж, всего 8 этажей

    Предложение в аренду 62279.Парковка: подземная 14000р/мес.Предлагаем в аренду офис в бизнес-центре класса В в Беговом районе. До м.Белорусская 10 минут пешком.. Офис расположен на 8-ом этаже, кабинетная планировка, стандартный офисный ремонт, свои с/у....
    • 8/8 эт.
    717 920 Р
    Агент
    +7 (989) Показать номер
    Посмотреть контакты
    Офис (287.9 м) - Фото 1
    Офис (287.9 м) - Фото 2
    1-й этаж, всего 4 этажа

    Сдается в аренду офисное помещение на 1 этаже в бизнес-центре Стендаль, В класса, который находится по адресу: ул. Новорязанская, д. 18. Без комиссии для Арендатора ЛОКАЦИЯ:– Пешая доступность от станции метро Комсомольская, Каланчевская.– Удобный выезд...
    • 1/4 эт.
    712 200 Р
    Агент
    +7 (901) Показать номер
    Посмотреть контакты
    Офис в Москва Покровский бул., 3С1б (286 м) - Фото 1
    Офис в Москва Покровский бул., 3С1б (286 м) - Фото 2
    1-й этаж, всего 6 этажей

    АРЕНДА ОТ СОБСТВЕННИКАМосква, б-р Покровский, 3 стр 1бЗвоните и пишите прямо сейчас — не упустите возможность арендовать идеальный офис для Вашего бизнеса в отличном месте Сотрудничаем с агентами.- Удобная транспортная доступность — всего несколько минут...
    • 1/6 эт.
    715 000 Р
    Агент
    +7 (982) Показать номер
    Посмотреть контакты
    Офис в Москва Верейская ул., 17 (353 м) - Фото 1
    Офис в Москва Верейская ул., 17 (353 м) - Фото 2
    1-й этаж, всего 8 этажей

    Аренда офиса 353.3 кв.м недалеко от метро. Состояние отделки — готово к въезду.Договор аренды заключаете с собственником помещения. Без надбавки к итоговой стоимости аренды.В арендную ставку включено: - эксплуат.расходы.В арендную ставку не входит: коммунальные...
    • 1/8 эт.
    717 942 Р
    Агент
    +7 (932) Показать номер
    Посмотреть контакты
    Офис в Москва ул. Академика Варги, 8К1 (281 м) - Фото 1
    Офис в Москва ул. Академика Варги, 8К1 (281 м) - Фото 2
    9-й этаж, всего 15 этажей

    Сдается от собственника офис 281 кв.м.Подписание договора аренды напрямую с владельцем помещения. Работаем без комиссии, процентов и надбавок.В арендную ставку включено: - коммунальные услуги, включая электроэнергию,- эксплуат.расходы.В арендную ставку...
    • 9/15 эт.
    720 000 Р
    Агент
    +7 (932) Показать номер
    Посмотреть контакты

    Не нашли подходящего объявления?

    Оставьте заявку, и наши риэлторы подберут офис в районе Москвы

    (0)