227 500 Р 2 930 $ или 2 490

Информация о помещении и здании

3
Этаж
22
Этажность
Развернуть
Агент
+7 (923) 073-07-26
Начать чат с агентом

Офис в Москва ул. Мастеркова, 4 (100 м)

ПРЯМАЯ АРЕНДА ОТ СОБСТВЕННИКА. Без комиссии. Сдается офис 124 м2 на 3 этаже. БЦ находится непосредственно у выхода метро Автозаводская. Только выполнен качественный ремонт, Планировка - 4 кабинета (19,1 кв.м., 33,8 кв.м., 25,2 кв.м. 15,4 кв.м). Высокие потолки, большие окна. Коммунальные платежи включены. Юридический адрес. Оперативный показ. Круглосуточная охраняемая парковка. Также есть бесплатная парковка для гостей. Провайдеры Виленд, Авантел, Реал Телеком.

Читать полностью
    Позвонить Написать
    227 500 Р2 930 $ или 2 490
    Агент
    +7 (923) 073-07-26
    Начать чат с агентом
    Похожие предложения
    Офис в Москва ул. Ленинская Слобода, 19 (103 м) - Фото 1
    Офис в Москва ул. Ленинская Слобода, 19 (103 м) - Фото 2
    4-й этаж, всего 7 этажей

    Лот 991635 Предложение от Собственника Предлагается к аренде офисное помещение общей площадью 102.9 м, расположенное на четвертом этаже здания. Локация отличается транспортной доступностью: пешая удаленность от станции метро Автозаводская составляет...
    • 4/7 эт.
    220 001 Р
    Агент
    +7 (986) Показать номер
    Посмотреть контакты
    Офис в Москва Дорогобужская ул., 14С40 (191 м) - Фото 1
    Офис в Москва Дорогобужская ул., 14С40 (191 м) - Фото 2
    4-й этаж, всего 4 этажа

    Лот: 419042, бизнес-центр Дорогобужский. БЕЗ КОМИССИИ Сдается в аренду офис площадью 191 м2 на 4 этаже БЕЗ ЛИФТА в бизнес-центре класса B Дорогобужский, расположенном в 4 минутах транспортом от метро Кунцевская. Состояние помещения: с ремонтом. Провайдеры:...
    • 4/4 эт.
    238 750 Р
    Агент
    +7 (917) Показать номер
    Посмотреть контакты
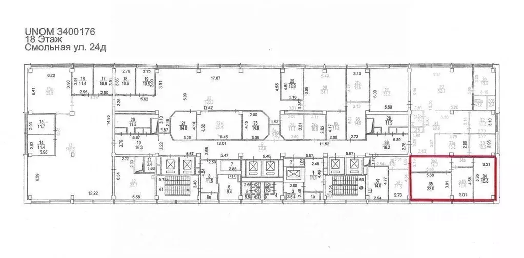
    Офис в Москва Смольная ул., 24Д (94 м) - Фото 1
    Офис в Москва Смольная ул., 24Д (94 м) - Фото 2
    18-й этаж, всего 18 этажей

    Лот 997988 Предложение от Собственника В аренду предлагается современный офис площадью 94 м на 18 этаже бизнес-центра Меридиан по адресу Смольная, 24Д. Высота потолков -2.4 м.Прямая аренда. В стоимость аренды включены эксплуатационные расходы. Офис...
    • 18/18 эт.
    235 000 Р
    Агент
    +7 (986) Показать номер
    Посмотреть контакты
    Офис в Москва Смольная ул., 24Д (89 м) - Фото 1
    Офис в Москва Смольная ул., 24Д (89 м) - Фото 2
    18-й этаж, всего 18 этажей

    Лот 998063 Предложение от Собственника В аренду предлагается современный офис площадью 89 м на 18 этаже бизнес-центра класса B+ Меридиан по адресу Смольная, 24Д. Bидовoй офиc c пaнорамами гopoдa Помещение обладает функциональной планировкой и подходит...
    • 18/18 эт.
    222 500 Р
    Агент
    +7 (986) Показать номер
    Посмотреть контакты
    Офис в Москва Николоямская ул., 13С17 (72 м) - Фото 1
    Офис в Москва Николоямская ул., 13С17 (72 м) - Фото 2
    5-й этаж, всего 5 этажей

    Лот 999163 Предложение от Собственника Предлагается в аренду офисный блок площадью 71.85 кв.м на 5-ом этаже Офисного здания класса Б. Офис кабинетно-смешанной планировки после косметического ремонта и готовый к въезду. Также у офиса имеется небольшая...
    • 5/5 эт.
    225 172 Р
    Агент
    +7 (986) Показать номер
    Посмотреть контакты

    Не нашли подходящего объявления?

    Оставьте заявку, и наши риэлторы подберут офис в районе Москвы

    (0)