362 500 Р 4 670 $ или 3 970

Информация о помещении и здании

4
Этаж
8
Этажность
Развернуть
Агент
+7 (910) 181-08-54
Начать чат с агентом

Офис в Москва ул. Докукина, 8С2 (174 м)

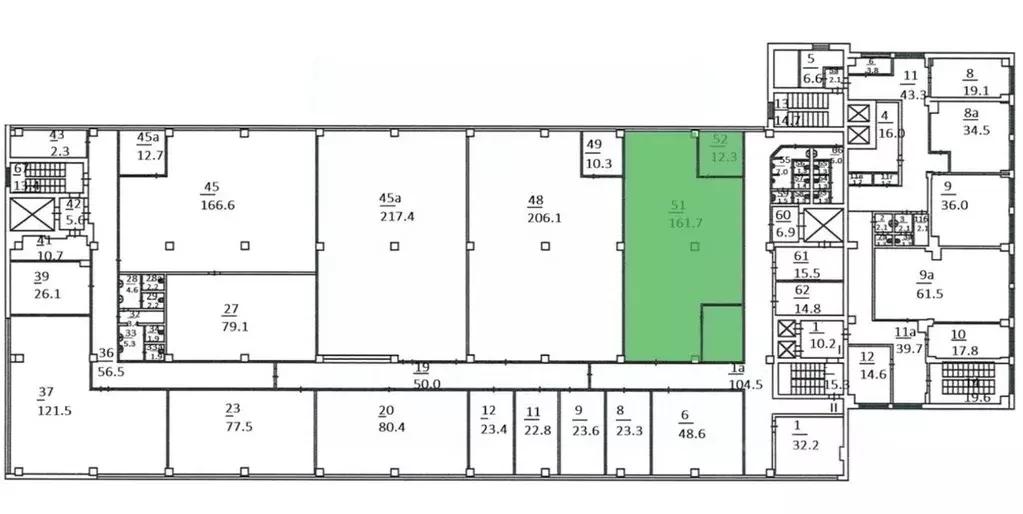
Сдается офисное помещение с отделкой площадью 174 кв.м, расположенное в деловом центре в 10 минутах пешком от метро Ботанический Сад или ВДНХ (также можно добраться за 23 минуты на автобусе, маршрут 195). Помещение находится на 4 этаже. Планировка включает open-space и два отдельных кабинета. Высота потолков составляет 5 метров.Арендная плата — в месяц. Возможны обсуждения условий и стоимости в зависимости от схемы сделки. Помещение идеально подойдет под офис, шоу-рум или call-центр.Помещение с окнами, выполнено преимущественно в формате open-space, дополнительно предусмотрены два небольших кабинета. Оборудовано современной приточно-вытяжной вентиляцией, противопожарной сигнализацией и всеми необходимыми инженерными коммуникациями. Проведены телекоммуникационные линии, включая оптико-волоконные; работают провайдеры West Call и Билайн .Стены выполнены из гипсокартона, оклеены стеклообоями и обоями, окрашены водоэмульсионной краской в два слоя в серо-голубых и бежевых тонах. Потолок — железобетонное перекрытие, окрашенное белой водоэмульсионной краской, высота потолка около 5 м. Полы покрыты линолеумом. Санузел отделан плиткой и оснащён вытяжкой. В помещении имеются электрические розетки, телефонные и компьютерные линии.Электроэнергия оплачивается по счётчику. Также по желанию арендатора возможно оформление постоянного или гостевого машиноместа за дополнительную плату. Любые улучшения сверх базовой отделки выполняются по смете и согласованному техзаданию.4/8Высота потолков5 м.СтатусСвободноПланировка2 кабинетаОтделкастандартнаяЭксплуатационные расходывключеноНалогиУСН 5 НДС

Читать полностью
    Позвонить Написать
    362 500 Р4 670 $ или 3 970
    Агент
    +7 (910) 181-08-54
    Начать чат с агентом
    Похожие предложения
    Офис в Москва ул. Докукина, 8к1 (174 м) - Фото 1
    Офис в Москва ул. Докукина, 8к1 (174 м) - Фото 2
    4-й этаж, всего 5 этажей

    ВАЖНО: БЕЗ КОММИССИ ДЛЯ АРЕНДАТОРОВ, ПРЯМАЯ АРЕНДА ОТ СОБСТВЕННИКАБизнес-центр B класса Ультрамарин расположен по адресу Москва, СВАО, район Ростокино, ул. Докукина, дом 8, в пешей доступности от метро Ботанический сад (16 мин).Характеристики здания:...
    • 4/5 эт.
    362 500 Р
    Агент
    +7 (980) Показать номер
    Посмотреть контакты
    Офис в Москва Рублевское ш., 22к2 (192 м) - Фото 1
    Офис в Москва Рублевское ш., 22к2 (192 м) - Фото 2
    5-й этаж, всего 5 этажей

    БЕЗ КОМИССИИ Бизнес-центр класса B. Сдаётся под офис, салон или медцентр блок (4 комнаты, с/у) на 5-м этаже площадью 192 кв.м. Высококачественная отделка. Кондиционер (сплит), вентиляция. Есть охрана.УСН. Рублёвское шоссе, 22к2, 12 минут пешком от метро...
    • 5/5 эт.
    350 000 Р
    Агент
    +7 (916) Показать номер
    Посмотреть контакты
    Офис в Москва Партийный пер., 1К57С3 (78 м) - Фото 1
    Офис в Москва Партийный пер., 1К57С3 (78 м) - Фото 2
    2-й этаж, всего 5 этажей

    АРЕНДА ОТ СОБСТВЕННИКАМосква, пер Партийный, 1 к 57 стр 3Звоните и пишите прямо сейчас — не упустите возможность арендовать идеальный офис для Вашего бизнеса в отличном месте Сотрудничаем с агентами.- Удобная транспортная доступность — всего несколько...
    • 2/5 эт.
    355 407 Р
    Агент
    +7 (982) Показать номер
    Посмотреть контакты
    Офис в Москва Садовая-Самотечная ул., 15/1 (156 м) - Фото 1
    Офис в Москва Садовая-Самотечная ул., 15/1 (156 м) - Фото 2
    1-й этаж, всего 3 этажа

    Предлагается в аренду офис 156 кв.м недалеко от метро. Состояние отделки — готово к въезду.Подписание договора аренды напрямую с владельцем помещения. Работаем без комиссии, процентов и надбавок.В арендную ставку не входит: коммунальные услуги, электроэнергия,...
    • 1/3 эт.
    350 000 Р
    Агент
    +7 (932) Показать номер
    Посмотреть контакты
    Офис в Москва Профсоюзная ул., 25А (120 м) - Фото 1
    Офис в Москва Профсоюзная ул., 25А (120 м) - Фото 2
    1-й этаж, всего 5 этажей

    Сдается в аренду офисное помещение на 1 этаже в бизнес-центре В+ класса, который находится по адресу: ул. Профсоюзная, д. 25А. Без комиссии для Арендатора ЛОКАЦИЯ: Шаговая доступность от станции метро Профсоюзная, Новые Черемушки, Академическая. Удобный...
    • 1/5 эт.
    350 000 Р
    Агент
    +7 (989) Показать номер
    Посмотреть контакты

    Не нашли подходящего объявления?

    Оставьте заявку, и наши риэлторы подберут офис в районе Москвы

    (0)