210 923 Р 2 710 $ или 2 310

Информация о помещении и здании

1
Этаж
17
Этажность
Развернуть
Агент
+7 (916) 261-43-90
Начать чат с агентом

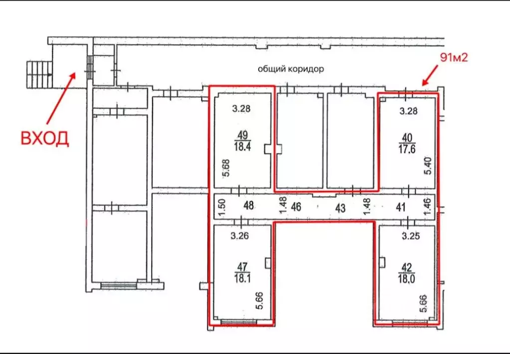
Офис в Москва ул. Наметкина, 11 (91 м)

ВАЖНО: БЕЗ КОММИССИ ДЛЯ АРЕНДАТОРОВ, ПРЯМАЯ АРЕНДА ОТ СОБСТВЕННИКАЖилое здание B класса Наметкинаасположено по адресу Москва, ЮЗАО, район Черёмушки, ул. Намёткина, 11, в пешей доступности от метро Новые Черёмушки (10 мин), метро Калужская (14 мин), метро Воронцовская (13 мин), метро Зюзино (19 мин).Характеристики здания: 17 этажей, жилое здание расположено на первой линии, техническое оснащение и управление климатом по требованиям B класса, 27 налоговая.Жилое здание оснащено пассажирским лифтом. Есть круглосуточная возможность работы, контроль доступа в здание, видеонаблюдение, наземный паркинг.Предлагаем к аренде офис 91 м на 1 этаже. Ваш офис в здании Наметкина 11 может работать круглосуточно.Обратитесь за спецусловиями на аренду

Читать полностью
    Позвонить Написать
    210 923 Р2 710 $ или 2 310
    Агент
    +7 (916) 261-43-90
    Начать чат с агентом
    Похожие предложения
    Офис в Москва ул. Наметкина, 11 (90 м) - Фото 1
    Офис в Москва ул. Наметкина, 11 (90 м) - Фото 2
    1-й этаж, всего 17 этажей

    БЕЗ КОМИССИИ Жилой дом. Сдаётся под офис блок (4 кабинета) на первом этаже площадью 90 кв.м. Стандартная офисная отделка.УСН. Улица Намёткина, 11, 10 минут пешком от метро Новые Черемушки. ЛОТ 226504
    • 1/17 эт.
    210 000 Р
    Агент
    +7 (915) Показать номер
    Посмотреть контакты
    Офис в Москва Ленинский просп., 158 (57 м) - Фото 1
    Офис в Москва Ленинский просп., 158 (57 м) - Фото 2
    3-й этаж, всего 3 этажа

    Предновогодняя АКЦИЯ СНИЖЕНИЕ ЦЕН до середины декабря Подробности уточняйте у менеджера.Сдается в аренду меблированный офис с чистовой отделкой в комплексе Салют .Комплекс удачно расположен на пересечении Ленинского и Вернадского проспектов. В пешей...
    • 3/3 эт.
    210 583 Р
    Агент
    +7 (923) Показать номер
    Посмотреть контакты
    Офис в Москва Новочеремушкинская ул., 66к1 (104 м) - Фото 1
    1-й этаж, всего 2 этажа

    ВАЖНО: БЕЗ КОММИССИ ДЛЯ АРЕНДАТОРОВ, ПРЯМАЯ АРЕНДА ОТ СОБСТВЕННИКАЖилое здание B класса Новочеремушкинская 66касположено по адресу Москва, ЮЗАО, район Черёмушки, Новочерёмушкинская ул., дом 66к1, в пешей доступности от метро Новые Черёмушки (10 мин).Характеристики...
    • 1/2 эт.
    210 002 Р
    Агент
    +7 (916) Показать номер
    Посмотреть контакты
    Офис (141 м) - Фото 1
    Офис (141 м) - Фото 2
    3-й этаж, всего 5 этажей

    АРЕНДА ОТ 11 МЕС. ТОЛЬКО ПОД ОФИС БЦ класса B «Водники . Сдаётся под офис блок (4 кабинета) на 3-м этаже площадью 141 кв.м. Стандартная офисная отделка. Вентиляция. Есть охрана.УСН, эксплуатационные расходы включены. Лот № 242763. С риелторами не сотрудничаем...
    • 3/5 эт.
    214 191 Р
    Агент
    +7 (985) Показать номер
    Посмотреть контакты
    Офис в Москва Дмитровское ш., 157С12 (283 м) - Фото 1
    Офис в Москва Дмитровское ш., 157С12 (283 м) - Фото 2
    4-й этаж, всего 6 этажей

    Объект 541127. АКЦИЯ до конца 2025 года Скидка на первые 2 месяца аренды 80тыс Аренда офиса с мебелью возле метро Лианозово офисный блок находится в БЦ Гефест , занимает полностью этаж , соседей нет . Свой вход с лестницы . Свой сан узел ....
    • 4/6 эт.
    200 000 Р
    Агент
    +7 (989) Показать номер
    Посмотреть контакты

    Не нашли подходящего объявления?

    Оставьте заявку, и наши риэлторы подберут офис в районе Москвы

    (0)