Реализация объекта недвижимости приостановлена

Информация о помещении и здании

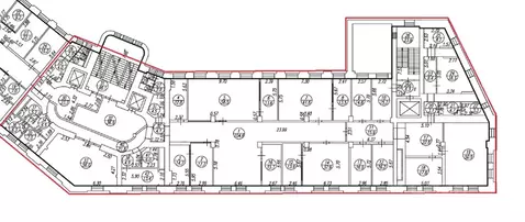
5
Этаж
9
Этажность
Развернуть

Офис (746 м)

Предлагается в долгосрочную прямую аренду офисный блок класса B общей площадью 746 кв.м в бизнес-центре.Москва, САО, Ленинградский проспект, 80 к37Удобная локация здания:- Автомобиль: близость транспортных магистралей, таких как Ленинградское шоссе, Ленинградский проспект, Волоколамское шоссе и других.- Возможность аренды парковочных мест.- Ближайшее метро: от метро Сокол всего 6 мин пешком Офис класса B:- Офис с отделкой, полностью готов к аренде- Вентиляция: Приточно-вытяжная вентиляция - Кондиционирование: центральное Что еще можно узнать о предложении: 1. Мы отправим Вам подробную презентацию с планировкой и фотографиями в течение 10 минут после звонка, чтобы Вы могли поделиться информацией с руководством или с коллегами. 2. Ответим на любые Ваши вопросы, готовы обсуждать любые предложения по коммерческим условиям аренды помещения. 3. Оперативно организуем просмотр помещения, договоримся на любое удобное время, подготовим виртуальный тур. Звоните нам в любое время. По будням мы сможем ответить на Ваши вопросы до 19:00. В выходные или вечернее время мы передадим Ваш контакт нашему менеджеру по аренде. НОМЕР ОБЪЯВЛЕНИЯ: №1373639

Читать полностью

    Реализация объекта недвижимости приостановлена

    Не нашли подходящего объявления?

    Оставьте заявку, и наши риэлторы подберут офис в районе Москвы

    (0)