1 990 200 Р 25 550 $ или 21 660

Информация о помещении и здании

4
Этаж
22
Этажность
Развернуть
Агент
+7 (925) 820-61-37
Начать чат с агентом

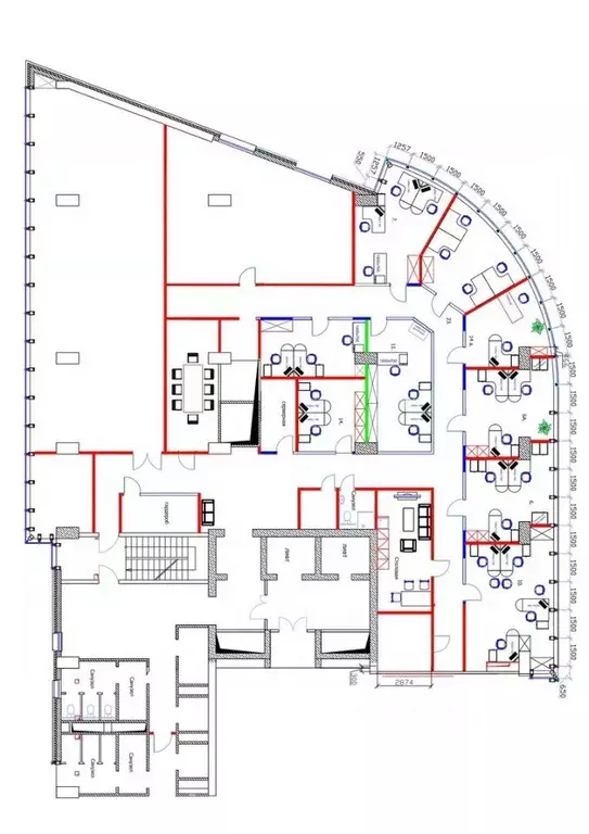
Офис (664 м)

Сдается в долгосрочную прямую аренду офис класса B+ площадью 664 кв. метров в бизнес-центре Лотте .Москва, ЮЗАО, Профсоюзная улица, 65 к1Удобное расположение здания для всех видов транспорта:- Автомобиль: близость транспортных магистралей, таких как Севастопольский проспект, Профсоюзная улица и других.- Возможность аренды парковочных мест.- Ближайшее метро: от метро Калужская всего 3 мин пешком Офис класса B+:- Офис с отделкой, полностью готов к аренде- Вентиляция: Приточно-вытяжная вентиляция - Кондиционирование: центральное - Презентабельный центральный ресепшн- Круглосуточная охрана и видеонаблюдение- Развитая инфраструктура внутри зданияЕсли данное предложение подходит Вашему запросу: 1. Мы подготовили презентацию с информацией о помещении, фотографиями и планировкой, чтобы Вы могли поделиться ей с коллегами или руководством. Попросите об этом нашего менеджера по телефону в объявлении. 2. Задайте любые вопросы менеджеру по телефону, готовы обсуждать любые предложения по финансовым условиям договора аренды. 3. Покажем помещение в удобное для Вас время с менеджером в здании, при необходимости подготовим виртуальный тур. Вы можете позвонить нам в любое время. Мы ответим на Ваши вопросы по будням до 19:00, а поздно вечером или в выходные зафиксируем Ваш контакт и перезвоним в рабочее время.НОМЕР ОБЪЯВЛЕНИЯ: №1326905

Читать полностью
    Позвонить Написать
    1 990 200 Р25 550 $ или 21 660
    Агент
    +7 (925) 820-61-37
    Начать чат с агентом
    Похожие предложения
    Офис в Москва ул. Обручева, 23к3 (746 м) - Фото 1
    Офис в Москва ул. Обручева, 23к3 (746 м) - Фото 2
    11-й этаж, всего 15 этажей

    Экономьте время и деньги: отрисуем планировку под вас бесплатно, с любым количеством правок. Предлагаем в аренду Офис в бизнес-центре Газфилд по адресу: Москва, улица Обручева, 23к3.Рабочих мест: от 94 до 165*.Площадь: 746 м2.Планировка: смешанная.Состояние:...
    • 11/15 эт.
    2 051 500 Р
    Агент
    +7 (980) Показать номер
    Посмотреть контакты
    Офис в Москва ул. Обручева, 23к3 (715 м) - Фото 1
    Офис в Москва ул. Обручева, 23к3 (715 м) - Фото 2
    11-й этаж, всего 15 этажей

    Экономьте время и деньги: отрисуем планировку под вас бесплатно, с любым количеством правок. Предлагаем в аренду Офис в бизнес-центре Газфилд по адресу: Москва, улица Обручева, 23к3.Рабочих мест: от 90 до 158*.Площадь: 715 м2.Планировка: смешанная.Состояние:...
    • 11/15 эт.
    1 966 250 Р
    Агент
    +7 (980) Показать номер
    Посмотреть контакты
    Офис в Москва ул. Наметкина, 12А (658 м) - Фото 1
    Офис в Москва ул. Наметкина, 12А (658 м) - Фото 2
    19-й этаж, всего 23 этажа

    ВАЖНО: БЕЗ КОММИССИ ДЛЯ АРЕНДАТОРОВ, ПРЯМАЯ АРЕНДА ОТ СОБСТВЕННИКАБизнес-центр A класса Газойл Плаза расположен по адресу Москва, ЮЗАО, район Черёмушки, ул. Намёткина, дом 12а, в пешей доступности от метро Калужская (13 мин).Характеристики здания: 23...
    • 19/23 эт.
    1 919 167 Р
    Агент
    +7 (916) Показать номер
    Посмотреть контакты
    Офис (711 м) - Фото 1
    Офис (711 м) - Фото 2
    11-й этаж, всего 14 этажей

    Предлагается в долгосрочную аренду офисный блок класса B+ площадью 711 квадр. метров в бизнес-центре Газфилд .Москва, ЮЗАО, улица Обручева, 23 к3Удобная локация здания:- Автомобиль: близость транспортных магистралей, таких как Ленинский проспект, Профсоюзная...
    • 11/14 эт.
    1 955 300 Р
    Агент
    +7 (925) Показать номер
    Посмотреть контакты
    Офис в Москва 1-й Казачий пер., 7 (315 м) - Фото 1
    Офис в Москва 1-й Казачий пер., 7 (315 м) - Фото 2
    4-й этаж, всего 4 этажа

    Предложение в аренду 62214.Парковка: 330 евро в мес + НДС.Предлагается в аренду меблированный смарт-офис свободной планировки на 2 этаже Дома Немецкой Экономики. Камерный бизнес-центр класса А располагается в 5 минутах пешком от м.Полянка.. Офис наабочих...
    • 4/4 эт.
    2 088 004 Р
    Агент
    +7 (989) Показать номер
    Посмотреть контакты

    Не нашли подходящего объявления?

    Оставьте заявку, и наши риэлторы подберут офис в районе Москвы

    (0)