Россия, Москва, 2-я Хуторская ул., 38А
558 350 Р 7 190 $ или 6 120

Информация о помещении и здании

4
Этаж
8
Этажность
Развернуть
Агент
+7 (932) 720-03-65
Начать чат с агентом

Офис в Москва 2-я Хуторская ул., 38А (258 м)

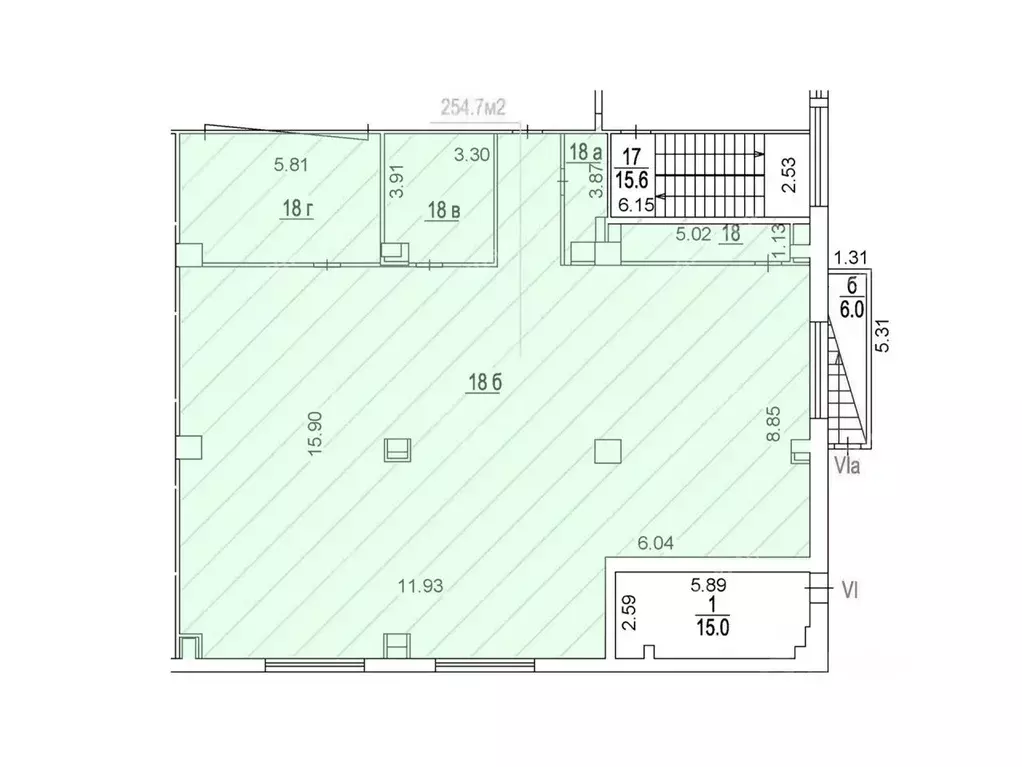
Аренда офиса от собственника 257.7 кв.м недалеко от метро.Это офис содержит несколько помещений, которые располагаются на разных этажах.Подписание договора аренды напрямую с владельцем помещения. Работаем без комиссии, процентов и надбавок.В арендную ставку включено: - НДС,- коммунальные услуги, не включая электроэнергию,- эксплуат.расходы.В арендную ставку не входит: электроэнергия, уборка офиса, уборка общих мест, интернет.• условия договора: 11 мес, 1 мес обеспечительный, предоплата 2 мес;• налогообложение: НДС;• вход в здание: для арендаторов по документу, для клиентов по документу;• интернет провайдеры: Мастертел, Гарс, Совинтел, Наука и Связь, ВДК, Орандж;• парковка: на территории БЦ;• здание работает: круглосуточно;Показы с 10.00 до 18.00 по будням.Поможем провести переговоры по условиям аренды, удовлетворив все стороны.Для организации просмотра и для получения консультации по условиям аренды звоните.Для вас наши услуги бесплатны, их оплачивает БЦ.Описание бизнес-центра:Инфраструктура района хорошо развита, поэтому практически рядом с центром множество кафе, ресторанов быстрого питания, банковских отделений, магазинов и развлекательных заведений. Парковочные места расположены перед каждым корпусом, общее число парковочных мест - 400. Аренда офисов Мирланд включает в себя уборку общих помещений и туалетных блоков, охрану и безопасность сотрудников, круглосуточную службу ресепшен.

Читать полностью
    Позвонить Написать
    558 350 Р7 190 $ или 6 120
    Агент
    +7 (932) 720-03-65
    Начать чат с агентом
    Похожие предложения
    Офис в Москва 2-я Хуторская ул., 38А (255 м) - Фото 1
    Офис в Москва 2-я Хуторская ул., 38А (255 м) - Фото 2
    1-й этаж, всего 8 этажей

    Предлагается в аренду 254.7 кв.м недалеко от метро.Помещение доступно для аренды с 31.12.2025.Подписание договора аренды напрямую с владельцем помещения. Работаем без комиссии, процентов и надбавок.В арендную ставку включено: - НДС,- коммунальные услуги,...
    • 1/8 эт.
    551 850 Р
    Агент
    +7 (932) Показать номер
    Посмотреть контакты
    Офис (254.7 м) - Фото 1
    Офис (254.7 м) - Фото 2
    1-й этаж, всего 3 этажа

    Сдается в аренду офисное помещение на 1 этаже в БЦ Мирланд, В+ класса, который находится по адресу: ул. 2-я Хуторская, д. 38А, стр. 9. Без комиссии для Арендатора ЛОКАЦИЯ:– Пешая доступность от станций метро Гражданская и Дмитровская.– Удобный выезд на...
    • 1/3 эт.
    551 850 Р
    Агент
    +7 (901) Показать номер
    Посмотреть контакты
    Офис в Москва 2-я Хуторская ул., 38А (259 м) - Фото 1
    Офис в Москва 2-я Хуторская ул., 38А (259 м) - Фото 2
    3-й этаж, всего 8 этажей

    Предлагается в аренду офис 259.1 кв.м недалеко от метро.Офис состоит из несколько помещений, расположенных на разных этажах.Подписание договора аренды напрямую с владельцем помещения. Работаем без комиссии, процентов и надбавок.В арендную ставку включено:...
    • 3/8 эт.
    561 448 Р
    Агент
    +7 (932) Показать номер
    Посмотреть контакты
    Офис (254.7 м) - Фото 1
    Офис (254.7 м) - Фото 2
    1-й этаж, всего 5 этажей

    Офисное помещение 254.7 кв. м в бизнес-центре «Мирлэнд . Объект скоро освободится. Успейте забронировать на выгодных условиях. Готовность ко въезду уточняется по запросу. Округ: Северный (САО). Район: Савёловский. Ближайшие станции метро: Дмитровская,...
    • 1/5 эт.
    551 858 Р
    Агент
    +7 (925) Показать номер
    Посмотреть контакты
    Офис в Москва 2-я Хуторская ул., 38АС9 (255 м) - Фото 1
    Офис в Москва 2-я Хуторская ул., 38АС9 (255 м) - Фото 2
    1-й этаж, всего 5 этажей

    Офисное помещение 254.7 кв. м в бизнес-центре Мирлэнд . Объект скоро освободится. Успейте забронировать на выгодных условиях. Готовность ко въезду уточняется по запросу. Округ: Северный (САО). Район: Савёловский. Ближайшие станции метро: Дмитровская,...
    • 1/5 эт.
    551 935 Р
    Агент
    +7 (915) Показать номер
    Посмотреть контакты

    Не нашли подходящего объявления?

    Оставьте заявку, и наши риэлторы подберут офис в районе Москвы

    (0)