Россия, Москва, 1-й Волоколамский проезд, 10С3
1 699 100 Р 21 720 $ или 18 710

Информация о помещении и здании

9
Этаж
9
Этажность
Развернуть
Агент
+7 (985) 504-16-30
Начать чат с агентом

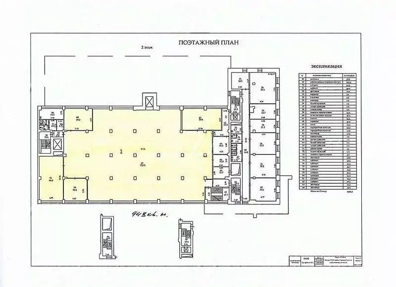
Офис в Москва 1-й Волоколамский проезд, 10С3 (654 м)

В аренду предлагаем офис в Бизнес Центре класса В+ Диапазон Общая площадь 653,5 кв.м. Планировка смешанная.С отделкой.Центральное кондиционирование, система контроля доступа, охрана.2 лифта Sigma.2-я категория безопасности электроснабжения 9 независимых провайдеров (Глобус Телеком , МегаФон, Плюс-Телеком, Вымпелком, МТС, Эквант, Макомнет, Оранж, Тайм Лайн ) Инфраструктура: конференц-комнаты, кафе, рестораны. столовая, салон красоты, фитнес-клуб, турагентство, банкоматы, химчистка, зона отдыха.Парковочные места на наземной охраняемой парковке по цене. за 1 м/м в месяц. Парковочный коэффициент - 1:150.Ставка аренды включает НДС и операционные расходы. Переменная арендная плата оплачивается дополнительно по расчетам фактического потребления и пропорционально занимаемой площади.Гарантийный взнос: устанавливается в размере, равном 2-м месяцам Базовой арендной платы .12 минут пешком от ст. мцк Панфиловская.

Читать полностью
    Позвонить Написать
    1 699 100 Р21 720 $ или 18 710
    Агент
    +7 (985) 504-16-30
    Начать чат с агентом
    Похожие предложения
    Офис в Москва 1-й Волоколамский проезд, 10С3 (647 м) - Фото 1
    Офис в Москва 1-й Волоколамский проезд, 10С3 (647 м) - Фото 2
    8-й этаж, всего 9 этажей

    В аренду предлагаем офис в Бизнес Центре класса В+ Диапазон Общая площадь 647кв.м. (возможно с мебелью).Планировка смешанная.С отделкой.Центральное кондиционирование, система контроля доступа, охрана.2 лифта Sigma.2-я категория безопасности электроснабжения...
    • 8/9 эт.
    1 682 720 Р
    Агент
    +7 (985) Показать номер
    Посмотреть контакты
    Офис в Москва 1-й Волоколамский проезд, 10С3 (647 м) - Фото 1
    Офис в Москва 1-й Волоколамский проезд, 10С3 (647 м) - Фото 2
    8-й этаж, всего 9 этажей

    Сдается в аренду офисное помещение на 8 этаже в БЦ Диапазон, В класса, который находится по адресу: 1-й Волоколамский проезд, д. 10, стр. 3.Пешая доступность от м. Панфиловская, Октябрьское поле, Стрешнево. Удобный выезд на Ленинградский проспект, Волоколамское...
    • 8/9 эт.
    1 682 720 Р
    Агент
    +7 (989) Показать номер
    Посмотреть контакты
    Офис в Москва Планерная ул., 6К2 (948 м) - Фото 1
    Офис в Москва Планерная ул., 6К2 (948 м) - Фото 2
    2-й этаж, всего 5 этажей

    БЕЗ КОМИССИИ Бизнес-центр класса B, рядом с метро. Сдаётся под офис блок с санузлом на 2-м этаже площадью 948 кв.м. Стандартная офисная отделка. Есть охрана.НДС включен. Планерная улица, 6к2, 1 минута пешком от метро Планерная. ЛОТ 240256
    • 2/5 эт.
    1 738 000 Р
    Агент
    +7 (915) Показать номер
    Посмотреть контакты
    Офис в Москва Городская ул., 8 (750 м) - Фото 1
    Офис в Москва Городская ул., 8 (750 м) - Фото 2
    1-й этаж, всего 7 этажей

    Экономьте время и деньги: отрисуем планировку под вас бесплатно, с любым количеством правок. Предлагаем в аренду офис в бизнес-центре Городская ул., 8 по адресу: Москва, Городская улица, 8.Рабочих мест: от 94 до 166*.Площадь: 750 м2.Планировка: смешанная.Состояние:...
    • 1/7 эт.
    1 653 750 Р
    Агент
    +7 (980) Показать номер
    Посмотреть контакты
    Офис в Москва Городская ул., 8 (750 м) - Фото 1
    Офис в Москва Городская ул., 8 (750 м) - Фото 2
    2-й этаж, всего 7 этажей

    Экономьте время и деньги: отрисуем планировку под вас бесплатно, с любым количеством правок. Предлагаем в аренду офис в бизнес-центре Городская ул., 8 по адресу: Москва, Городская улица, 8.Рабочих мест: от 94 до 166*.Площадь: 750 м2.Планировка: смешанная.Состояние:...
    • 2/7 эт.
    1 653 750 Р
    Агент
    +7 (980) Показать номер
    Посмотреть контакты

    Не нашли подходящего объявления?

    Оставьте заявку, и наши риэлторы подберут офис в районе Москвы

    (0)