Россия, Москва, 1-я Тверская-Ямская ул., 21
6 652 700 Р 85 040 $ или 72 240

Информация о помещении и здании

9
Этаж
10
Этажность
Развернуть
Агент
+7 (989) 407-39-26
Начать чат с агентом

Офис в Москва 1-я Тверская-Ямская ул., 21 (937 м)

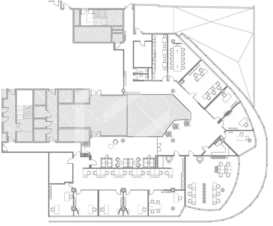
Предложение в аренду 62401.Парковка: подземная 34650р/мес.Предлагаем в аренду офис в бизнес-центре класса А в Тверском районе. До м.Белорусская 5 минут пешком.. Офис расположен на 9-м этаже, смешанная планировка (10 кабинетов, зона open-space, переговорная, кухня и свои с/у), качественный офисный ремонт. Установлена приточно-вытяжная вентиляция и системы кондиционирования.. Офис сдается без мебели.. В ставку включена эксплуатация, к/у оплачиваются отдельно.. За дополнительную плату предоставляются места на парковке.. Офис свободен к заезду с 1 марта 2026.Без комиссии.

Читать полностью
    Позвонить Написать
    6 652 700 Р85 040 $ или 72 240
    Агент
    +7 (989) 407-39-26
    Начать чат с агентом
    Похожие предложения
    Офис в Москва 1-я Тверская-Ямская ул., 21 (937 м) - Фото 1
    Офис в Москва 1-я Тверская-Ямская ул., 21 (937 м) - Фото 2
    9-й этаж, всего 10 этажей

    1071098 . Предлагаем в аренду офисное помещение площадью 937 кв. м, расположенное в бизнес-центре Четыре Ветра Преимущества объекта: - Бизнес-центр класса А- Шаговая доступность от станции метро Белорусская (5 минут пешком)- Этаж: 9- Помещение предлагается...
    • 9/10 эт.
    6 652 700 Р
    Агент
    +7 (938) Показать номер
    Посмотреть контакты
    Офис в Москва 1-я Тверская-Ямская ул., 21 (937 м) - Фото 1
    Офис в Москва 1-я Тверская-Ямская ул., 21 (937 м) - Фото 2
    9-й этаж, всего 10 этажей

    Сдается в аренду офис 937 кв.м недалеко от метро. Состояние отделки — готово к въезду.Помещение доступно для аренды с 01.03.2026.Договор аренды заключаете с собственником помещения. Без надбавки к итоговой стоимости аренды.В арендную ставку включено:...
    • 9/10 эт.
    6 763 578 Р
    Агент
    +7 (932) Показать номер
    Посмотреть контакты
    Офис в Москва 1-я Тверская-Ямская ул., 21 (937 м) - Фото 1
    Офис в Москва 1-я Тверская-Ямская ул., 21 (937 м) - Фото 2
    9-й этаж, всего 10 этажей

    Предлагается в аренду стильный офис общей площадью 937 кв.м., расположенный в современном деловом центре класса А Четыре ветра центрального административного округа Москвы, Тверского района.БЦ Четыре ветра находится в шаговой доступности от м. Белорусская,...
    • 9/10 эт.
    6 652 700 Р
    Агент
    +7 (915) Показать номер
    Посмотреть контакты
    Офис в Москва Холодильный пер., 3к1 (1279 м) - Фото 1
    Офис в Москва Холодильный пер., 3к1 (1279 м) - Фото 2
    2-й этаж, всего 4 этажа

    Аренда сервисного офиса в Товариществе Лён наабочих мест площадью 1279.0 м2, Холодильный пер, д 3 к 1 стр 4ОП 2 месяцаСрок договора 3 годаЕжегодная индексация 9 В стоимость аренды входит:- классическая аренда офиса с доступом 24/7;- меблировка сервисных...
    • 2/4 эт.
    6 800 000 Р
    Агент
    +7 (910) Показать номер
    Посмотреть контакты
    Офис в Москва Преображенская пл., 8 (2088 м) - Фото 1
    Офис в Москва Преображенская пл., 8 (2088 м) - Фото 2
    9-й этаж, всего 27 этажей

    Экономьте время и деньги: отрисуем планировку под вас бесплатно, с любым количеством правок. Предлагаем в аренду Офис в бизнес-центре Прео 8 по адресу: Москва, Преображенская площадь, 8.Рабочих мест: от 261 до 464*.Площадь: 2 088 м2.Планировка: смешанная.Состояние:...
    • 9/27 эт.
    6 612 000 Р
    Агент
    +7 (980) Показать номер
    Посмотреть контакты

    Не нашли подходящего объявления?

    Оставьте заявку, и наши риэлторы подберут офис в районе Москвы

    (0)