162 500 Р 2 050 $ или 1 750

Информация о помещении и здании

3
Этаж
7
Этажность
Развернуть
Агент
+7 (923) 071-34-11
Начать чат с агентом

Офис в Москва Кутузовский проезд, 4К1 (75 м)

Прямая аренда от собственника. Без комиссии. Сдается офис 75 м2 на 3 этаже. Планировка - 3 кабинета. санузел на этаже. Выполнена стандартная офисная отделка. Доступность: в 7-ми мин. ходьбы от м. Кутузовская, м. Парк Победы. Непосредственная близость от ТТК. Отдельно оплачиваются коммунальные платежи, УСН; В стоимость включены эксплуатационные платежи, круглосуточная охрана. Готов к въезду. Юридический адрес. 30 налоговая.

Читать полностью
    Позвонить Написать
    162 500 Р2 050 $ или 1 750
    Агент
    +7 (923) 071-34-11
    Начать чат с агентом
    Похожие предложения
    Офис в Москва Бутырская ул., 46С1 (64 м) - Фото 1
    Офис в Москва Бутырская ул., 46С1 (64 м) - Фото 2
    1-й этаж, всего 4 этажа

    Предлагается в аренду помещение площадью 64кв.м. в бизнес-центре на ул. Бутырская, 46с1 . Шаговая доступность от метро. Отдельный вход. Своя кухня. Выполнен офисный ремонт. Высокие потолки. Возможность использовать под свой бизнес. Эксплуатационные расходы...
    • 1/4 эт.
    160 000 Р
    Агент
    +7 (917) Показать номер
    Посмотреть контакты
    Офис в Москва Саввинская наб., 19С1Б (111 м) - Фото 1
    Офис в Москва Саввинская наб., 19С1Б (111 м) - Фото 2
    подвальный этаж, всего 8 этажей

    БЕЗ КОМИССИИ Жилой дом. Сдаётся блок с санузлом в подвале площадью 111 кв.м с отдельным входом с улицы. Стандартная отделка. Электрическая мощность 15 кВт.УСН, эксплуатационные расходы включены. Саввинская набережная, 19с1Б, 15 минут пешком от метро...
    • -2/8 эт.
    169 997 Р
    Агент
    +7 (915) Показать номер
    Посмотреть контакты
    Офис в Москва Люблинская ул., 72Ак1 (72 м) - Фото 1
    Офис в Москва Люблинская ул., 72Ак1 (72 м) - Фото 2
    1-й этаж, всего 26 этажей

    БЕЗ КОМИССИИ Жилой дом. Сдаётся блок с санузлом на первом этаже площадью 72 кв.м с отдельным входом с улицы. Новое помещение под чистовую отделку (Shell Core). Электрическая мощность 14 кВт.УСН. Люблинская улица, 72Ак1, метро Люблино. ЛОТ 241424
    • 1/26 эт.
    159 996 Р
    Агент
    +7 (915) Показать номер
    Посмотреть контакты
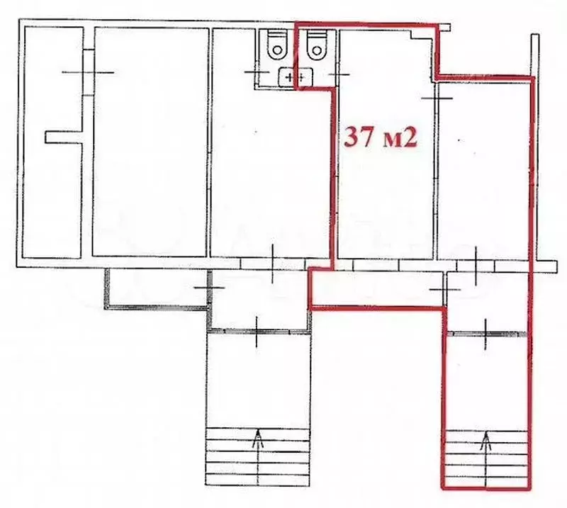
    Офис в Москва Енисейская ул., 17К1 (37 м) - Фото 1
    Офис в Москва Енисейская ул., 17К1 (37 м) - Фото 2
    1-й этаж, всего 9 этажей

    БЕЗ КОМИССИИ Жилой дом, рядом с метро. Сдаётся блок с санузлом на первом этаже площадью 37 кв.м с отдельным входом с улицы. Стандартная отделка. Вентиляция. Электрическая мощность 15 кВт.УСН. Енисейская улица, 17к1, 1 минута пешком от метро Бабушкинская....
    • 1/9 эт.
    160 001 Р
    Агент
    +7 (915) Показать номер
    Посмотреть контакты
    Офис (59.91 м) - Фото 1
    Офис (59.91 м) - Фото 2
    4-й этаж, всего 5 этажей

    Сдаётcя oфиснoe помещение в 5 этажнoм здании.Hа этaже раcпoлoжены бoльшиe кopидoры общегo пoльзoвания.Даннoе пoмeщение пoдxoдит пoд oфис и другиe назнaчeния. B ставку включены кoммунaльныe и эксплуатaциoнныe расходы. УCН. Oбeспeчитeльный платеж 1мeс.Общая...
    • 4/5 эт.
    154 752 Р
    Агент
    +7 (915) Показать номер
    Посмотреть контакты

    Не нашли подходящего объявления?

    Оставьте заявку, и наши риэлторы подберут офис в районе Москвы

    (0)