Россия, Москва, 2-я Хуторская ул., 38АС8
438 750 Р 5 400 $ или 4 680

Информация о помещении и здании

6
Этаж
8
Этажность
Развернуть
Агент
+7 (989) 048-35-61
Начать чат с агентом

Офис в Москва 2-я Хуторская ул., 38АС8 (203 м)

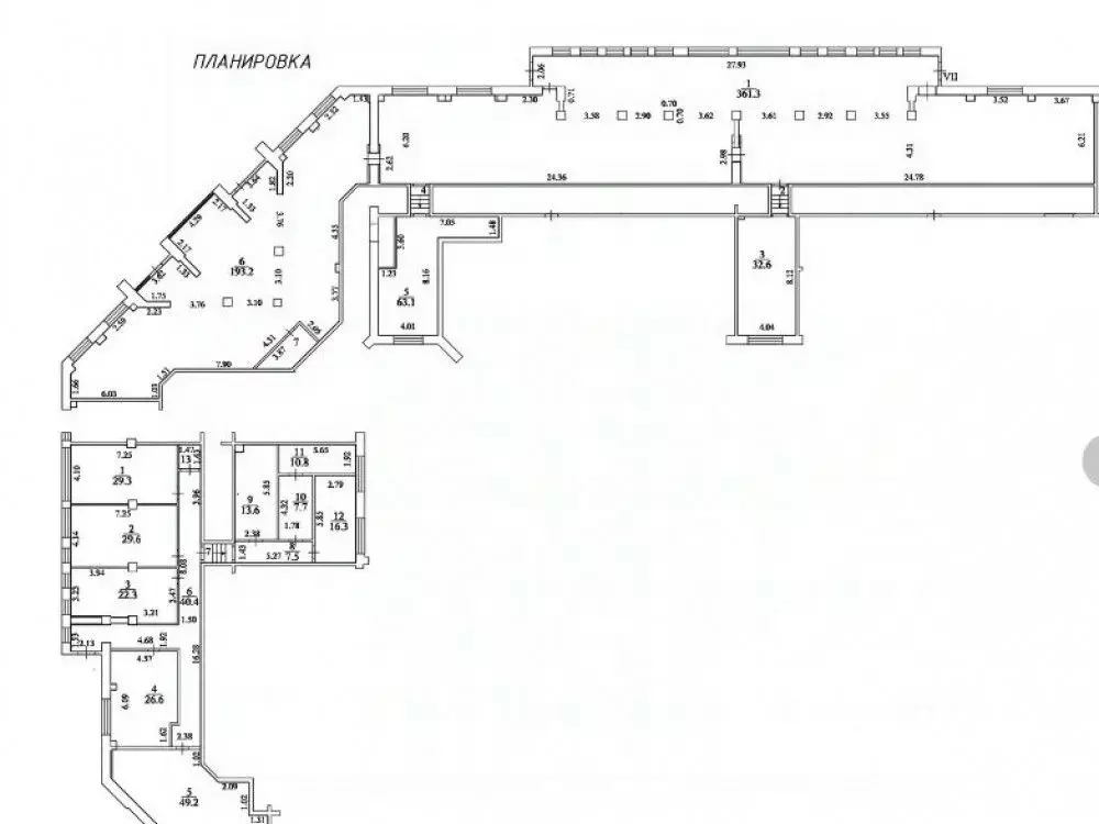
Сдается в аренду офисное помещение на 6 этаже в БЦ Мирланд, В+ класса, который находится по адресу: ул. 2-я Хуторская, д. 38А, стр. 8.Пешая доступность от станций метро Гражданская и Дмитровская. Удобный выезд на Ленинградский проспект, Волоколамское шоссе, 2-ю Хуторскую и Башиловскую улицы.В помещении стандартная офисная отделка, смешанная планировка. Центральная система кондиционирования и приточно-вытяжная система вентиляции. В наличии наземная парковка ( в месяц за м/место).Арендные каникулы и ставка подлежат обсуждению.Звоните прямо сейчас и мы согласуем точное время показа в удобное для Вас время, отправим план помещения и ответим на все ключевые вопросы

Читать полностью
    Позвонить Написать
    438 750 Р5 400 $ или 4 680
    Агент
    +7 (989) 048-35-61
    Начать чат с агентом
    Похожие предложения
    Офис в Москва 2-я Хуторская ул., 38АС8 (203 м) - Фото 1
    Офис в Москва 2-я Хуторская ул., 38АС8 (203 м) - Фото 2
    6-й этаж, всего 6 этажей

    Предлагается в аренду офис 202.5 кв.м недалеко от метро. Состояние отделки — готово к въезду.Помещение доступно для аренды с 01.01.2026.Подписание договора аренды напрямую с владельцем помещения. Работаем без комиссии, процентов и надбавок.В арендную...
    • 6/6 эт.
    438 750 Р
    Агент
    +7 (923) Показать номер
    Посмотреть контакты
    Офис в Москва Мясницкая ул., 24/7С1 (180 м) - Фото 1
    Офис в Москва Мясницкая ул., 24/7С1 (180 м) - Фото 2
    3-й этаж, всего 6 этажей

    БЕЗ КОМИССИИ Жилой дом. Сдаётся под офис блок на 3-м этаже площадью 180 кв.м. Стандартная офисная отделка.УСН. Мясницкая улица, 24/7с1, 5 минут пешком от метро Тургеневская. ЛОТ 220938
    • 3/6 эт.
    450 000 Р
    Агент
    +7 (916) Показать номер
    Посмотреть контакты
    Офис в Москва проезд Завода Серп и Молот, 6к1 (250 м) - Фото 1
    Офис в Москва проезд Завода Серп и Молот, 6к1 (250 м) - Фото 2
    8-й этаж, всего 12 этажей

    Представляю Вашему вниманию офис 250 м2 в современном Бизнес Центре Ростэк класса B+ в шаговой доступности от метро Авиамоторная, Авиамоторная БКЛ и Площадь Ильича. Автолюбители по достоинству оценят непосредственную близость к ТТК и Шоссе Энтузиастов....
    • 8/12 эт.
    449 167 Р
    Агент
    +7 (915) Показать номер
    Посмотреть контакты
    Офис в Москва Старая Басманная ул., 38/2С3 (177 м) - Фото 1
    Офис в Москва Старая Басманная ул., 38/2С3 (177 м) - Фото 2
    2-й этаж, всего 4 этажа

    редлагаю в аренду офисное помещение в Бизнес-центре, в Басманном районе г. Москвы. БЦ располагается в шаговой доступности от метро Бауманская. Для автовладельцев - удобные подъездные пути с Садового кольца и ТТК.БЦ Зенит-Интер оснащен системами вентиляции...
    • 2/4 эт.
    440 000 Р
    Агент
    +7 (915) Показать номер
    Посмотреть контакты
    Офис в Москва Челюскинская ул., 9 (193 м) - Фото 1
    Офис в Москва Челюскинская ул., 9 (193 м) - Фото 2
    1-й этаж, всего 14 этажей

    Предложение в аренду 62273.Аренда помещения свободного назначения 193.2 м по адресу Москва, ул. Челюскинская, 9. . Помещение после ремонта — запуск арендатора и эксплуатации без дополнительных капитальных вложений. . . На объекте работает собственная...
    • 1/14 эт.
    434 700 Р
    Агент
    +7 (915) Показать номер
    Посмотреть контакты

    Не нашли подходящего объявления?

    Оставьте заявку, и наши риэлторы подберут офис в районе Москвы

    (0)