676 000 Р 8 330 $ или 7 110

Информация о помещении и здании

16
Этаж
16
Этажность
Развернуть
Агент
+7 (989) 048-35-61
Начать чат с агентом

Офис в Москва Русаковская ул., 13 (338 м)

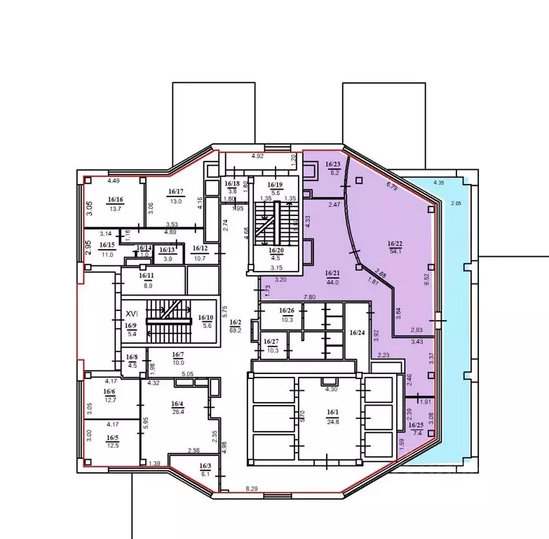
Сдается в аренду офисное помещение на 16 этаже, в БЦ На Русаковской, В класса, который находится по адресу: ул. Русаковская, д. 13.Пешая доступность от станций метро Красносельская, Сокольники, Комсомольская. Удобный выезд на улицы Русаковская, Краснопрудная, ТТК.В помещении выполнена офисная отделка, смешанная планировка, собственная терраса. Приточно-вытяжная система вентиляции, центральная система кондиционирования. В наличии наземная и подземная парковки (12300 и в месяц за м/место соответственно).Арендные каникулы и ставка подлежат обсуждению.Звоните прямо сейчас и мы согласуем точное время показа в удобное для Вас время, отправим план помещения и ответим на все ключевые вопросы

Читать полностью
    Позвонить Написать
    676 000 Р8 330 $ или 7 110
    Агент
    +7 (989) 048-35-61
    Начать чат с агентом
    Похожие предложения
    Офис в Москва Русаковская ул., 13 (338 м) - Фото 1
    Офис в Москва Русаковская ул., 13 (338 м) - Фото 2
    16-й этаж, всего 17 этажей

    ВАЖНО: БЕЗ КОММИССИ ДЛЯ АРЕНДАТОРОВ, ПРЯМАЯ АРЕНДА ОТ СОБСТВЕННИКАБизнес-центр B+ класса БК на Русаковской расположен по адресу Москва, ЦАО, район Красносельский, Русаковская ул., дом 13, в пешей доступности от метро Сокольники (8 мин), метро Красносельская...
    • 16/17 эт.
    682 760 Р
    Агент
    +7 (910) Показать номер
    Посмотреть контакты
    Офис в Москва № 32 кв-л, вл16с1 (175 м) - Фото 1
    Офис в Москва № 32 кв-л, вл16с1 (175 м) - Фото 2
    9-й этаж, всего 9 этажей

    Деловой квартал Neopolis представляет собой четыре офисных девятиэтажных корпуса строгой архитектуры. Фасады здания отделаны навесными вентилируемыми плитами из керамогранита и имеют сложное панорамное остекление. Расстояние до МКАД - 3 км по Киевскому...
    • 9/9 эт.
    677 270 Р
    Агент
    +7 (915) Показать номер
    Посмотреть контакты
    Офис в Москва Верейская ул., 29С134 (282 м) - Фото 1
    Офис в Москва Верейская ул., 29С134 (282 м) - Фото 2
    3-й этаж, всего 7 этажей

    Предлагается в аренду офис 282 кв.м. Состояние отделки — готово к въезду.Подписание договора аренды напрямую с владельцем помещения. Работаем без комиссии, процентов и надбавок.В арендную ставку не входит: коммунальные услуги, электроэнергия, эксплуат.расходы,...
    • 3/7 эт.
    689 733 Р
    Агент
    +7 (916) Показать номер
    Посмотреть контакты
    Офис в Москва Русаковская ул., 13С5 (338 м) - Фото 1
    Офис в Москва Русаковская ул., 13С5 (338 м) - Фото 2
    16-й этаж, всего 16 этажей

    Лот 903178 Предложение от Собственника Уважаемые предприниматели и брокеры, предлагаю арендовать просторный офис общей площадью 338 м, расположенный на 16 этаже бизнес-центра. Помещение отличается дизайнерским евроремонтом и эксклюзивной отделкой. Ключевой...
    • 16/16 эт.
    683 042 Р
    Агент
    +7 (986) Показать номер
    Посмотреть контакты
    Офис в Москва наб. Пресненская, 6с2 (95 м) - Фото 1
    Офис в Москва наб. Пресненская, 6с2 (95 м) - Фото 2
    38-й этаж, всего 60 этажей

    Офисное помещение 94,7 кв. м в бизнес-центре Башня Империя от собственника.Округ: Центральный (ЦАО). Район: Пресненский. Ближайшие станции метро: Москва-Сити, Деловой центр.
    • 38/60 эт.
    690 000 Р
    Агент
    +7 (916) Показать номер
    Посмотреть контакты

    Не нашли подходящего объявления?

    Оставьте заявку, и наши риэлторы подберут офис в районе Москвы

    (0)