400 000 Р 4 900 $ или 4 220

Информация о помещении и здании

3
Этаж
3
Этажность
Развернуть
Агент
+7 (933) 786-95-88
Начать чат с агентом

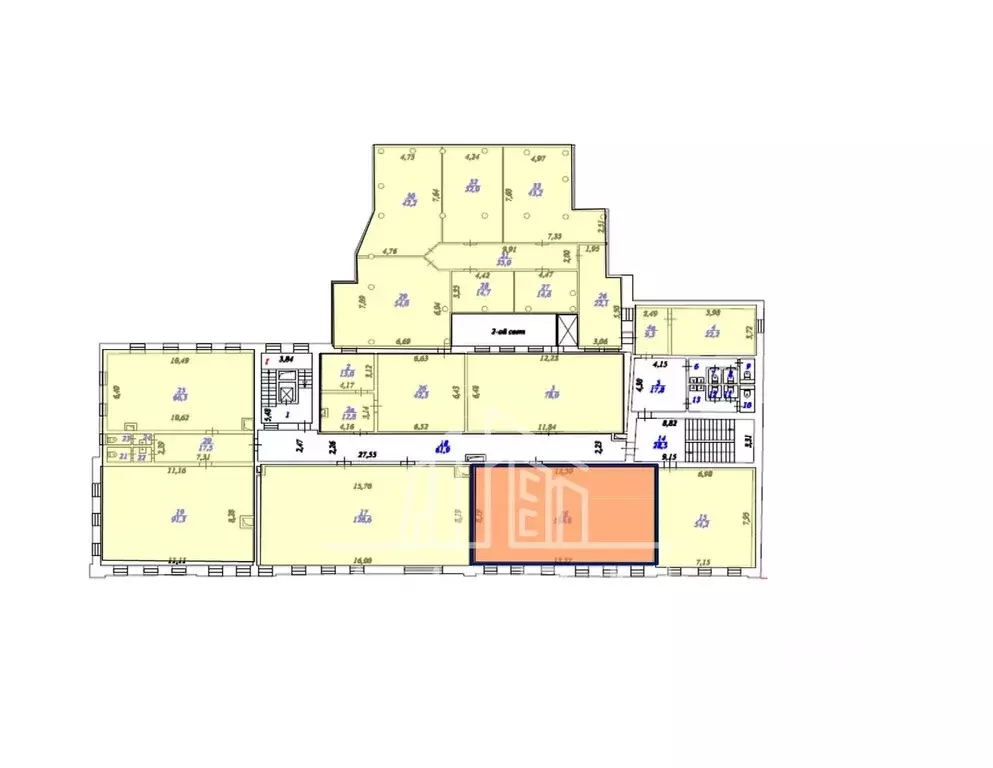
Офис в Москва ул. Остоженка, 8 (126 м)

IDОфисный центр расположен на первой линии Остоженки — одной из старейших и самых престижных улиц Москвы. В трех минутах ходьбы — станция метро Кропоткинская , в десяти — Парк Культуры , а до Кремля можно дойти пешком за 20 минут. Удобный выезд на Бульварное и Садовое кольцо, набережную Москвы-реки, Комсомольский проспект, а также улицы Арбат и Волхонка обеспечивает отличную транспортную доступность и высокую привлекательность локации для арендаторов.Здание центра — бывший жилой кирпичный дом XIX века. Трехэтажное здание с мансардой было полностью реконструировано в 2003 году: оно оснащено современными инженерными системами, изысканно оформленными холлами и вестибюлями, а также надежными системами охраны и пожарной безопасности. В здании есть лифт и стихийная наземная парковка.Планировка этажей — смешанная. Пространства бывших квартир перепланированы в функциональные офисные блоки с кабинетами, зонами общего пользования, мини-кухнями и санузлами. Рабочие зоны отделены легкими перегородками. Высокие потолки (более 3 метров), массивные внешние кирпичные стены и хорошее естественное освещение создают комфортную рабочую атмосферу.Инфраструктура здания включает: кафе, отделение банка, супермаркет Азбука вкуса , SPA-салон и языковые курсы. В соседних зданиях расположены кафе, кофейни, медицинские клиники и дополнительные банковские отделения.Арендная ставка фиксирована и включает коммуникационные услуги и уборку офиса.Для получения дополнительной информации и организации времени просмотра, пожалуйста звоните по указанному контакту в объявлении Запросы Офисы: аренда офиса, снять помещение под офис, офис в Москве, снять офис в Москве, офисное помещение, помещение свободного назначения, аренда помещений для офиса, аренда помещений на длительный срок, аренда помещений с парковкой, офис, офис в центре Москвы, офис в пределах мкад, коммерческая недвижимость, коммерческие здания, здание под офис.

Читать полностью
    Позвонить Написать
    400 000 Р4 900 $ или 4 220
    Агент
    +7 (933) 786-95-88
    Начать чат с агентом
    Похожие предложения
    Офис в Москва ул. Остоженка, 10 (126 м) - Фото 1
    Офис в Москва ул. Остоженка, 10 (126 м) - Фото 2
    3-й этаж, всего 3 этажа

    ВАЖНО: БЕЗ КОММИССИ ДЛЯ АРЕНДАТОРОВ, ПРЯМАЯ АРЕНДА ОТ СОБСТВЕННИКАБизнес-центр B класса Остоженка расположен по адресу Москва, ЦАО, район Хамовники, ул. Остоженка, дом 10, в пешей доступности от метро Кропоткинская (4 мин).Характеристики здания: 3 этажа,...
    • 3/3 эт.
    399 872 Р
    Агент
    +7 (985) Показать номер
    Посмотреть контакты
    Офис (110 м) - Фото 1
    Офис (110 м) - Фото 2
    3-й этаж, всего 4 этажа

    Сдается в прямую аренду офисное помещение общей площадью 110 кв.м. на 3 этаже в бизнес-центре Остоженка , расположенном по адресу Москва, улица Остоженка, 10, в 3 минутах пешком от метро Кропоткинская. Арендная ставка составляет за кв.м./год, УСН. Эксплуатационные...
    • 3/4 эт.
    399 960 Р
    Агент
    +7 (966) Показать номер
    Посмотреть контакты
    Офис в Москва Дербеневская ул., 20 (200 м) - Фото 1
    Офис в Москва Дербеневская ул., 20 (200 м) - Фото 2
    2-й этаж, всего 5 этажей

    АРЕНДА ОТ СОБСТВЕННИКАЗвоните и пишите прямо сейчас — не упустите возможность арендовать идеальный офис для Вашего бизнеса в отличном месте Рассмотрим любых арендаторов - Удобная транспортная доступность — всего несколько минут от метро.- Современный...
    • 2/5 эт.
    400 000 Р
    Агент
    +7 (985) Показать номер
    Посмотреть контакты
    Офис в Москва ул. Академика Челомея, 3к2 (340 м) - Фото 1
    Офис в Москва ул. Академика Челомея, 3к2 (340 м) - Фото 2
    4-й этаж, всего 7 этажей

    АРЕНДА ОТ СОБСТВЕННИКАЗвоните и пишите прямо сейчас — не упустите возможность арендовать идеальный офис для Вашего бизнеса в отличном месте Рассмотрим любых арендаторов - Удобная транспортная доступность — всего несколько минут от метро.- Современный...
    • 4/7 эт.
    400 010 Р
    Агент
    +7 (985) Показать номер
    Посмотреть контакты
    Офис в Москва Алтуфьевское ш., 27 (204 м) - Фото 1
    Офис в Москва Алтуфьевское ш., 27 (204 м) - Фото 2
    4-й этаж, всего 4 этажа

    Аренда офиса 203.5 кв.м. Состояние отделки — готово к въезду.Подписание договора аренды напрямую с владельцем помещения. Работаем без комиссии, процентов и надбавок.В арендную ставку включено: - коммунальные услуги, включая электроэнергию,- эксплуат.расходы.В...
    • 4/4 эт.
    407 000 Р
    Агент
    +7 (923) Показать номер
    Посмотреть контакты

    Не нашли подходящего объявления?

    Оставьте заявку, и наши риэлторы подберут офис в районе Москвы

    (0)