Россия, Москва, Средний Тишинский пер., 8

Реализация объекта недвижимости приостановлена

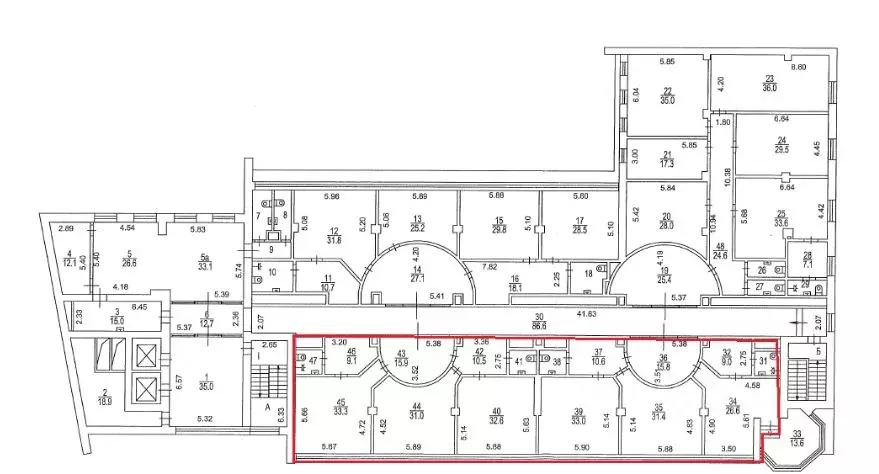
Информация о помещении и здании

7
Этаж
8
Этажность
Развернуть

Офис в Москва Средний Тишинский пер., 8 (329 м)

ВАЖНО: БЕЗ КОММИССИ ДЛЯ АРЕНДАТОРОВ, ПРЯМАЯ АРЕНДА ОТ СОБСТВЕННИКАБизнес-центр B+ класса Чайкаасположен по адресу Москва, ЦАО, район Пресненский, Ср. Тишинский пер., дом 28, в пешей доступности от метро Белорусская (11 мин), метро Краснопресненская (14 мин), метро Баррикадная (13 мин).Характеристики здания: 8 этажей, бизнес-центр расположен на первой линии, техническое оснащение и управление климатом по требованиям B+ класса, 03 налоговая.Бизнес-центр оснащен пассажирским, грузовым лифтами. Есть круглосуточная возможность работы, ресепшен, контроль доступа в здание, круглосуточная охрана, видеонаблюдение, наземный паркинг, подземный паркинг.Предлагаем к аренде офис 329 м на 7 этаже. Ваш офис в БЦ Чайка 2 может работать круглосуточно.Обратитесь за спецусловиями на аренду

Читать полностью

    Реализация объекта недвижимости приостановлена

    Не нашли подходящего объявления?

    Оставьте заявку, и наши риэлторы подберут офис в районе Москвы

    (0)