Реализация объекта недвижимости приостановлена

Информация о помещении и здании

4
Этаж
10
Этажность
Развернуть

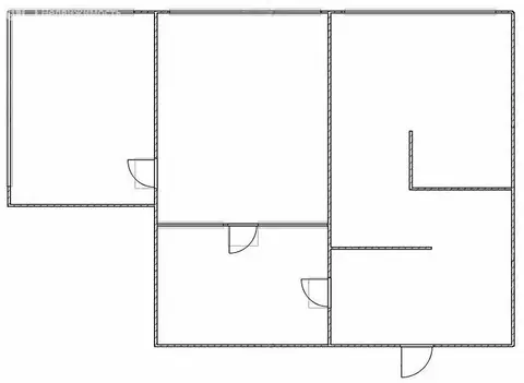
Офис в Москва ул. Горбунова, 2С3 (182 м)

ID: o68229Уважаемый Арендатор, предлагаем Вам арендовать офис 182.3 м на 4 этаже на выгодных условиях.Приточно-вытяжная вентиляция. Центральное кондиционирование. Электрическая мощность: 75Вт/м. Интернет, телефония. Охрана. Видеонаблюдение. Система контроля доступа. Лифты: 8. Наземная парковка. ЗАО Москвы. В 3 минутах от м. Сетунь (МЦД-1), МолодежнаяБыстро реагируем на обращения, организуем встречу на объекте в удобное для Вас время, направим план помещения и ответим на все возникшие вопросы Звоните сейчас и получите лучшие условия на рынке

Читать полностью

    Реализация объекта недвижимости приостановлена

    Не нашли подходящего объявления?

    Оставьте заявку, и наши риэлторы подберут офис в районе Москвы

    (0)