Реализация объекта недвижимости приостановлена

Информация о помещении и здании

2
Этаж
4
Этажность
Развернуть

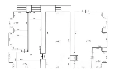
Офис (262 м)

ПЛАТИМ КОМИССИЮ 1) Напишите нам или позвоните. 2) Направим презентацию в Whatsapp. 3) Показ в удобное время. 4) Согласуем условия и договор. Административное здание в шаговой доступности от метро. Капитальный ремонт был произведен в 2012 году. Описание помещения: Блок 5. Отдельный вход. Этаж: 2. Планировка: смешанная. Офисная отделка. Высокие потолки. Тип налогообложения: С НДС. Уборка, эксплуатация, коммунальные платежи оплачиваются по счетчикам . Налоговая: 05. Лифты: Нет. Вентиляция: Приточно-вытяжная. Кондиционирование: Сплит-системы. Безопасность: Круглосуточный доступ, Круглосуточная охрана, Система пожаротушений. Провайдеры: . Парковка: Наземная. Лот

Читать полностью

    Реализация объекта недвижимости приостановлена

    Не нашли подходящего объявления?

    Оставьте заявку, и наши риэлторы подберут офис в районе Москвы

    (0)