Реализация объекта недвижимости приостановлена

Информация о помещении и здании

2
Этаж
22
Этажность
Развернуть

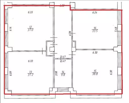
Офис в Москва ул. Мастеркова, 4 (170 м)

БЕЗ КОМИССИИ БЦ класса B Панорама , рядом с метро. Сдаётся под офис блок на 2-м этаже площадью 170 кв.м. Стандартная офисная отделка. Вентиляция. Есть охрана.НДС и эксплуатационные расходы включены. Улица Мастеркова, 4, 1 минута пешком от метро Автозаводская. ЛОТ 235699

Читать полностью

    Реализация объекта недвижимости приостановлена

    Не нашли подходящего объявления?

    Оставьте заявку, и наши риэлторы подберут офис в районе Москвы

    (0)