Россия, Москва, Малая Бронная ул., 2С1

Реализация объекта недвижимости приостановлена

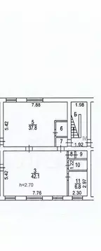
Информация о помещении и здании

2
Этаж
4
Этажность
Развернуть

Офис в Москва Малая Бронная ул., 2С1 (67 м)

Объект 8236В аренду от собственника предлагается офисное помещение площадью 67,2м по адресу: Москва, Малая Бронная улица, 2с1. Без комиссии Ключевые преимущества:предоставляются арендные каникулыкруглосуточная охрана и пропускная система самый оживленный и модный Пресненский район Москвы ЦАОбизнес-центр расположен на первой линии Малой Бронной улицы и Тверского бульвараудобная транспортная доступность: в пешей доступности остановка общественного транспорта развитая инфраструктура: рестораны, кофейни, кондитерская, музеи, театр, аптека, студии красоты, гостиницыв 10 мин пешком станции метро Арбатская и Пушкинская, в 15 мин пешком станции метро Библиотека имени Ленина, Александровский сад, Тверская и ЧеховскаяОсновные характеристики:площадь: 67,2мвысота потолков: 3,3мэтаж/этажность: 2/4отделка: офиснаяоткрытая планировкаплатная городская парковка на улице имеются все коммуникации: водоснабжение холодное и горячее, канализация, отоплениеУспейте арендовать по выгодной цене офисное помещение под ваш бизнес

Читать полностью

    Реализация объекта недвижимости приостановлена

    Не нашли подходящего объявления?

    Оставьте заявку, и наши риэлторы подберут офис в районе Москвы

    (0)