Реализация объекта недвижимости приостановлена

Информация о помещении и здании

8
Этаж
8
Этажность
Развернуть

Офис в Московская область, Одинцовский городской округ, Новоивановское ...

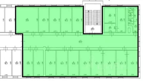
Сдается офисный блок на 8 этаже в БЦ Premium:West , А класса, расположенном по адресу: Можайское шоссе, вл. 165.До ближайшей станции Молодежная доехать до метро можно с помощью бесплатного корпоративного транспорта, который регулярно отправляется от территории БЦ. Рядом проходят: Минское, Рублевское, Сколковское шоссе и М-1.Планировка смешанная. В офисе выполнен качественный ремонт. Приточно-вытяжная вентиляция, кондиционирование с системой климат контроля. Арендная ставка и арендные каникулы подлежат обсуждению.

Читать полностью

    Реализация объекта недвижимости приостановлена

    Не нашли подходящего объявления?

    Оставьте заявку, и наши риэлторы подберут офис в районе Москвы

    (0)