Реализация объекта недвижимости приостановлена

Информация о помещении и здании

4
Этаж
4
Этажность
Развернуть

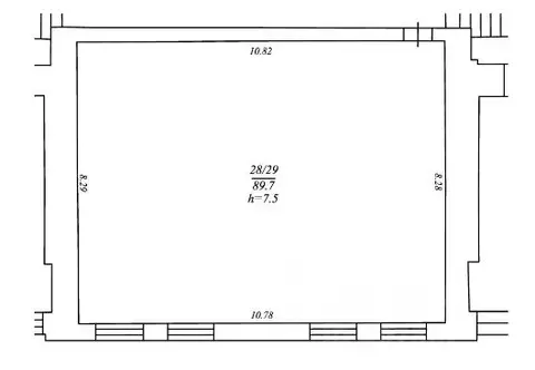
Офис в Москва Дербеневская ул., 20 (135 м)

Лот: 412178, бизнес-центр Кожевники. БЕЗ КОМИССИИ Сдается в аренду офис площадью 135 м2 на 4 этаже в бизнес-центре класса B Кожевники, расположенном в 13 минутах пешком от метро Павелецкая. Планировка: кабинетная. Состояние помещения: с ремонтом. Провайдеры: ОАО МТС , ООО Атлант-Телеком , ГК ВымпелКом ( Билайн ), ОАО Ростелеком . Техническое оснащение: современные системы энергоснабжения, вентиляции и кондиционирования, пожаротушения. Безопасность: круглосуточная охрана, видеонаблюдение, контроль доступа.

Читать полностью

    Реализация объекта недвижимости приостановлена

    Не нашли подходящего объявления?

    Оставьте заявку, и наши риэлторы подберут офис в районе Москвы

    (0)