Будьте осторожны при перечислении предоплаты!
Для вашей безопасности предварительно рекомендуем запрашивать документы на объект недвижимости и подтверждение заключения сделки.

85 000 Р

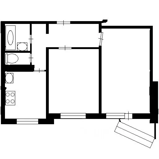
Информация о квартире

36 м2
Площадь
17 м2
Жилая
8 м2
Кухня
1
Комната
16
Этаж
21
Этажность

Дополнительная информация

Тип дома
панельный
Развернуть
Агент
+7 (985) 393-39-21
Начать чат с агентом

1-к кв. Москва ул. Дмитрия Ульянова, 27 (36.0 м)

Сдаётся уютная однокомнатная квартира в Москве, на улице Дмитрия Ульянова, 27. Квартира расположена на 16 этаже 21-этажного панельного дома, построенного в 2018 году. Общая площадь жилья составляет 36 квадратных метров, из которых 17 квадратных метров занимает жилая комната и 8.2 квадратных метров — кухня. Высота потолков — 2.78 метра.Квартира с евроремонтом, полностью готова к комфортному проживанию. В комнате и на кухне есть вся необходимая мебель. Кухня оснащена современным холодильником. В ванной комнате установлена ванна, санузел совмещённый. Также в квартире есть балкон, где можно организовать уютное место для отдыха.Приглашаем одного человека или семейную пару.Дом в отличном состоянии, оборудован двумя пассажирскими и одним грузовым лифтами, что очень удобно для переезда и повседневной жизни. В шаговой доступности находятся школы, детские сады, клиники и магазины, что делает местоположение идеальным для семей с детьми и тех, кто ценит удобство городской жизни.До метро Академическая всего 6 минут пешком, что позволяет быстро добраться до любой точки города. Транспортная доступность и развитая инфраструктура района обеспечивают высокий уровень комфорта и удобства.Не упустите шанс арендовать эту замечательную квартиру Записывайтесь на просмотр прямо сейчас, чтобы оценить все преимущества этого предложения.

Читать полностью

    Для того, чтобы снять однокомнатную квартиру по адресу: м. Академическая, ул. Дмитрия Ульянова, 27, позвоните по телефону +7 (985) 393-39-21. Торопитесь! Объявление №30094218924 об аренде однокомнатной квартиры опубликовано Сегодня.

    Позвонить Написать
    85 000 Р
    Агент
    +7 (985) 393-39-21
    Начать чат с агентом
    Похожие предложения
    1-к кв. Москва ул. Губкина, 4 (39.0 м) - Фото 1
    1-к кв. Москва ул. Губкина, 4 (39.0 м) - Фото 2
    1-комнатная квартира, общая площадь 39м², жилая 20м², кухня 9м²

    Сдаем уютную однокомнатную квартиру в шаговой доступности от метро. Вся мебель и техника для комфортного проживания есть. Приглашаем адекватных платежеспособных нанимателей. Строго без детей и животных.
    • 39 м²
    • 1-ком
    • 4/8 эт.
    • 100%
    85 000 Р
    Агент
    +7 (986) Показать номер
    Посмотреть контакты
    1-к кв. Москва ул. Олеко Дундича, 31к1 (43.4 м) - Фото 1
    1-комнатная квартира, общая площадь 43м², жилая 25м², кухня 9м²

    Сдается на длительный срок квартира в новом монолитном доме в 5 минутах пешком от метро Филевский парк. Просторная и светлая квартира: большая комната, 25 кв.м., квадратной формы, окна на юг и на запад, во двор, с выходом на остекленный балкон. Потолки...
    • 43 м²
    • 1-ком
    • 7/14 эт.
    • 50%
    85 000 Р
    Агент
    +7 (916) Показать номер
    Посмотреть контакты
    2-к кв. Москва Луговой проезд, 12К1 (58.0 м) - Фото 1
    2-к кв. Москва Луговой проезд, 12К1 (58.0 м) - Фото 2
    2-комнатная квартира, общая площадь 58м², жилая 33м², кухня 12м²

    аванс до 14.03Сдается впервые на длительный срок просторная двухкомнатная квартира.В квартире качественный ремонт. Есть вся необходимая мебель и техника для комфортного проживания: стильный удобный кухонный гарнитур, индукционная варочная панель, духовой...
    • 58 м²
    • 2-ком
    • 8/17 эт.
    • 25%
    85 000 Р
    Агент
    +7 (915) Показать номер
    Посмотреть контакты
    2-к кв. Москва ул. Полины Осипенко, 18К2 (56.0 м) - Фото 1
    2-к кв. Москва ул. Полины Осипенко, 18К2 (56.0 м) - Фото 2
    2-комнатная квартира, общая площадь 56м², жилая 35м², кухня 10м²

    Сдаётся в аренду на длительный срок прекрасная, двухкомнатная квартира в хорошем состоянии. Квартира полностью меблирована и оборудована бытовой техникой в полном объёме ; чистый подъезд, хорошая входная группа; видеонаблюдение в подъезде и по периметру...
    • 56 м²
    • 2-ком
    • 11/17 эт.
    • 50%
    85 000 Р
    Агент
    +7 (915) Показать номер
    Посмотреть контакты
    1-к кв. Москва ул. Руставели, 16к1 (32.0 м) - Фото 1
    1-к кв. Москва ул. Руставели, 16к1 (32.0 м) - Фото 2
    1-комнатная квартира, общая площадь 32м², жилая 15м², кухня 10м²

    Квартира - 32 кв.м. на 8 этаже с видом во двор Полностью укомплектована Вся необходимая техника: Варочная панель, холодильник, стиральная машина, большой телевизор.Интернет.Места для хранения.Панорамные окна и французский балкон.Идеально для проживания...
    • 32 м²
    • 1-ком
    • 8/33 эт.
    85 000 Р
    Агент
    +7 (985) Показать номер
    Посмотреть контакты

    Не нашли подходящего объявления?

    Оставьте заявку, и наши риэлторы подберут квартиру в районе Москвы

    (0)