Будьте осторожны при перечислении предоплаты!
Для вашей безопасности предварительно рекомендуем запрашивать документы на объект недвижимости и подтверждение заключения сделки.

Россия, Москва, просп. Генерала Дорохова, 39к2Л
140 000 Р

Информация о квартире

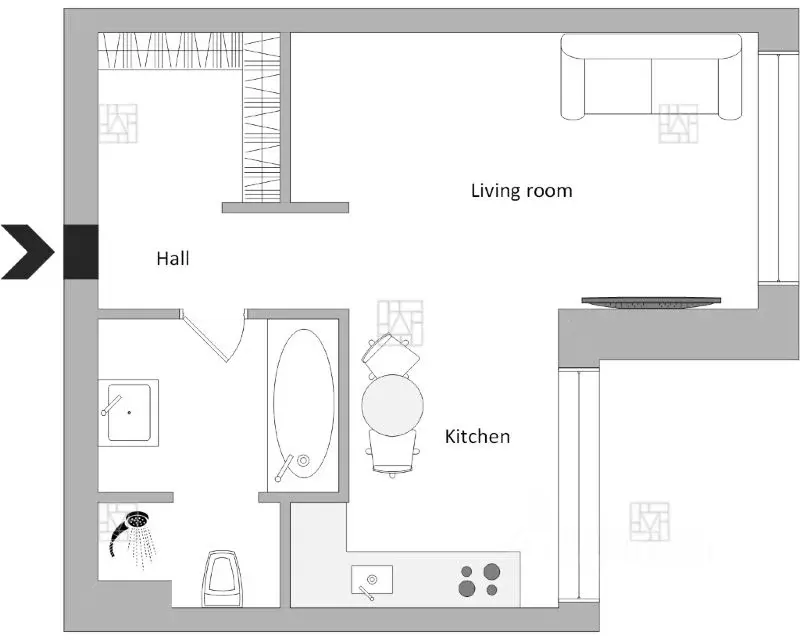
44 м2
Площадь
15 м2
Жилая
21 м2
Кухня
1
Комната
3
Этаж
14
Этажность

Дополнительная информация

Тип дома
монолит
Развернуть
Агент
+7 (916) 863-15-18
Начать чат с агентом

1-к кв. Москва просп. Генерала Дорохова, 39к2Л (44.0 м)

Id 59864. Вашему вниманию предлагается квартира формата евро-2 в престижном жилом комплексе бизнес-класса West Garden . В квартире сделан качественный ремонт в приятных светлых тонах, в зоне прихожей и санузла - полы с подогревом, имеется вся необходимая мебель и бытовая техника для комфортного проживания: кондиционер, стиральная машина с сушкой, плита, духовой шкаф с режимом СВЧ, посудомоечная машина, холодильник, телевизор, подключён интернет. Дополнительное оснащение: гладильная доска, стремянка, уборочный инвентарь. Окна панорамные, что обеспечивает хорошее естественное освещение.ЖК West Garden - собрание клубных домов на берегу реки Раменки, расположен на территории Западного округа, в окружении зеленого лесного массива. Собственный выход к благоустроенной набережной реки Раменки и большой парк. Огороженная охраняемая территория, консьерж-сервис, спортивные и детские площадки, кафе.Двор в ЖК закрытый, охраняемый. Есть бесплатная наземная гостевая парковка, также за дополнительную плату можно арендовать подземный паркинг.В пешей доступности метро Минская. Возможность за 15 минут добраться до самого центра города на автомобиле. Оперативный показ и заселение, звоните и пишите в любое время

Читать полностью

    Для того, чтобы снять однокомнатную квартиру по адресу: м. Минская, просп. Генерала Дорохова, 39к2Л, позвоните по телефону +7 (916) 863-15-18. Торопитесь! Объявление №30093010140 об аренде однокомнатной квартиры опубликовано 23 января 2026.

    Позвонить Написать
    140 000 Р
    Агент
    +7 (916) 863-15-18
    Начать чат с агентом
    Похожие предложения
    2-к кв. Москва просп. Генерала Дорохова, 39к2Л (44.0 м) - Фото 1
    2-к кв. Москва просп. Генерала Дорохова, 39к2Л (44.0 м) - Фото 2
    2-комнатная квартира, общая площадь 44м², жилая 28м², кухня 8м²

    Арт.Жилой комплекс West Garden . Евродвушка. Выполнен качественный ремонт. Укомплектована современной мебелью. Вся бытовая техника, включая посудомоечную машину. Кухонный гарнитур. Санузел совмещенный. Кондиционер. Металлическая дверь. Презентабельный...
    • 44 м²
    • 2-ком
    • 3/14 эт.
    • 50%
    140 000 Р
    Агент
    +7 (915) Показать номер
    Посмотреть контакты
    2-к кв. Москва просп. Генерала Дорохова, 39к1 (56.0 м) - Фото 1
    2-к кв. Москва просп. Генерала Дорохова, 39к1 (56.0 м) - Фото 2
    2-комнатная квартира, общая площадь 56м², кухня 19м²

    Буду рад показать квартиру в жизни, оперативный показ и выход на сделку В аренду предлагается шикарная квартира в зеленой локации с парками и зеленью. Удобная просторная планировка, подойдет как семейным парам, так одиночным составам. Обращайтесь, задавайте...
    • 56 м²
    • 2-ком
    • 12/14 эт.
    150 000 Р
    Агент
    +7 (916) Показать номер
    Посмотреть контакты
    2-к кв. Москва 1-й Сетуньский проезд, 8 (47.0 м) - Фото 1
    2-к кв. Москва 1-й Сетуньский проезд, 8 (47.0 м) - Фото 2
    2-комнатная квартира, общая площадь 47м², жилая 20м², кухня 15м²

    КВАРТИРА: Идеальная стильная видовая, на высоком этаже с панорамным остеклением, наполненная светом и с потрясающими видами. Качественный ремонт выполнен с использованием премиальных материалов. Кухня, плавно переходящая в уютную гостиную.Спальня с панорамным...
    • 47 м²
    • 2-ком
    • 36/41 эт.
    • 50%
    150 000 Р
    Агент
    +7 (916) Показать номер
    Посмотреть контакты
    1-к кв. Москва Ленинградский просп., 37/4 (40.0 м) - Фото 1
    1-к кв. Москва Ленинградский просп., 37/4 (40.0 м) - Фото 2
    1-комнатная квартира, общая площадь 40м², кухня 7м²

    Лот: 42485. СДАЕТСЯ ВПЕРВЫЕ Без комиссии для Арендатора ОПЕРАТИВНЫЙ ПОКАЗ. Бонус коллегам Вашему вниманию предлагается шикарная студия в ЖК Прайм Парк Уникальный комплекс с собственным частным парком, подземной парковкой , консьерж-службой и развитой...
    • 40 м²
    • 1-ком
    • 8/40 эт.
    • монолит
    140 000 Р
    Агент
    +7 (985) Показать номер
    Посмотреть контакты
    2-к кв. Москва ул. Вильгельма Пика, 1к1 (42.0 м) - Фото 1
    2-к кв. Москва ул. Вильгельма Пика, 1к1 (42.0 м) - Фото 2
    2-комнатная квартира, общая площадь 42м², жилая 32м², кухня 1м²

    Погрузитесь в атмосферу уюта и комфорта, выбрав эту замечательную квартиру для нового этапа своей жизни Здесь вас ждет пространство, наполненное светом и позитивом, готовое стать вашим личным оазисом. Идеальное место для тех, кто ценит гармонию и хочет...
    • 42 м²
    • 2-ком
    • 7/48 эт.
    130 000 Р
    Агент
    +7 (986) Показать номер
    Посмотреть контакты

    Не нашли подходящего объявления?

    Оставьте заявку, и наши риэлторы подберут квартиру в районе Москвы

    (0)