Будьте осторожны при перечислении предоплаты!
Для вашей безопасности предварительно рекомендуем запрашивать документы на объект недвижимости и подтверждение заключения сделки.

85 000 Р

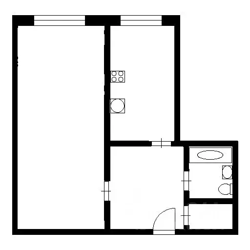
Информация о квартире

54 м2
Площадь
30 м2
Жилая
9 м2
Кухня
2
Комнаты
12
Этаж
37
Этажность
Развернуть
Агент
+7 (989) 408-27-86
Начать чат с агентом

2-к кв. Москва Хорошевское ш., 12к1 (54.0 м)

Сдается двухкомнатная квартира . Комнаты смежные. Одна из комнат совмещена с кухней. Санузел совмещенный. Большая лоджия. Примечание: у собственника могут быть дополнительные пожелания к жильцам - обсудите их по телефону.

Читать полностью

    Для того, чтобы снять двухкомнатную квартиру по адресу: м. Беговая, Хорошевское ш., 12к1, позвоните по телефону +7 (989) 408-27-86. Торопитесь! Объявление №30092687566 об аренде двухкомнатной квартиры опубликовано 27 декабря 2025.

    Позвонить Написать
    85 000 Р
    Агент
    +7 (989) 408-27-86
    Начать чат с агентом
    Похожие предложения
    1-к кв. Москва Хорошевское ш., 12к1 (55.0 м) - Фото 1
    1-к кв. Москва Хорошевское ш., 12к1 (55.0 м) - Фото 2
    1-комнатная квартира, общая площадь 55м², жилая 35м², кухня 9м²

    ВАШEМУ BHИMAНИЮ Сдается просторная и уютная 1-комнатная квартира площадью 55 м в современной новостройке ЖК Дом на Беговой в пешей доступности от метро Беговая.Квартира находится на 33 этаже из 37, с отличными видами из окон и уникальным ощущением простора....
    • 55 м²
    • 1-ком
    • 33/37 эт.
    • 50%
    85 000 Р
    Агент
    +7 (916) Показать номер
    Посмотреть контакты
    2-к кв. Москва Автозаводская ул., 23С928 (60.0 м) - Фото 1
    2-к кв. Москва Автозаводская ул., 23С928 (60.0 м) - Фото 2
    2-комнатная квартира, общая площадь 60м², жилая 50м², кухня 10м²

    Двухуровневые апартаменты на ЗИЛЕ. БЕЗ КОМИССИИ. прямая аренда от собственника.Окна смотрят на улицу. 1 этаж - кухня совмещенная с гостиной. большой санузел с душевой кабиной. 2 этаж - спальня. высота потолков на 2 этаже (2,7м)Закрытая территория, есть...
    • 60 м²
    • 2-ком
    • 1/4 эт.
    85 000 Р
    Агент
    +7 (915) Показать номер
    Посмотреть контакты
    1-к кв. Москва Волгоградский просп., 32/3к1 (37.2 м) - Фото 1
    1-к кв. Москва Волгоградский просп., 32/3к1 (37.2 м) - Фото 2
    1-комнатная квартира, общая площадь 37м², жилая 14м², кухня 11м²

    Id 59585. ПОНИЖЕННЫЙ СТРАХОВОЙ ДЕПОЗИТ Сдается в долгосрочную аренду 1 комнатная квартира в жилом комплексе бизнес класса Метрополия . О квартире:- В квартире выполнен качественный дизайнерский ремонт- выполнена полная шумоизоляция от всех соседей- полностью...
    • 37 м²
    • 1-ком
    • 27/30 эт.
    • 50%
    85 000 Р
    Агент
    +7 (916) Показать номер
    Посмотреть контакты
    3-к кв. Москва ул. Василисы Кожиной, 8К2 (61.0 м) - Фото 1
    3-к кв. Москва ул. Василисы Кожиной, 8К2 (61.0 м) - Фото 2
    3-комнатная квартира, общая площадь 61м², жилая 45м², кухня 6м²

    Отличная светлая квартира в идеальном состоянии, к заселению готова.Окна на две стороны.Комнаты изолированы.Квартира полностью меблирована и оснащена всей техникой, включая кондиционеры, духовой шкаф и посудомоечную машину.Продуманная система хранения.3...
    • 61 м²
    • 3-ком
    • 5/9 эт.
    • 70%
    85 000 Р
    Агент
    +7 (985) Показать номер
    Посмотреть контакты
    3-к кв. Москва Херсонская ул., 18 (64.6 м) - Фото 1
    3-к кв. Москва Херсонская ул., 18 (64.6 м) - Фото 2
    3-комнатная квартира, общая площадь 64м², жилая 44м², кухня 11м²

    Сдается трехкомнатная квартира в 5 минутах от метро Зюзино. В квартире свежий косметический ремонт и есть все необходимое для комфортной жизни - мебель в комнатах, техника. Рядом с домом вся инфрастуктура - дошкольные, школьные и спортивные учреждения,...
    • 64 м²
    • 3-ком
    • 14/14 эт.
    • блочный
    85 000 Р
    Агент
    +7 (916) Показать номер
    Посмотреть контакты

    Не нашли подходящего объявления?

    Оставьте заявку, и наши риэлторы подберут квартиру в районе Москвы

    (0)