Будьте осторожны при перечислении предоплаты!
Для вашей безопасности предварительно рекомендуем запрашивать документы на объект недвижимости и подтверждение заключения сделки.

260 000 Р

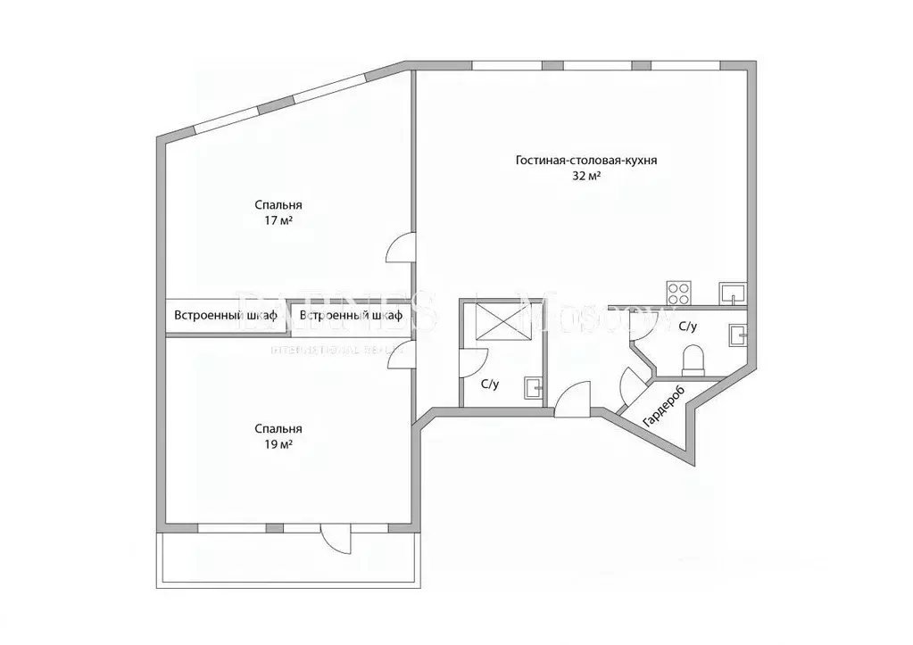
Информация о квартире

80 м2
Площадь
12 м2
Кухня
3
Комнаты
3
Этаж
4
Этажность

Дополнительная информация

Тип дома
кирпичный
Развернуть
Агент
+7 (923) 070-41-28
Начать чат с агентом

3-к кв. Москва Неглинная ул., 18С1 (80.0 м)

ID: 586748Просторная 3-комнатная квартира в историческом центре на Неглинной улице.В квартире выполнена качественная отделка. Функциональное планировочное решение: гостиная с зоной кухни-столовой, 2 спальни, 2 санузла, гардеробная, уютный балкон.Кухня оборудована всей необходимой бытовой техникой. В квартире установлены системы кондиционирования и подогрева полов.По запросу можно вывезти мебель из детской.Счетчики входят в стоимость.Дом расположен внутри Бульварного кольца, в 5 минутах пешком от станции метро Трубная.Участник ассоциации AREA.Номер объекта: 1/586748/14501

Читать полностью

    Для того, чтобы снять трехкомнатную квартиру по адресу: м. Кузнецкий мост, ул. Неглинная, 18С1, позвоните по телефону +7 (923) 070-41-28. Торопитесь! Объявление №30092525717 об аренде трехкомнатной квартиры опубликовано 28 декабря 2025.

    Позвонить Написать
    260 000 Р
    Агент
    +7 (923) 070-41-28
    Начать чат с агентом
    Похожие предложения
    4-к кв. Москва Шелепихинская наб., 34к5 (82.0 м) - Фото 1
    4-к кв. Москва Шелепихинская наб., 34к5 (82.0 м) - Фото 2
    4-комнатная квартира, общая площадь 82м²

    Шикарный вариант для большой семьи сдается евро 4-комнатная квартира на длительный срок после ремонта, вся техника (Hayer и Hisense) и мебель новая три полноценные спальни, кухня-гостинная с диваном-кроватью, два санузла (ванная и два душа) много мест...
    • 82 м²
    • 4-ком
    • 5/41 эт.
    260 000 Р
    Агент
    +7 (985) Показать номер
    Посмотреть контакты
    3-к кв. Москва просп. 60-летия Октября, 8 (112.0 м) - Фото 1
    3-к кв. Москва просп. 60-летия Октября, 8 (112.0 м) - Фото 2
    3-комнатная квартира, общая площадь 112м², жилая 90м², кухня 15м²

    J44348 Александр. Шикарная 3- х комнатная квартира с потрясающими панорамными видами на город. ЖК бизнес- класса с охраняемой и огороженной территорией. Выполнен дизайнерский ремонт в современном стиле, функциональная студийная планировка, изолированная...
    • 112 м²
    • 3-ком
    • 24/24 эт.
    260 000 Р
    Агент
    +7 (986) Показать номер
    Посмотреть контакты
    1-к кв. Москва Кутузовский просп., 24 (41.0 м) - Фото 1
    1-к кв. Москва Кутузовский просп., 24 (41.0 м) - Фото 2
    1-комнатная квартира, общая площадь 41м², жилая 23м², кухня 6м²

    НОВЫЙ РЕМОНТ J62704 Александр БЕЗ КОМИССИИ ДЛЯ КЛИЕНТА КОЛЛЕГАМ БОНУС Стильная квартира с новым ремонтом на Кутузовском проспекте. В квартире никто не проживал, сдается впервые Качественная отделка в современном стиле. Планировочным решением...
    • 41 м²
    • 1-ком
    • 6/10 эт.
    250 000 Р
    Агент
    +7 (986) Показать номер
    Посмотреть контакты
    2-к кв. Москва Мясницкая ул., 24/7С1 (89.0 м) - Фото 1
    2-к кв. Москва Мясницкая ул., 24/7С1 (89.0 м) - Фото 2
    2-комнатная квартира, общая площадь 89м², жилая 72м², кухня 8м²

    Возможна аренда под офис или для проживания. Апартаменты общей площадью 89 м в комплексе Metropolis Loft на Чистых прудах. Отделка выполнена в стиле лофт с использованием красного кирпича. Благодаря большим окнам и потолкам высотой 4 метра пространство...
    • 89 м²
    • 2-ком
    • 2/6 эт.
    • кирпичный
    250 000 Р
    Агент
    +7 (939) Показать номер
    Посмотреть контакты
    3-к кв. Москва просп. Генерала Дорохова, 39к2Л (66.0 м) - Фото 1
    3-к кв. Москва просп. Генерала Дорохова, 39к2Л (66.0 м) - Фото 2
    3-комнатная квартира, общая площадь 66м², жилая 50м², кухня 10м²

    Квартира с двумя спальнями общей площадью 66 м в комплексе бизнес-класса West Garden. Квартира расположена на пятом этаже в корпусе 14. В стоимость входит машино-место в подземном паркинге. Выполнена дизайнерская отделка в светлых лаконичных тонах. В...
    • 66 м²
    • 3-ком
    • 5/14 эт.
    • монолит
    250 000 Р
    Агент
    +7 (984) Показать номер
    Посмотреть контакты

    Не нашли подходящего объявления?

    Оставьте заявку, и наши риэлторы подберут квартиру в районе Москвы

    (0)