Будьте осторожны при перечислении предоплаты!
Для вашей безопасности предварительно рекомендуем запрашивать документы на объект недвижимости и подтверждение заключения сделки.

80 000 Р

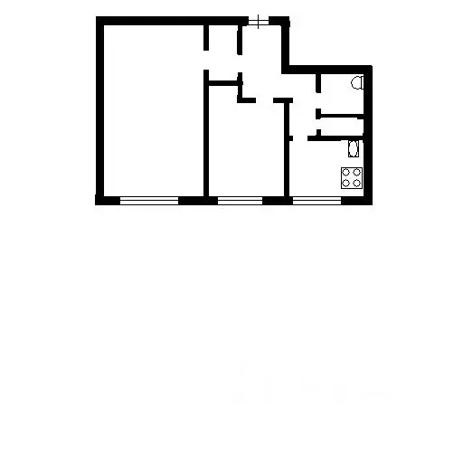
Информация о квартире

65 м2
Площадь
40 м2
Жилая
6 м2
Кухня
3
Комнаты
4
Этаж
9
Этажность
Развернуть
Агент
+7 (986) 304-18-87
Начать чат с агентом

3-к кв. Москва Иерусалимская ул., 6 (65.0 м)

Уютная квартира полностью готова к проживанию. Две спальни с кроватями 140 см и проходная гостиная с раскладным диваном. Большая остекленная лоджия, кондиционеры. Духовки и посудомоечной нет Санузел раздельный. В прихожей большой шкаф. Дом расположен в тихом зелёном дворе в 7 минутах от метро. Рядом много магазинов. Ждём порядочных жильцов на длительный срок 2-3 человек без животных. Квартиру предлагает агентство недвижимости входящее в Гильдию риелторов Москвы.

Читать полностью

    Для того, чтобы снять трехкомнатную квартиру по адресу: м. Пролетарская, ул. Иерусалимская, 6, позвоните по телефону +7 (986) 304-18-87. Торопитесь! Объявление №30092368264 об аренде трехкомнатной квартиры опубликовано 2 дня назад.

    Позвонить Написать
    80 000 Р
    Агент
    +7 (986) 304-18-87
    Начать чат с агентом
    Похожие предложения
    2-к кв. Москва Малая Калитниковская ул., 3 (45.0 м) - Фото 1
    2-к кв. Москва Малая Калитниковская ул., 3 (45.0 м) - Фото 2
    2-комнатная квартира, общая площадь 45м², жилая 32м², кухня 7м²

    Сдаётся в аренду уютная двухкомнатная квартира в кирпичном доме, построенном в 1964 году. Общая площадь квартиры составляет 45 квадратных метров, из которых 32 квадратных метра отведены под жилую площадь и 7 квадратных метров занимает кухня. Квартира...
    • 45 м²
    • 2-ком
    • 1/5 эт.
    • 50%
    80 000 Р
    Агент
    +7 (985) Показать номер
    Посмотреть контакты
    2-к кв. Москва ул. Симоновский Вал, 18 (45.0 м) - Фото 1
    2-к кв. Москва ул. Симоновский Вал, 18 (45.0 м) - Фото 2
    2-комнатная квартира, общая площадь 45м², жилая 34м², кухня 6м²

    Арт.Светлая, уютная квартира с ремонтом из современных, экологичных материалов. Комнаты смежные. Балкон застекленный.Необходимая для проживания мебель (много шкафов для хранения, кровать 1600*2000, диван - 2х-спальный) и полный комплект бытовой техники...
    • 45 м²
    • 2-ком
    • 2/8 эт.
    • 60%
    80 000 Р
    Агент
    +7 (916) Показать номер
    Посмотреть контакты
    2-к кв. Москва Волгоградский просп., 12 (38.0 м) - Фото 1
    2-к кв. Москва Волгоградский просп., 12 (38.0 м) - Фото 2
    2-комнатная квартира, общая площадь 38м², кухня 16м²

    Вашему вниманию предлагается уютная двухкомнатная квартира, с удобной и функциональной планировкой, кухней гостиной, рабочей кабинетной зоной, спальней и гардеробной. выполнен свежий косметический ремонт куплена новая мебель. квартира полностью готова...
    • 38 м²
    • 2-ком
    • 9/9 эт.
    • 50%
    80 000 Р
    Агент
    +7 (989) Показать номер
    Посмотреть контакты
    2-к кв. Москва Воронцовская ул., 46 (44.0 м) - Фото 1
    2-к кв. Москва Воронцовская ул., 46 (44.0 м) - Фото 2
    2-комнатная квартира, общая площадь 44м², жилая 30м², кухня 6м²

    Квартира рядом с метро Пролетарская и Крестьянская застава. Недалеко станция метро Таганская и Марксистская. В квартире выполнен качественный ремонт. Кухня совмещена с гостиной комнатой. Бытовая техника: стиральная машина автомат, холодильник двухкамерный,...
    • 44 м²
    • 2-ком
    • 2/9 эт.
    • 50%
    80 000 Р
    Агент
    +7 (917) Показать номер
    Посмотреть контакты
    2-к кв. Москва ул. Бутырский Вал, 50 (47.0 м) - Фото 1
    2-к кв. Москва ул. Бутырский Вал, 50 (47.0 м) - Фото 2
    2-комнатная квартира, общая площадь 47м², жилая 32м², кухня 8м²

    Сдаётся чистая, светлая квартира. В квартире две изолированные комнаты, раздельный санузел, балкон. Имеется весь необходимый минимум из мебели и техники, кровать и матрац Askona. Рядом находятся еврейская школа, обычные сады и школы, магазины, банки и...
    • 47 м²
    • 2-ком
    • 3/6 эт.
    • 60%
    80 000 Р
    Агент
    +7 (916) Показать номер
    Посмотреть контакты

    Не нашли подходящего объявления?

    Оставьте заявку, и наши риэлторы подберут квартиру в районе Москвы

    (0)