Россия, Москва, 1-й Институтский проезд, 3 стр 3
м. Окская, 12 мин. пешком
100 000 000 Р

Информация об помещении

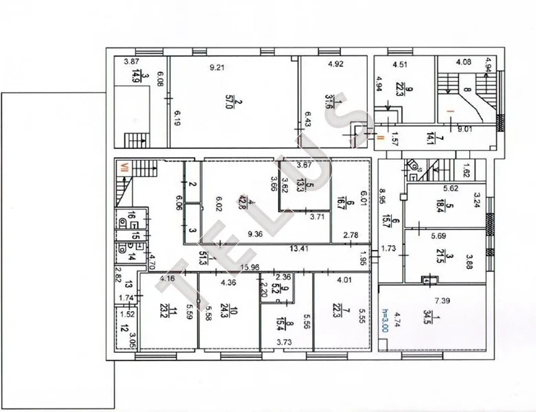
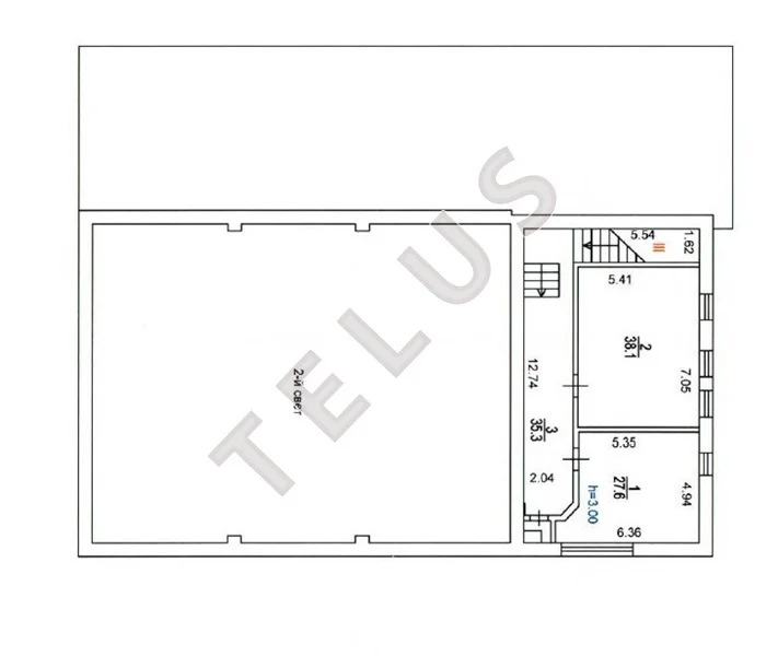
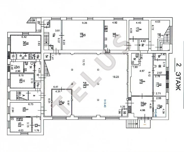
1224.0 м2
Площадь

Состояние и оснащение

Количество этажей
2
Развернуть
Агент
Григорий
+7 (968) 017-01-24
Начать чат с агентом

м. Окская, 1-й Институтский пр-д., 1224м2, Часть здания (ном. объекта: ...

Обособленное помещение в отдельно стоящем здании, общей площадью 1224 м2. помещение занимает первый и второй этажи и антресоль второгоэтажа. потолки 3.4. метра. Год постройки- 1955, стены Кирпичные, есть все коммуникации, все перепланировки узаконены. Можно использовать под производство. нагрузка Без обремененный. Два входа, планировка открытая с офиснымемонтом. Земельный участок в аренде и есть 10 парковочных мест. Категория земель-Земли населенных пунктов. Рязанский район в 10 минутах от м. Окская. Объект №.

Читать полностью

    Для того, чтобы купить торговое помещение площадью 1224 кв. метра по адресу: м. Окская, 1-й Институтский проезд, 3 стр 3, позвоните по телефону +7 (968) 017-01-24. Торопитесь! Объявление №800826350 о продаже торгового помещения площадью 1224 кв. метра опубликовано Сегодня.

    Позвонить Написать
    100 000 000 Р
    Агент
    Григорий
    +7 (968) 017-01-24
    Начать чат с агентом
    Похожие предложения
    Торговая площадь в Москва ул. Фридриха Энгельса, 7-21 (107 м) - Фото 1
    Торговая площадь в Москва ул. Фридриха Энгельса, 7-21 (107 м) - Фото 2
    ID: L12973Продается торговое помещение 107 кв.м. на 1 линии ул Фридриха Энгельса, с потоком 65тыс чел в сутки. Отдельный вход Витринные окна Место для вывески на фасаде Большая эл.мощность Высокие потолки Три мокрые точки - можно разделить на три помещения...
    • 1/12 эт.
    96 000 000 Р
    Агент
    +7 (923) Показать номер
    Посмотреть контакты
    1-й Курьяновский проезд, 807 м2, Производственно-складской корпус ... - Фото 1
    1-й Курьяновский проезд, 807 м2, Производственно-складской корпус ... - Фото 2
    1-й Курьяновский проезд, 807 м2, Производственно-складской корпус ... - Фото 3
    1-й Курьяновский проезд, 807 м2, Производственно-складской корпус ... - Фото 4
    1-й Курьяновский проезд, 807 м2, Производственно-складской корпус ... - Фото 5
    1-й Курьяновский проезд, 807 м2, Производственно-складской корпус ... - Фото 6
    1-й Курьяновский проезд, 807 м2, Производственно-складской корпус ... - Фото 7
    1-й Курьяновский проезд, 807 м2, Производственно-складской корпус ... - Фото 8
    1-й Курьяновский проезд, 807 м2, Производственно-складской корпус ... - Фото 9
    1-й Курьяновский проезд, 807 м2, Производственно-складской корпус ... - Фото 10
    1-й Курьяновский проезд, 807 м2, Производственно-складской корпус ... - Фото 11
    1-й Курьяновский проезд, 807 м2, Производственно-складской корпус ... - Фото 12
    1-й Курьяновский проезд, 807 м2, Производственно-складской корпус ... - Фото 13
    1-й Курьяновский проезд, 807 м2, Производственно-складской корпус ... - Фото 14
    1-й Курьяновский проезд, 807 м2, Производственно-складской корпус ... - Фото 15
    1-й Курьяновский проезд, 807 м2, Производственно-складской корпус ... - Фото 16
    1-й Курьяновский проезд, 807 м2, Производственно-складской корпус ... - Фото 17
    1-й Курьяновский проезд, 807 м2, Производственно-складской корпус ... - Фото 18
    1-й Курьяновский проезд, 807 м2, Производственно-складской корпус ... - Фото 19
    1-й Курьяновский проезд, 807 м2, Производственно-складской корпус ... - Фото 20
    общая площадь 1315м², реализуемая площадь 1315м²

    Продается здание производственно-складского типа площадью 807 масположенное на земельном участке 30 соток в долгосрочной аренде до 2061 года.Территория огорожена и охраняется,собственный отдельный заезд.Электрическая мощность 150 квт.Коммуникации центральные,напрямую...
    • 1 315 м²
    • 3 этажа
    107 000 013 Р
    Агент
    +7 (968) Показать номер
    Посмотреть контакты
    м. Преображенская площадь, ул. Краснобогатырская, 1090 м2, Здание ... - Фото 1
    м. Преображенская площадь, ул. Краснобогатырская, 1090 м2, Здание ... - Фото 2
    м. Преображенская площадь, ул. Краснобогатырская, 1090 м2, Здание ... - Фото 3
    м. Преображенская площадь, ул. Краснобогатырская, 1090 м2, Здание ... - Фото 4
    м. Преображенская площадь, ул. Краснобогатырская, 1090 м2, Здание ... - Фото 5
    м. Преображенская площадь, ул. Краснобогатырская, 1090 м2, Здание ... - Фото 6
    м. Преображенская площадь, ул. Краснобогатырская, 1090 м2, Здание ... - Фото 7
    м. Преображенская площадь, ул. Краснобогатырская, 1090 м2, Здание ... - Фото 8
    м. Преображенская площадь, ул. Краснобогатырская, 1090 м2, Здание ... - Фото 9
    м. Преображенская площадь, ул. Краснобогатырская, 1090 м2, Здание ... - Фото 10
    м. Преображенская площадь, ул. Краснобогатырская, 1090 м2, Здание ... - Фото 11
    м. Преображенская площадь, ул. Краснобогатырская, 1090 м2, Здание ... - Фото 12
    м. Преображенская площадь, ул. Краснобогатырская, 1090 м2, Здание ... - Фото 13
    м. Преображенская площадь, ул. Краснобогатырская, 1090 м2, Здание ... - Фото 14
    м. Преображенская площадь, ул. Краснобогатырская, 1090 м2, Здание ... - Фото 15
    м. Преображенская площадь, ул. Краснобогатырская, 1090 м2, Здание ... - Фото 16
    м. Преображенская площадь, ул. Краснобогатырская, 1090 м2, Здание ... - Фото 17
    м. Преображенская площадь, ул. Краснобогатырская, 1090 м2, Здание ... - Фото 18
    м. Преображенская площадь, ул. Краснобогатырская, 1090 м2, Здание ... - Фото 19
    м. Преображенская площадь, ул. Краснобогатырская, 1090 м2, Здание ... - Фото 20
    общая площадь 1089.6м², реализуемая площадь 1089.6м²

    Офисное здание 1089,6 м2. Три этажа с мансардой и подвал. Первая линия домов. Стены - кирпич. Год постройки 1941. Стены кирпичные, Потолки 3.5 м. Площадь этажа 314 м2. Инженерные коммуникации центральные, кроме отопления (дизельный котел), выделенная...
    • 1 089.6 м²
    • 3 этажа
    103 000 000 Р
    Агент
    +7 (965) Показать номер
    Посмотреть контакты
    Торговая площадь в Москва ул. Островитянова, 13 (415 м) - Фото 1
    Торговая площадь в Москва ул. Островитянова, 13 (415 м) - Фото 2
    Продажа торгового помещения 415 м2 на ул. Островитянова, д. 13 (15 минут пешком от метро Коньково). 1-я линия домов. Помещение 415 м2 состоит из двух блоков: 137 м2 и 278 м2, открытая планировка, отдельный вход, высота потолка 3 м. Электрическая мощность...
    • 1/11 эт.
    95 000 000 Р
    Агент
    +7 (916) Показать номер
    Посмотреть контакты
    Торговая площадь в Москва ул. Панфилова, 12 (359 м) - Фото 1
    Торговая площадь в Москва ул. Панфилова, 12 (359 м) - Фото 2
    Объект 312178Предлагается в продажу ресторан Буффало и ЧебуречнаяПросмотры в любое удобное для Вас время.Ваш менеджер Александр.
    • 1/2 эт.
    110 000 000 Р
    Агент
    +7 (933) Показать номер
    Посмотреть контакты

    Не нашли подходящего объявления?

    Оставьте заявку, и наши риэлторы подберут торговое помещение в районе Москвы

    (0)