750 000 000 Р 9 675 400 $ или 8 267 100

Информация об помещении

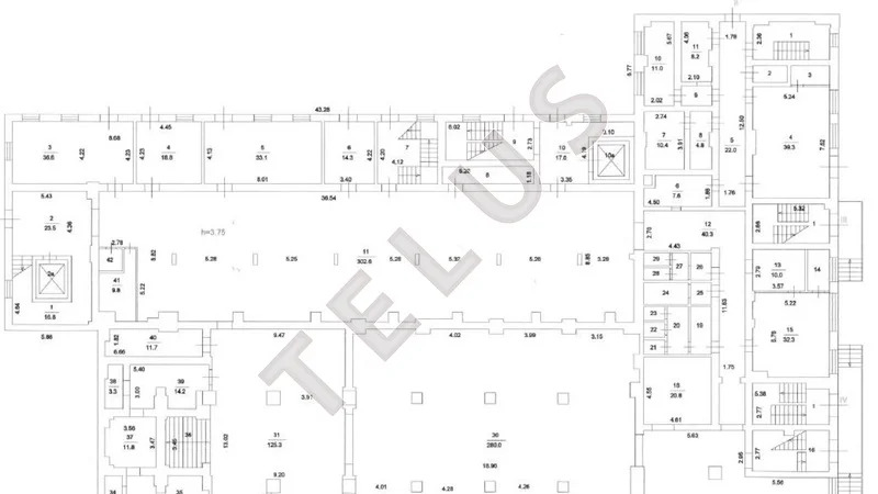
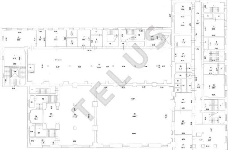
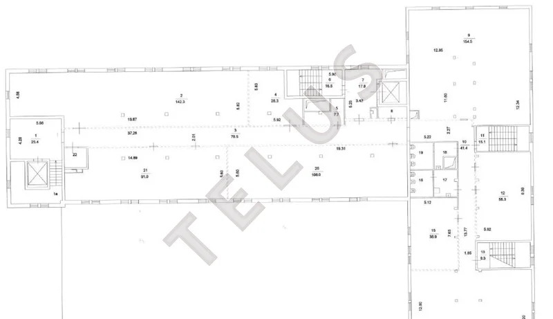
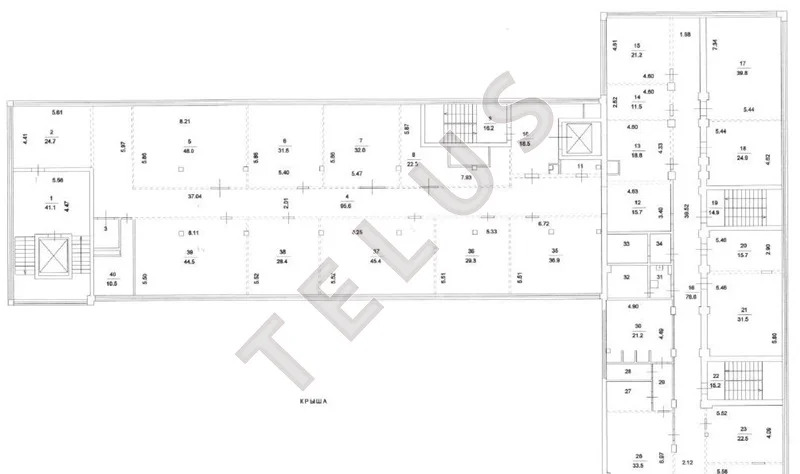
7400 м2
Площадь

Состояние и оснащение

Количество этажей
6
Развернуть
Агент
Марат
+7 (926) 630-97-04
Начать чат с агентом

м. Савеловская, ул. Складочная, 7400 м2, Продажа Бизнес Центра (ном. ...

Современный 6-ти этажный БЦ "Савёловград", площадью 7400 м2. Облицовка цокольной части здания керамогранитом. Вентилируемый фасад, тройные стеклопакеты REHAU, мансардный этаж, эксплуатируемая кровля. Высота потолков от 2,5 до 4 метров. 1-ая категория электроснабжения от 2 независимых источников. Арендопригодная площадь 5 800 м2. Центральная система приточно-вытяжной системы вентиляции и кондиционирования, собственный тепловой пункт. Современная система автоматического сплинкерного пожаротушения. Оптоволокно, выделенный скоростной интернет, операторы: АКАДО, ВымпелКом, Матрикс Телеком. Лифты фирмы OTIS грузоподъемностью 1 тонна. Земельный участок площадью 0,4 га в долгосрочной аренде на 25 лет. Парковка от 50 машин. Объект №.

Читать полностью

    Для того, чтобы купить торговое помещение площадью 7400 кв. метров по адресу: ул. Складочная, 1с15, позвоните по телефону +7 (926) 630-97-04. Торопитесь! Объявление №800826227 о продаже торгового помещения площадью 7400 кв. метров опубликовано Сегодня.

    Позвонить Написать
    750 000 000 Р9 675 400 $ или 8 267 100
    Агент
    Марат
    +7 (926) 630-97-04
    Начать чат с агентом
    Похожие предложения
    Торговая площадь в Москва ул. Новый Арбат, 19 (1699 м) - Фото 1
    Торговая площадь в Москва ул. Новый Арбат, 19 (1699 м) - Фото 2
    643885 . Предлагаем к приобретению торговое помещение формата Street Retail, площадью 1 698,5 кв. м., расположенное на первом этаже, в цоколе и подвале административного здания. Без комиссии для покупателя.Преимущества объекта:-первая линия домов одного...
    • 1/26 эт.
    749 000 000 Р
    Агент
    +7 (938) Показать номер
    Посмотреть контакты
    Торговая площадь в Москва Коломенская ул., 17 (4851 м) - Фото 1
    Торговая площадь в Москва Коломенская ул., 17 (4851 м) - Фото 2
    643918 . Предлагаем торговый центр Океан с якорными арендаторами Пятёрочка | Fix Price | Точка красоты | Альфа-Банк | DNS | Home Market | Горздрав | Магазин постоянных распродаж | Четыре лапы | Литра | Сбербанк | Мясницкий Ряд | Мегафон | Allianz, площадью...
    • 1/3 эт.
    750 000 000 Р
    Агент
    +7 (938) Показать номер
    Посмотреть контакты
    МО, г Одинцово, ул Южная, 5900 м2, Здание (ном. объекта: 7925) - Фото 1
    МО, г Одинцово, ул Южная, 5900 м2, Здание (ном. объекта: 7925) - Фото 2
    МО, г Одинцово, ул Южная, 5900 м2, Здание (ном. объекта: 7925) - Фото 3
    МО, г Одинцово, ул Южная, 5900 м2, Здание (ном. объекта: 7925) - Фото 4
    МО, г Одинцово, ул Южная, 5900 м2, Здание (ном. объекта: 7925) - Фото 5
    МО, г Одинцово, ул Южная, 5900 м2, Здание (ном. объекта: 7925) - Фото 6
    МО, г Одинцово, ул Южная, 5900 м2, Здание (ном. объекта: 7925) - Фото 7
    МО, г Одинцово, ул Южная, 5900 м2, Здание (ном. объекта: 7925) - Фото 8
    МО, г Одинцово, ул Южная, 5900 м2, Здание (ном. объекта: 7925) - Фото 9
    МО, г Одинцово, ул Южная, 5900 м2, Здание (ном. объекта: 7925) - Фото 10
    МО, г Одинцово, ул Южная, 5900 м2, Здание (ном. объекта: 7925) - Фото 11
    МО, г Одинцово, ул Южная, 5900 м2, Здание (ном. объекта: 7925) - Фото 12
    общая площадь 5900м², реализуемая площадь 5900м²

    Здание офисного типа площадью 5900 м2,-5 этажей,кабинетная планировка. потолки 3.2 метра. В помещении выполнен ремонт Электрическая мощность 400 кВт,автономное отопление,центральные вода и канализация.Асфальтированная дорога, соя парковка га 40 машин...
    • 5 900 м²
    • 5 этажей
    750 000 000 Р
    Агент
    +7 (968) Показать номер
    Агентство
    Телус
    Посмотреть контакты
    Торговая площадь в Московская область, Лобня ул. Ленина, 67 (5470 м) - Фото 1
    Торговая площадь в Московская область, Лобня ул. Ленина, 67 (5470 м) - Фото 2
    Предложение на продажу 61868.Продажа ТЦ Катюшки , по адресу: МО, г. Лобня, улица Ленина, д. 67. Выгодное расположение: высокий автомобильный и пешеходный трафик. Первая линия улицы Ленина, до станции D1 Лобня 7 минут на автомобиле. ТЦ Катюшкиасположен...
    • 1/15 эт.
    750 000 000 Р
    Агент
    +7 (989) Показать номер
    Посмотреть контакты

    Не нашли подходящего объявления?

    Оставьте заявку, и наши риэлторы подберут торговое помещение в районе Москвы

    (0)