Россия, Москва, ЖК Аквилон Бисайд 2.0 (Рязанский пр-т)
88 890 296 Р 1 099 400 $ или 946 500

Информация об помещении

183.1 м2
Площадь
1
Этаж

Состояние и оснащение

Количество этажей
14
Развернуть
S5Development
S5Development
+7 (903) 589-03-59

Продажа торгового помещения, м. Стахановская, ЖК Аквилон Бисайд 2.0 ...

Лот 157106.

Предлагается в продажу торговое помещение в ЖК Аквилон Beside 2.0 по адресу: Рязанский проспект, земельный участок 2/25, в 10 мин. ходьбы от метро/МЦК/D4 Нижегородская. Первая линия от дублера Рязанского проспекта. Комплекс состоит из одного 29ти этажного дома с девятью секциями на 1 106 квартир. Одной из главных особенностей этого района является его транспортная доступность. Крупный транспортно-пересадочный узел включает Некрасовскую и Большую кольцевую ветки метро, МЦК, Московскую железную дорогу, пересечение главных автомобильных магистралей. Это позволяет быстро и комфортно добраться до любой точки города. Торговое окружение: ТЦ «Город», «Лемана Про», АвтоГЕРМЕС Chery, аптека, БЦ Карачарово.

Срок ввода в эксплуатацию - 2 кв. 2027 г., срок передачи ключей 4 кв. 2027 г.

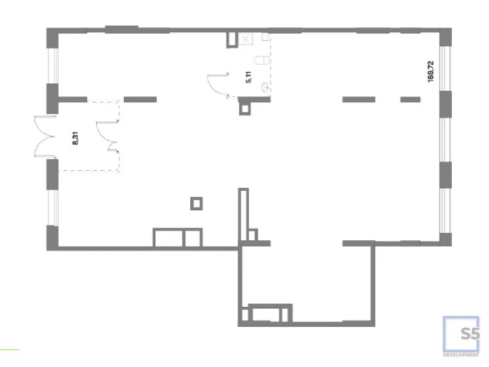
Технические характеристики: общая площадь 183.14 кв.м. • первый этаж жилого 14 этажного дома • электроэнергия 0.2кВт/м2. • отдельный 1 вход • без отделки • потолки 4 метра • центральные коммуникации • витринные окна • первая линия.

Коммерческие условия:
• Стоимость
• Стоимость кв.м.
• Продажа по ДДУ от юр.лица
• Возможна рассрочка, ПВ 50%, остаток ежемесячно на 12 мес.

Читать полностью

    Для того, чтобы купить торговое помещение площадью 183 кв. метра по адресу: м. Стахановская, ЖК Аквилон Бисайд 2.0 (Рязанский пр-т), напишите автору объявления. Торопитесь! Объявление №800825252 о продаже торгового помещения площадью 183 кв. метра опубликовано Вчера.

    Позвонить Написать
    88 890 296 Р1 099 400 $ или 946 500
    S5Development
    S5Development
    +7 (903) 589-03-59
    Похожие предложения
    Торговая площадь в Москва Аквилон Бисайд 2.0 жилой комплекс (183 м) - Фото 1
    Торговая площадь в Москва Аквилон Бисайд 2.0 жилой комплекс (183 м) - Фото 2
    Лот 157106.Предлагается в продажу торговое помещение в ЖК Аквилон Beside 2.0 по адресу: Рязанский проспект, земельный участок 2/25, в 10 мин. ходьбы от метро/МЦК/D4 Нижегородская. Первая линия от дублера Рязанского проспекта. Комплекс состоит из одного...
    • 1/14 эт.
    88 890 296 Р
    Агент
    +7 (916) Показать номер
    Посмотреть контакты
    Продажа торгового помещения, м. Смоленская, Карманицкий пер. - Фото 1
    Продажа торгового помещения, м. Смоленская, Карманицкий пер. - Фото 2
    Продажа торгового помещения, м. Смоленская, Карманицкий пер. - Фото 3
    Продажа торгового помещения, м. Смоленская, Карманицкий пер. - Фото 4
    общая площадь 17.1м², реализуемая площадь 17.1м²

    Продажа помещения на выходе из метро, станция Смоленская Арбатско-Покровской линии. Площадь 17,1 кв.м, 1-й этаж нежилого здания, отдельный вход со стороны Карманицкого переулка. Планировка открытая, потолки 3м. 70 метров от выхода из метро, вывеска...
    • 17.1 м²
    • 1/8 эт.
    89 000 000 Р
    Агент
    +7 (903) Показать номер
    Посмотреть контакты
    Продажа торгового помещения, м. Планерная, ул. Планерная - Фото 1
    Продажа торгового помещения, м. Планерная, ул. Планерная - Фото 2
    Продажа торгового помещения, м. Планерная, ул. Планерная - Фото 3
    Продажа торгового помещения, м. Планерная, ул. Планерная - Фото 4
    общая площадь 63.8м², реализуемая площадь 63.8м²

    1 минута от метро. Продажа торгового помещения в шаговой доступности от станции метро "Планерная". СЗАО, район Северное Тушино. Площадь помещения - 63,8 м2 (на плане блок № 9). Первый этаж, отдельный вход с первой линии Планерной улицы, большие витрины,...
    • 63.8 м²
    • 1/9 эт.
    89 760 000 Р
    Агент
    +7 (903) Показать номер
    Посмотреть контакты
    Продажа торгового помещения, м. Бутырская, Огородный проезд - Фото 1
    Продажа торгового помещения, м. Бутырская, Огородный проезд - Фото 2
    Продажа торгового помещения, м. Бутырская, Огородный проезд - Фото 3
    Продажа торгового помещения, м. Бутырская, Огородный проезд - Фото 4
    Продажа торгового помещения, м. Бутырская, Огородный проезд - Фото 5
    Продажа торгового помещения, м. Бутырская, Огородный проезд - Фото 6
    Продажа торгового помещения, м. Бутырская, Огородный проезд - Фото 7
    Продажа торгового помещения, м. Бутырская, Огородный проезд - Фото 8
    Продажа торгового помещения, м. Бутырская, Огородный проезд - Фото 9
    Продажа торгового помещения, м. Бутырская, Огородный проезд - Фото 10
    Продажа торгового помещения, м. Бутырская, Огородный проезд - Фото 11
    общая площадь 165м², реализуемая площадь 165м²

    Арендный бизнес. Продажа помещения в Торговом центре, на выходе из метро. Помещение общей площадью 165 м2 (на плане №11) на 1-м этаже ТЦ «Зеленый» , со своим собственным входом с улицы, с 1-й линии. Круглосуточный доступ, 24/7. Высота потолков 4,5 – 5,2...
    • 165 м²
    • 1/2 эт.
    89 670 000 Р
    Агент
    +7 (903) Показать номер
    Посмотреть контакты
    Торговое помещение 288.9 м2 - Фото 1
    реализуемая площадь 288.9м²

    Продаю стрит-ритейл площадью 288.9 кв. м м. Авиамоторная, район города - Лефортово. Помещение располагается в 8-этажном торгово-общественном центре. Располагается на 1 этаже здания, возможное назначение - прочее, здание на первой линии.
    • 288.9 м²
    • 1/8 эт.
    88 800 000 Р
    Агент
    +7 (905) Показать номер
    Посмотреть контакты

    Не нашли подходящего объявления?

    Оставьте заявку, и наши риэлторы подберут торговое помещение в районе Москвы

    (0)