Россия, Москва, 6-я Радиальная улица, 7/1к1
Узнать последнюю цену

Реализация объекта недвижимости приостановлена

Информация об помещении

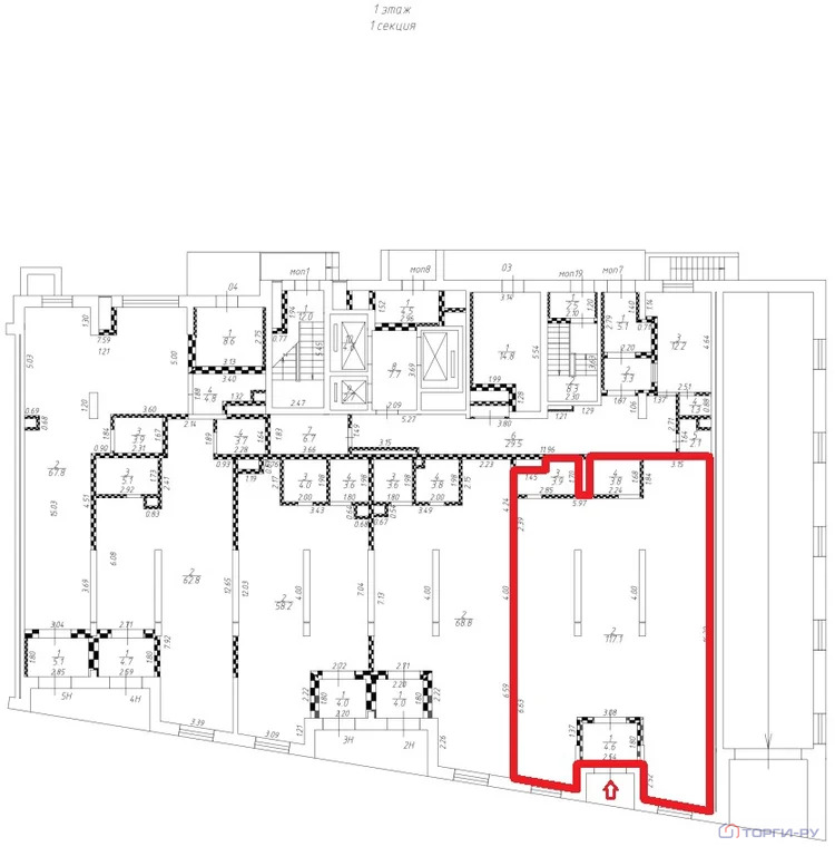
129.4 м2
Площадь
1
Этаж
Развернуть

Продажа торгового помещения, 6-я Радиальная улица

.
Нежилое помещение, 129,4 м | ЮАО, 6-я Радиальная ул., д. 7/1, корп. 1, этаж 1, пом. 21Н | Метро: Царицыно (пешком 35 мин., транспортом 34 мин., расстояние 1.68 км)

Характеристики:
Функциональное назначение: Свободное
Тип входа: Отдельный

Читать полностью
    Узнать последнюю цену

    Реализация объекта недвижимости приостановлена

    Не нашли подходящего объявления?

    Оставьте заявку, и наши риэлторы подберут торговое помещение в районе Москвы

    (0)