43 000 000 Р 554 100 $ или 476 100

Информация об помещении

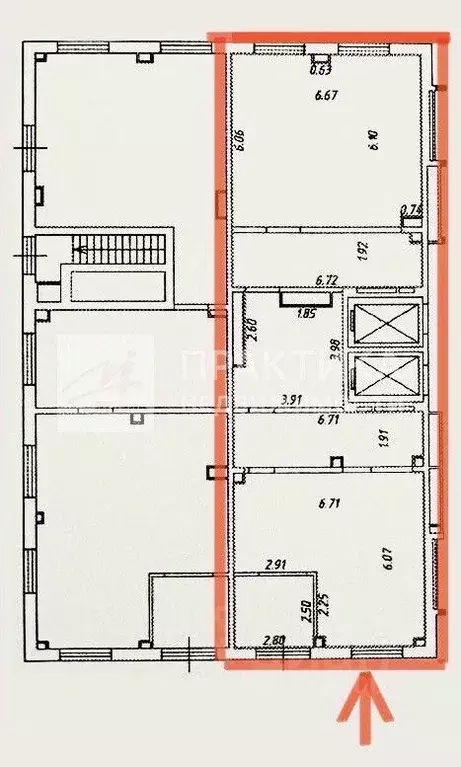
18.1 м2
Площадь
1
Этаж

Состояние и оснащение

Количество этажей
11
Развернуть
Ротачева Ирина
PRO
+7 (903) 170-05-54
Профессионал AFY.ru с 2018 г.
Начать чат с агентом

Продажа торгового помещения, м. Белорусская, Ленинградский пр-кт.

АРЕНДНЫЙ БИЗНЕС! Центр Москвы. 1-я линия домов Ленинградского проспекта. 1-2 минуты пешком до станции метро Белорусская и Белорусского вокзала.

Продажа торгового помещения площадью 18,1 кв.м.

1-й этаж 11-ти этажного жилого дома. Отдельный вход с фасада, витрина, высота потолков 4м, санузел, кондиционер, помещение с ремонтом, 20 кВт электрические мощности, городские коммуникации.

Окружение: крупный деловой район с большим количеством бизнес-центров и жилых домов: ЖК «Суббота», ЖК «Слава», МКФ, ЖК «Art Residence».

Отличная пешеходная, транспортная доступность. Прямая видимость с Ленинградского проспекта. Любое свободное использование - ограничений нет. Дом не является памятником.

Развитая инфраструктура и сложившиеся торговое окружение.

Арендатор - Шаурма. МАП -280., УСНО, ГАП - 3.360.. Арендатор работает более года.

Договор аренды 11 месяцев с продлением, предусмотрена индексация.

Коммунальные платежи и электричество оплачиваются арендатором отдельно. Объект № 549369Номер объекта: 5/549369/310

Читать полностью

    Для того, чтобы купить торговое помещение площадью 18 кв. метров по адресу: САО, Беговой, м. Белорусская, Ленинградский пр-кт., 4/2, позвоните по телефону +7 (903) 170-05-54. Торопитесь! Объявление №800814533 о продаже торгового помещения площадью 18 кв. метров опубликовано Сегодня.

    Позвонить Написать
    43 000 000 Р554 100 $ или 476 100
    Ротачева Ирина
    PRO
    +7 (903) 170-05-54
    Профессионал AFY.ru с 2018 г.
    Начать чат с агентом
    Похожие предложения
    Торговая площадь в Москва Ленинградский просп., 75к1 (198 м) - Фото 1
    Торговая площадь в Москва Ленинградский просп., 75к1 (198 м) - Фото 2
    Арт.Продажа готового арендного бизнеса с арендатором Красное Белое Ленинградский проспектЛокация:Расположение на первой линии главной магистрали — Ленинградского проспекта;Метро Сокол в минуте ходьбы;Плотное окружение бизнес-центров, учебных заведений,...
    • 1/9 эт.
    42 000 000 Р
    Агент
    +7 (916) Показать номер
    Посмотреть контакты
    Продажа торгового помещения, м. Смоленская, Денежный пер. - Фото 1
    Продажа торгового помещения, м. Смоленская, Денежный пер. - Фото 2
    общая площадь 25.8м², реализуемая площадь 25.8м²

    Продажа помещения. ЦАО, 160 метров от станции метро Смоленская. Район Арбат Площадь 25,8 м2. 1 этаж 9-ти этажного жилого дома. Планировка зальная, высота потолка - 3,15 м, все городские коммуникации, отдельный вход с улицы, витрина, вывеска на фасаде....
    • 25.8 м²
    • 1/9 эт.
    43 500 000 Р
    Агент
    +7 (903) Показать номер
    Посмотреть контакты
    Продажа торгового помещения, м. Бутырская, Огородный проезд - Фото 1
    Продажа торгового помещения, м. Бутырская, Огородный проезд - Фото 2
    Продажа торгового помещения, м. Бутырская, Огородный проезд - Фото 3
    Продажа торгового помещения, м. Бутырская, Огородный проезд - Фото 4
    Продажа торгового помещения, м. Бутырская, Огородный проезд - Фото 5
    Продажа торгового помещения, м. Бутырская, Огородный проезд - Фото 6
    Продажа торгового помещения, м. Бутырская, Огородный проезд - Фото 7
    Продажа торгового помещения, м. Бутырская, Огородный проезд - Фото 8
    общая площадь 153.2м², реализуемая площадь 153.2м²

    Арендный бизнес. Продажа торгового помещения в Торговом центре, рядом с метро. Помещение общей площадью 153,2 м2 (на плане – объединение блоков 54+55) на 1-ом этаже ТЦ "Зеленый". Высота потолков 4,5 м, планировка открытая, помещение с ремонтом. Помещение...
    • 153.2 м²
    • 1/2 эт.
    42 021 940 Р
    Агент
    +7 (903) Показать номер
    Посмотреть контакты
    Продажа торгового помещения, м. Тушинская, ул. Тушинская - Фото 1
    Продажа торгового помещения, м. Тушинская, ул. Тушинская - Фото 2
    Продажа торгового помещения, м. Тушинская, ул. Тушинская - Фото 3
    Продажа торгового помещения, м. Тушинская, ул. Тушинская - Фото 4
    общая площадь 30.5м², реализуемая площадь 30.5м²

    Продажа торгового помещения на выходе из метро Тушинская. Первая фасадная линия!!! 1 мин. от метро Тушинская. Предлагается на продажу помещение площадью 30,5 кв.м (на плане № 6), расположенное на 1-м этаже административного здания 1988 года постройки....
    • 30.5 м²
    • 1/1 эт.
    42 000 000 Р
    Агент
    +7 (903) Показать номер
    Посмотреть контакты
    Продажа торгового помещения, м. Фили, Багратионовский проезд - Фото 1
    Продажа торгового помещения, м. Фили, Багратионовский проезд - Фото 2
    Продажа торгового помещения, м. Фили, Багратионовский проезд - Фото 3
    Продажа торгового помещения, м. Фили, Багратионовский проезд - Фото 4
    Продажа торгового помещения, м. Фили, Багратионовский проезд - Фото 5
    Продажа торгового помещения, м. Фили, Багратионовский проезд - Фото 6
    общая площадь 77м², реализуемая площадь 77м²

    Арендный бизнес возле метро Фили. Предлагается на продажу торговая площадь - 77 кв м. Помещение расположено на первом этаже жилого дома, свободная планировка, отдельный вход с фасада, витрины, высокие потолки 3,2 м, электрические мощности 20 кВт, все...
    • 77 м²
    • 1/8 эт.
    43 000 000 Р
    PRO
    +7 (903) Показать номер
    Посмотреть контакты

    Не нашли подходящего объявления?

    Оставьте заявку, и наши риэлторы подберут торговое помещение в районе Москвы

    (0)