16 490 000 Р 219 200 $ или 185 800

Информация об помещении

1
Этаж

Состояние и оснащение

Количество этажей
17
Развернуть
Агент
+7 (916) 235-89-20
Начать чат с агентом

Торговая площадь в Москва Краснобогатырская ул., 40 (48 м)

Лот 159252.Предлагается в продажу помещение свободного назначения, по адресу г. Москва, ул. Краснобогатырская, ЖК Большая семерка , 48.5 м. Жилой комплекс представлен 7 корпусами высотой 17 этажей, объединенными общим стилобатом. Здания возведены по кирпично-монолитной технологии, фасады выполнены в светлых оттенках с использованием керамогранитной плитки и натурального камня на нижних уровнях. Проект расположен на берегу реки Яуза, в районе Богородское, Восточного АО. В окружении находятся парк Сокольники, Лосиный остров и лесопарк Измайлово. Район отличается развитой инфраструктурой: школы и детские сады, поликлиники, спорткомплексы и фитнес-клубы, магазины, аптеки, салоны красоты и пункты выдачи. В радиусе 500 м доступны автобусные и трамвайные остановки. До метро Преображенская площадь можно добраться за 20 минут пешком. Торговое окружение:Пятерочка, Папа Джонс.Технические характеристики:Площадь 48.5 м., отдельный вход, высота потолков 3,7м., витринное остекление, без отделки.Коммерческие условия:Стоимость за все -Стоимость за 1 кв.м. -

Читать полностью
    Позвонить Написать
    16 490 000 Р219 200 $ или 185 800
    Агент
    +7 (916) 235-89-20
    Начать чат с агентом
    Похожие предложения в Москве
    Торговая площадь в Москва Краснобогатырская ул., 40 (48 м) - Фото 1
    Торговая площадь в Москва Краснобогатырская ул., 40 (48 м) - Фото 2
    1158354. Предлагаем помещение свободного назначения в ЖК Большая семёрка , площадью 48.3 кв. м, расположенное на цокольном этаже 17-этажного жилого дома. Помещение: 10Н между корпусами 2 и 3. Без комиссии для покупателя.Преимущества объекта:-ЖК состоит...
    • -1/17 эт.
    15 939 000 Р
    Агент
    +7 (938) Показать номер
    Посмотреть контакты
    Торговая площадь в Москва Краснобогатырская ул., 40 (46 м) - Фото 1
    Торговая площадь в Москва Краснобогатырская ул., 40 (46 м) - Фото 2
    1158348. Предлагаем помещение свободного назначения в ЖК Большая семёрка , площадью 45.6 кв. м, расположенное на цокольном этаже 17-этажного жилого дома. Помещение: 9Н между корпусами 2 и 3. Без комиссии для покупателя.Преимущества объекта:-ЖК состоит...
    • -1/17 эт.
    15 048 000 Р
    Агент
    +7 (938) Показать номер
    Посмотреть контакты
    Торговая площадь в Москва Краснобогатырская ул., 40 (42 м) - Фото 1
    Торговая площадь в Москва Краснобогатырская ул., 40 (42 м) - Фото 2
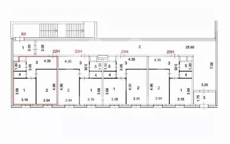
    1159969. Предлагаем помещение свободного назначения в ЖК Большая семёрка , площадью 41.6 кв. м, расположенное на первом этаже 17-этажного жилого дома. Помещение: 22Н между корпусами 5 и 6. Без комиссии для покупателя.Преимущества объекта:-ЖК состоит...
    • 1/17 эт.
    16 640 000 Р
    Агент
    +7 (938) Показать номер
    Посмотреть контакты
    Торговая площадь в Москва Краснобогатырская ул., 40 (48 м) - Фото 1
    Торговая площадь в Москва Краснобогатырская ул., 40 (48 м) - Фото 2
    1158354. Предлагаем помещение свободного назначения в ЖК Большая семёрка , площадью 48.3 кв. м, расположенное на цокольном этаже 17-этажного жилого дома. Помещение: 10Н между корпусами 2 и 3. Без комиссии для покупателя.Преимущества объекта:-ЖК состоит...
    • -1/17 эт.
    15 939 000 Р
    Агент
    +7 (938) Показать номер
    Посмотреть контакты
    Торговая площадь в Москва Краснобогатырская ул., 40 (46 м) - Фото 1
    Торговая площадь в Москва Краснобогатырская ул., 40 (46 м) - Фото 2
    1158348. Предлагаем помещение свободного назначения в ЖК Большая семёрка , площадью 45.6 кв. м, расположенное на цокольном этаже 17-этажного жилого дома. Помещение: 9Н между корпусами 2 и 3. Без комиссии для покупателя.Преимущества объекта:-ЖК состоит...
    • -1/17 эт.
    15 048 000 Р
    Агент
    +7 (938) Показать номер
    Посмотреть контакты

    Не нашли подходящего объявления?

    Оставьте заявку, и наши риэлторы подберут торговое помещение в районе Москвы

    (0)