18 060 000 Р 240 000 $ или 203 500

Информация об помещении

1
Этаж

Состояние и оснащение

Количество этажей
9
Развернуть
Агент
+7 (938) 656-74-88
Начать чат с агентом

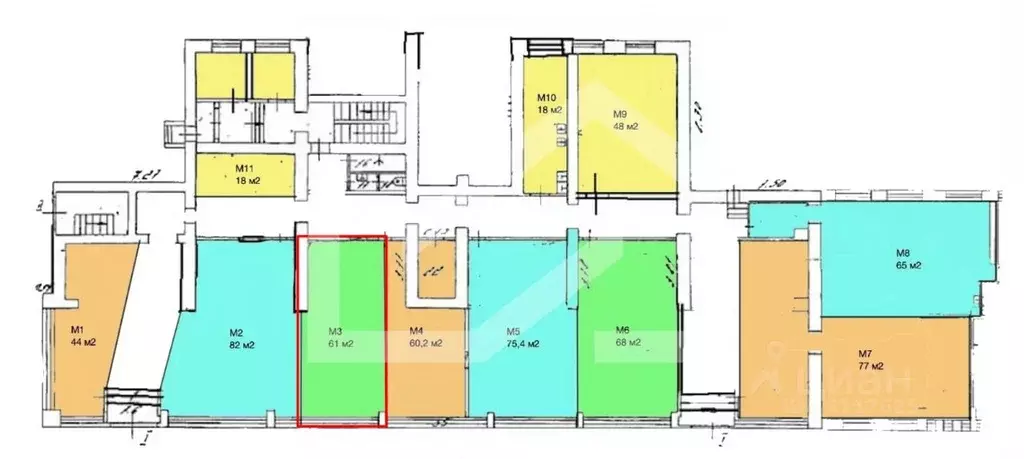
Торговая площадь в Москва просп. Мира, 131К1 (75 м)

1166935. Предлагаем помещение свободного назначения во встроенно-пристроенной части, площадью 75.4 кв. м, расположенное на первом этаже 9-этажного жилого дома. Без комиссии для покупателя.Преимущества объекта:-первая линия проспекта Мира;-шаговая доступность от станции метро ВДНХ (15 минут пешком);-удобная транспортная доступность: 2.8 км до Ярославского шоссе, 3.4 км до СВХ, 5.3 км до ТТК, 6.5 км до Алтуфьевского шоссе;-плотный жилой массив;-развитая инфраструктура района;-высокий автомобильный и пешеходный трафик;-отлично просматривается, находится в легком доступе для потенциальных клиентов;-гибкая планировка, позволяющая адаптировать пространство под различные нужды;-витринное остекление;-возможность размещения вывески;-наземная парковка;-рядом остановка общественного транспорта.Технические параметры объекта:-отдельный вход с улицы.-электрическая мощность: 15 кВт.-высота потолков: 4 м.Свяжитесь с нами для получения дополнительной информации

Читать полностью
    Позвонить Написать
    18 060 000 Р240 000 $ или 203 500
    Агент
    +7 (938) 656-74-88
    Начать чат с агентом
    Похожие предложения
    Торговая площадь в Москва просп. Мира, 131К1 (60 м) - Фото 1
    Торговая площадь в Москва просп. Мира, 131К1 (60 м) - Фото 2
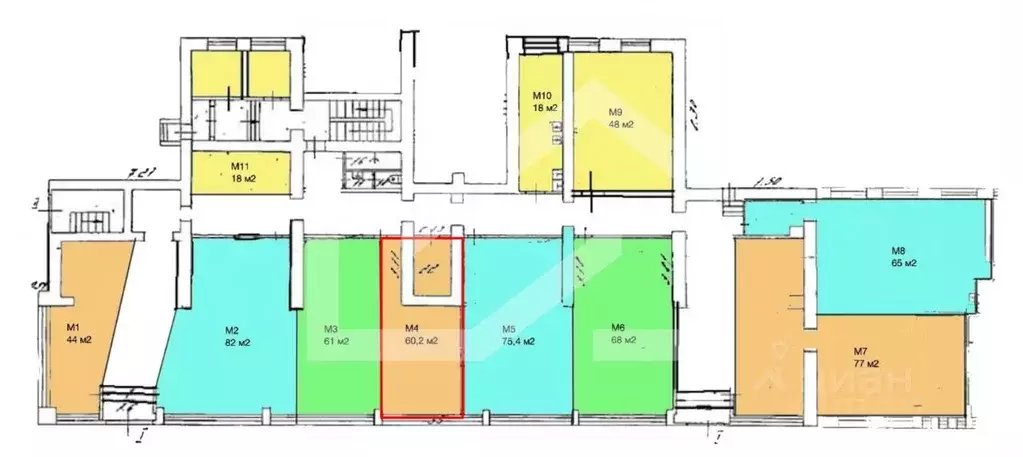
    1166933. Предлагаем помещение свободного назначения во встроенно-пристроенной части, площадью 60.2 кв. м, расположенное на первом этаже 9-этажного жилого дома. Без комиссии для покупателя.Преимущества объекта:-первая линия проспекта Мира;-шаговая доступность...
    • 1/9 эт.
    18 060 000 Р
    Агент
    +7 (938) Показать номер
    Посмотреть контакты
    Торговая площадь в Москва просп. Мира, 131К1 (61 м) - Фото 1
    Торговая площадь в Москва просп. Мира, 131К1 (61 м) - Фото 2
    1166932. Предлагаем помещение свободного назначения во встроенно-пристроенной части, площадью 61 кв. м, расположенное на первом этаже 9-этажного жилого дома. Без комиссии для покупателя.Преимущества объекта:-первая линия проспекта Мира;-шаговая доступность...
    • 1/9 эт.
    18 300 000 Р
    Агент
    +7 (938) Показать номер
    Посмотреть контакты
    Торговая площадь в Москва Новокуркинское ш., 1 (57 м) - Фото 1
    Торговая площадь в Москва Новокуркинское ш., 1 (57 м) - Фото 2
    939401. Предлагаем торговое помещение в торгово-развлекательном центре Парус , площадью 56.8 кв. м, расположенное на первом этаже 7-этажного здания. Без комиссии для покупателя.Преимущества объекта:-на пересечении Куркинского и Новокуркинского шоссе;-первая...
    • 1/7 эт.
    17 000 000 Р
    Агент
    +7 (938) Показать номер
    Посмотреть контакты
    Торговая площадь в Москва Шипиловская ул., 23К2С4 (39 м) - Фото 1
    Торговая площадь в Москва Шипиловская ул., 23К2С4 (39 м) - Фото 2
    Продажа торгового помещения 39,2 м2 с арендатором на ул. Шипиловская , д. 23 корпус 2 строение 4 (10 минут пешком от метро Шипиловская). 2 линия домов.Помещение 39,2 м2, располагается на 1 этаже торгового здания, открытая планировка, отдельный вход с...
    • 1/1 эт.
    17 900 000 Р
    Агент
    +7 (916) Показать номер
    Посмотреть контакты
    Продажа торгового помещения, Дмитровское ш. - Фото 1
    Продажа торгового помещения, Дмитровское ш. - Фото 2
    Продажа торгового помещения, Дмитровское ш. - Фото 3
    Продажа торгового помещения, Дмитровское ш. - Фото 4
    Продажа торгового помещения, Дмитровское ш. - Фото 5
    Продажа торгового помещения, Дмитровское ш. - Фото 6
    Продажа торгового помещения, Дмитровское ш. - Фото 7
    Продажа торгового помещения, Дмитровское ш. - Фото 8
    общая площадь 97.7м², реализуемая площадь 97.7м²

    . Нежилое помещение, 97,7 м | СВАО, р-н Северный, Дмитровское ш., д. 169, корп. 8, этаж 1, помещение 12/1 (XII) | Метро: Физтех (пешком 19 мин., транспортом 19 мин., расстояние 1.22 км) Характеристики: Функциональное назначение: Свободное Тип входа:...
    • 97.7 м²
    • 1/17 эт.
    17 222 000 Р
    PRO
    +7 (922) Показать номер
    Посмотреть контакты

    Не нашли подходящего объявления?

    Оставьте заявку, и наши риэлторы подберут торговое помещение в районе Москвы

    (0)