Россия, Москва, Марк жилой комплекс, к3
103 712 365 Р 1 347 400 $ или 1 152 200

Информация об помещении

1
Этаж

Состояние и оснащение

Количество этажей
18
Развернуть
Агент
+7 (938) 656-74-88
Начать чат с агентом

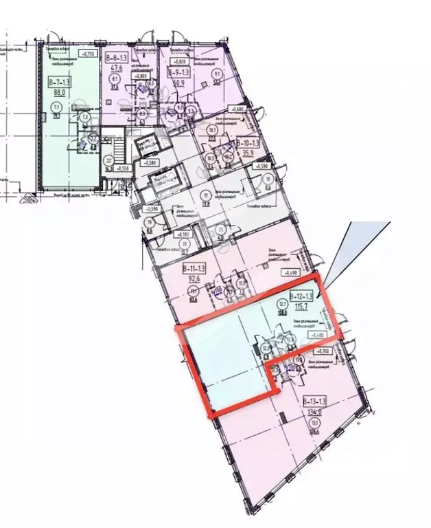
Торговая площадь в Москва Марк жилой комплекс, к3 (127 м)

931271. Предлагаем помещение свободного назначения в ЖК Марк , площадью 126.6 кв. м, расположенное на первом этаже 18-этажного жилого дома. Корпус: 3. Без комиссии для покупателя.Преимущества объекта:-первая линия бульв. Братьев Весенних;-ЖК состоит из 3 корпусов переменной этажности (от 12 до 43 этажей), рассчитанных на 844 квартиры;-19 минут пешком от станции метро ЗИЛ ;-удобная транспортная доступность: 4.7 км до ТТК, 6.7 км до Варшавского шоссе, 7 км до Загородного шоссе;-плотный жилой массив;-отсутствие конкурентной среды, что гарантирует высокий спрос;-высокий автомобильный и пешеходный трафик;-отлично просматривается, находится в легком доступе для потенциальных клиентов;-гибкая планировка, позволяющая адаптировать пространство под различные нужды;-витринное остекление;-возможность размещения вывески;-подземная парковка-рядом остановка общественного транспорта.Технические параметры объекта:-2 отдельные входные группы.-высота потолков: 3 м.Ввод в эксплуатацию: 4 квартал 2027 г.Свяжитесь с нами для получения дополнительной информации

Читать полностью
    Позвонить Написать
    103 712 365 Р1 347 400 $ или 1 152 200
    Агент
    +7 (938) 656-74-88
    Начать чат с агентом
    Похожие предложения
    Торговая площадь в Москва Марк жилой комплекс, к3 (126 м) - Фото 1
    Торговая площадь в Москва Марк жилой комплекс, к3 (126 м) - Фото 2
    931268. Предлагаем помещение свободного назначения в ЖК Марк , площадью 126.3 кв. м, расположенное на первом этаже 18-этажного жилого дома. Корпус: 3. Без комиссии для покупателя.Преимущества объекта:-первая линия бульв. Братьев Весенних;-ЖК состоит...
    • 1/18 эт.
    103 509 911 Р
    Агент
    +7 (938) Показать номер
    Посмотреть контакты
    Торговая площадь в Москва ул. Петра Кончаловского, 7к3 (116 м) - Фото 1
    Торговая площадь в Москва ул. Петра Кончаловского, 7к3 (116 м) - Фото 2
    1110475. Предлагаем помещение свободного назначения в ЖК Shagal , площадью 115.7 кв. м, расположенное на первом этаже стилобата. 4 очередь, 1 этап, корпус 1. Так как корректный адрес отсутствует на Яндекс.Картах, введен ближайший. Без комиссии для покупателя.Преимущества...
    • 1/9 эт.
    94 413 778 Р
    Агент
    +7 (938) Показать номер
    Посмотреть контакты
    Торговая площадь в Москва ул. Архитектора Щусева, 3 (114 м) - Фото 1
    Торговая площадь в Москва ул. Архитектора Щусева, 3 (114 м) - Фото 2
    Предлагается коммерческое помещение общей площадью 114 кв.м в современном жилом комплексе ZILART — одной из самых динамично развивающихся локаций города.Функциональная планировка идеально подойдет для различных форматов бизнеса:- 64 кв.м — торговый зал...
    • 1/14 эт.
    96 900 000 Р
    Агент
    +7 (985) Показать номер
    Посмотреть контакты
    Торговая площадь в Москва Марк жилой комплекс, к2 (125 м) - Фото 1
    Торговая площадь в Москва Марк жилой комплекс, к2 (125 м) - Фото 2
    931057. Предлагаем помещение свободного назначения в ЖК Марк , площадью 124.9 кв. м, расположенное на первом этаже 12-этажного жилого дома. Корпус: 2. Без комиссии для покупателя.Преимущества объекта:-первая линия бульв. Братьев Весенних;-ЖК состоит...
    • 1/12 эт.
    102 562 759 Р
    Агент
    +7 (938) Показать номер
    Посмотреть контакты
    Торговая площадь в Москва Марк жилой комплекс, к2 (121 м) - Фото 1
    Торговая площадь в Москва Марк жилой комплекс, к2 (121 м) - Фото 2
    931063. Предлагаем помещение свободного назначения в ЖК Марк , площадью 120.6 кв. м, расположенное на первом этаже 12-этажного жилого дома. Корпус: 2. Без комиссии для покупателя.Преимущества объекта:-первая линия бульв. Братьев Весенних;-ЖК состоит...
    • 1/12 эт.
    99 625 248 Р
    Агент
    +7 (938) Показать номер
    Посмотреть контакты

    Не нашли подходящего объявления?

    Оставьте заявку, и наши риэлторы подберут торговое помещение в районе Москвы

    (0)