10 050 000 Р 130 600 $ или 111 700

Информация об помещении

1
Этаж

Состояние и оснащение

Количество этажей
11
Развернуть
Агент
+7 (938) 656-74-88
Начать чат с агентом

Торговая площадь в Москва Радужная ул., 18 (21 м)

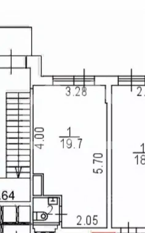
1159494. Предлагаем помещение свободного назначения площадью 21.4 кв. м., расположенное на первом этаже 11-этажного жилого дома. Без комиссии для покупателя.Преимущества объекта:-первая линия;-12 минут пешком от станции метро Свиблово;-густонаселённый жилой массив, перспективный район - вокруг обновляется жилая застройка, растёт трафик и арендные ставки;-сложившееся торговое окружение;-стабильный автомобильный и пешеходный трафик;-объект отлично просматривается, находится в лёгком доступе для клиентов;-открытая планировка;-витринное остекление;-место для вывески;-вытяжка для общепита;-зона разгрузки/погрузки;-коммуникации готовы, мощностей хватит даже для профессионального оборудования;-наземная парковка;-рядом остановки общественного транспорта.Технические параметры объекта:-отдельный вход с улицы;-электрическая мощность: 12 кВт с возможностью увеличения;-высота потолков: 4.5 м (возможность антресоли + полезная площадь).Назначение: под любой вид деятельности (общепит, услуги, торговля, ПВЗ, офис). Свяжитесь с нами для получения дополнительной информации

Читать полностью
    Позвонить Написать
    10 050 000 Р130 600 $ или 111 700
    Агент
    +7 (938) 656-74-88
    Начать чат с агентом
    Похожие предложения
    Торговая площадь в Москва Радужная ул., 18 (21 м) - Фото 1
    Торговая площадь в Москва Радужная ул., 18 (21 м) - Фото 2
    1159494. Предлагаем помещение свободного назначения площадью 21.4 кв. м., расположенное на первом этаже 11-этажного жилого дома. Без комиссии для покупателя.Преимущества объекта:-первая линия;-12 минут пешком от станции метро Свиблово;-густонаселённый...
    • 1/11 эт.
    10 050 000 Р
    Агент
    +7 (938) Показать номер
    Посмотреть контакты
    Торговая площадь в Москва Радужная ул., 18 (21 м) - Фото 1
    Торговая площадь в Москва Радужная ул., 18 (21 м) - Фото 2
    1159494. Предлагаем помещение свободного назначения площадью 21.4 кв. м., расположенное на первом этаже 11-этажного жилого дома. Без комиссии для покупателя.Преимущества объекта:-первая линия;-12 минут пешком от станции метро Свиблово;-густонаселённый...
    • 1/11 эт.
    10 050 000 Р
    Агент
    +7 (938) Показать номер
    Посмотреть контакты
    Помещение свободного назначения 50 м2 - Фото 1
    Помещение свободного назначения 50 м2 - Фото 2
    Помещение свободного назначения 50 м2 - Фото 3
    Помещение свободного назначения 50 м2 - Фото 4
    Помещение свободного назначения 50 м2 - Фото 5
    Помещение свободного назначения 50 м2 - Фото 6
    Помещение свободного назначения 50 м2 - Фото 7
    Помещение свободного назначения 50 м2 - Фото 8
    Помещение свободного назначения 50 м2 - Фото 9
    Помещение свободного назначения 50 м2 - Фото 10
    Помещение свободного назначения 50 м2 - Фото 11
    Помещение свободного назначения 50 м2 - Фото 12
    Помещение свободного назначения 50 м2 - Фото 13
    Помещение свободного назначения 50 м2 - Фото 14
    Помещение свободного назначения 50 м2 - Фото 15
    Помещение свободного назначения 50 м2 - Фото 16
    Помещение свободного назначения 50 м2 - Фото 17
    Помещение свободного назначения 50 м2 - Фото 18
    Помещение свободного назначения 50 м2 - Фото 19
    Помещение свободного назначения 50 м2 - Фото 20
    реализуемая площадь 50м²

    Лот:. Помещение свободного назначения 50 м2. Цоколь. Отдельный вход, одно окно. С/у, душ. Централизованные водопровод, канализация, отопление. Электроснабжение. АГЕНТАМ ПРОСЬБА НЕ ЗВОНИТЬ.
    • 50 м²
    10 000 000 Р
    Агент
    +7 (985) Показать номер
    Посмотреть контакты
    Продажа торгового помещения, м. Войковская, Старопетровский проезд - Фото 1
    Продажа торгового помещения, м. Войковская, Старопетровский проезд - Фото 2
    Продажа торгового помещения, м. Войковская, Старопетровский проезд - Фото 3
    Продажа торгового помещения, м. Войковская, Старопетровский проезд - Фото 4
    Продажа торгового помещения, м. Войковская, Старопетровский проезд - Фото 5
    Продажа торгового помещения, м. Войковская, Старопетровский проезд - Фото 6
    общая площадь 38.5м², реализуемая площадь 38.5м²

    От собственника. Продажа торгового помещения площадью 38,5 м2 на 2-м этаже торгового центра (блок №2/55а на плане). Помещение с качественным ремонтом. Витринное остекление, хорошая визуализация. Подходит под любой вид бизнеса. Высота потолков 3,7 метра. BabyStore...
    • 38.5 м²
    • 2/3 эт.
    10 700 000 Р
    Агент
    +7 (903) Показать номер
    Посмотреть контакты
    Продажа торгового помещения, м. Бутырская, Огородный проезд - Фото 1
    Продажа торгового помещения, м. Бутырская, Огородный проезд - Фото 2
    Продажа торгового помещения, м. Бутырская, Огородный проезд - Фото 3
    Продажа торгового помещения, м. Бутырская, Огородный проезд - Фото 4
    Продажа торгового помещения, м. Бутырская, Огородный проезд - Фото 5
    Продажа торгового помещения, м. Бутырская, Огородный проезд - Фото 6
    Продажа торгового помещения, м. Бутырская, Огородный проезд - Фото 7
    Продажа торгового помещения, м. Бутырская, Огородный проезд - Фото 8
    Продажа торгового помещения, м. Бутырская, Огородный проезд - Фото 9
    Продажа торгового помещения, м. Бутырская, Огородный проезд - Фото 10
    общая площадь 29.6м², реализуемая площадь 29.6м²

    Продажа торгового помещения в Торговом центре, рядом с метро. Помещение общей площадью 29.6 м2 (на плане №40) на 1-ом этаже ТЦ "Зеленый". Высокие потолки 4,5 м, планировка открытая, помещение с ремонтом, 1 вход. Помещение удачно расположено в прикассовой...
    • 29.6 м²
    • 1/2 эт.
    10 256 400 Р
    Агент
    +7 (903) Показать номер
    Посмотреть контакты

    Не нашли подходящего объявления?

    Оставьте заявку, и наши риэлторы подберут торговое помещение в районе Москвы

    (0)