42 000 000 Р 526 800 $ или 455 600

Информация об помещении

1
Этаж

Состояние и оснащение

Количество этажей
9
Развернуть
Агент
+7 (938) 656-74-88
Начать чат с агентом

Торговая площадь в Москва Ленинский просп., 79 (23 м)

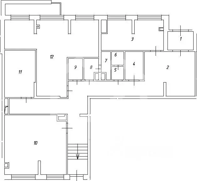
1076180. Предлагаем помещение свободного назначения, площадью 23.2 кв. м, расположенное на первом этаже 9-этажного жилого дома. Без комиссии для покупателя.Преимущества объекта:-первая линия Ленинского проспекта;-50 м от станции метро Вавиловская ;-удобная транспортная доступность: 1 км до проспекта Вернадского, 2 км до ул. Профсоюзная, 3.5 км до Мичуринского проспекта, 5 км до ТТК, 7 км до Садового кольца;-плотный жилой массив;-развитая инфраструктура района;-высокий автомобильный и пешеходный трафик;-отлично просматривается, находится в легком доступе для потенциальных клиентов;-гибкая планировка, позволяющая адаптировать пространство под различные нужды;-возможность размещения вывески;-городская парковка;-напротив помещения остановка общественного транспорта.Технические параметры объекта:-отдельный вход с фасада.-высота потолков: 4 м.-электрическая мощность: 5 кВт.Свяжитесь с нами для получения дополнительной информации

Читать полностью
    Позвонить Написать
    42 000 000 Р526 800 $ или 455 600
    Агент
    +7 (938) 656-74-88
    Начать чат с агентом
    Похожие предложения
    Торговая площадь в Москва Ленинский просп., 79 (23 м) - Фото 1
    Торговая площадь в Москва Ленинский просп., 79 (23 м) - Фото 2
    1076180. Предлагаем помещение свободного назначения, площадью 23.2 кв. м, расположенное на первом этаже 9-этажного жилого дома. Без комиссии для покупателя.Преимущества объекта:-первая линия Ленинского проспекта;-50 м от станции метро Вавиловская ;-удобная...
    • 1/9 эт.
    42 000 000 Р
    Агент
    +7 (938) Показать номер
    Посмотреть контакты
    Торговая площадь в Москва 3-я оч., Шагал жилой комплекс, к2.1 (43 м) - Фото 1
    Торговая площадь в Москва 3-я оч., Шагал жилой комплекс, к2.1 (43 м) - Фото 2
    1134619. Предлагаем помещение свободного назначения в ЖК Shagal , площадью 42,9 кв. м, расположенное на первом этаже 9-этажного жилого дома. 3 очередь, 2 этап, корпус 1. Так как корректный адрес отсутствует на Яндекс.Картах, введен ближайший. Без комиссии...
    • 1/9 эт.
    42 900 000 Р
    Агент
    +7 (938) Показать номер
    Посмотреть контакты
    Торговая площадь в Москва 3-я оч., Шагал жилой комплекс, к10 (53 м) - Фото 1
    Торговая площадь в Москва 3-я оч., Шагал жилой комплекс, к10 (53 м) - Фото 2
    1110362. Предлагаем помещение свободного назначения в ЖК Shagal , площадью 53.1 кв. м, расположенное на первом этаже 22-этажного жилого дома. 3 очередь, 6 этап, корпус 10. Так как корректный адрес отсутствует на Яндекс.Картах, введен ближайший. Без комиссии...
    • 1/22 эт.
    42 399 531 Р
    Агент
    +7 (938) Показать номер
    Посмотреть контакты
    Торговая площадь в Москва Старокрымская ул., 15к2 (176 м) - Фото 1
    Торговая площадь в Москва Старокрымская ул., 15к2 (176 м) - Фото 2
    1105222. Предлагаем к приобретению помещение свободного назначения, площадью 176,4 кв. м., расположенное на первом этаже жилого дома в ЖК Эталон-Сити . Без комиссии для покупателя.Преимущества объекта: -комплекс состоит из 9 корпусов класса бизнес ...
    • 1/26 эт.
    42 512 400 Р
    Агент
    +7 (938) Показать номер
    Посмотреть контакты
    Торговая площадь в Москва Старокрымская ул., 15к2 (177 м) - Фото 1
    Торговая площадь в Москва Старокрымская ул., 15к2 (177 м) - Фото 2
    1105224. Предлагаем к приобретению помещение свободного назначения, площадью 176,5 кв. м., расположенное на первом этаже жилого дома в ЖК Эталон-Сити . Без комиссии для покупателя.Преимущества объекта: -комплекс состоит из 9 корпусов класса бизнес ...
    • 1/26 эт.
    42 536 500 Р
    Агент
    +7 (938) Показать номер
    Посмотреть контакты

    Не нашли подходящего объявления?

    Оставьте заявку, и наши риэлторы подберут торговое помещение в районе Москвы

    (0)