37 000 000 Р 455 100 $ или 396 000

Информация об помещении

1
Этаж

Состояние и оснащение

Количество этажей
17
Развернуть
Агент
+7 (938) 656-74-88
Начать чат с агентом

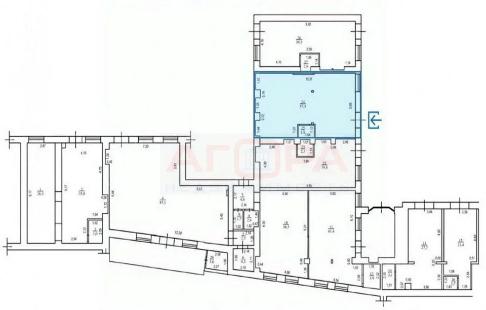
Торговая площадь в Москва ул. Вилиса Лациса, 38к2 (162 м)

1060851. Предлагаем помещение свободного назначения, площадью 161.8 кв. м., расположенное на первом этаже 17-этажного жилого дома. Без комиссии для покупателя.Преимущества объекта:-6 минут на автомобиле от станции метро Планерная ;-плотный жилой массив;-развитая инфраструктура;-высокий автомобильный и пешеходный трафик;-находится в легком доступе для потенциальных клиентов;-гибкая планировка, позволяющая адаптировать пространство под различные нужды;-витринное остекление;-возможность размещения вывески;-вытяжка для общепита;-зона разгрузки/погрузки;-наземная парковка;-рядом остановка общественного транспорта.Технические параметры объекта:-2 отдельные входные группы;-электрическая мощность: 44 кВт;-высота потолков: 4.4 м.Свяжитесь с нами для получения дополнительной информации

Читать полностью
    Позвонить Написать
    37 000 000 Р455 100 $ или 396 000
    Агент
    +7 (938) 656-74-88
    Начать чат с агентом
    Похожие предложения
    Продажа торгового помещения, м. Новослободская, ул. Долгоруковская - Фото 1
    Продажа торгового помещения, м. Новослободская, ул. Долгоруковская - Фото 2
    Продажа торгового помещения, м. Новослободская, ул. Долгоруковская - Фото 3
    Продажа торгового помещения, м. Новослободская, ул. Долгоруковская - Фото 4
    Продажа торгового помещения, м. Новослободская, ул. Долгоруковская - Фото 5
    Продажа торгового помещения, м. Новослободская, ул. Долгоруковская - Фото 6
    общая площадь 59.1м², реализуемая площадь 59.1м²

    От собственника. Арендный бизнес в торговом помещении, которое расположено на 1-м этаже 5-ти этажного административного здания, в ЦАО, в 5 минутах пешком от метро Новослободская. Площадь помещения 59,1 м2 (блок 6 на плане). В помещении есть отдельный...
    • 59.1 м²
    • 1/5 эт.
    37 233 000 Р
    Агент
    +7 (903) Показать номер
    Посмотреть контакты
    Продажа торгового помещения, м. Окская, ул. Михайлова - Фото 1
    Продажа торгового помещения, м. Окская, ул. Михайлова - Фото 2
    Продажа торгового помещения, м. Окская, ул. Михайлова - Фото 3
    общая площадь 87.7м², реализуемая площадь 87.7м²

    Продажа торгового помещения с сетевым арендатором 880 метров от станции метро Окская, ЮВАО, район Рязанский Площадь - 87,7м2. 1 этаж 33-х этажного жилого монолитно-панельного дома 2021 года постройки. Планировка открытая, все городские коммуникации, отдельный...
    • 87.7 м²
    • 1/33 эт.
    36 000 000 Р
    Агент
    +7 (903) Показать номер
    Посмотреть контакты
    Продажа торгового помещения, ул. Константина Федина - Фото 1
    Продажа торгового помещения, ул. Константина Федина - Фото 2
    Продажа торгового помещения, ул. Константина Федина - Фото 3
    Продажа торгового помещения, ул. Константина Федина - Фото 4
    Продажа торгового помещения, ул. Константина Федина - Фото 5
    Продажа торгового помещения, ул. Константина Федина - Фото 6
    Продажа торгового помещения, ул. Константина Федина - Фото 7
    Продажа торгового помещения, ул. Константина Федина - Фото 8
    общая площадь 93.4м², реализуемая площадь 93.4м²

    Продажа торгового помещения, ВАО, район Северное Измайлово 560 метров от станции метро Щелковская. Площадь 93,4 м3. 1-й этаж 14-ти этажного монолитного жилого дома 2022 года постройки. Отдельный вход с улицы, витрина, зальная планировка. Все городские...
    • 93.4 м²
    • 1/24 эт.
    38 000 000 Р
    Агент
    +7 (903) Показать номер
    Посмотреть контакты
    Продажа торгового помещения, м. Алтуфьево, ул. Абрамцевская - Фото 1
    Продажа торгового помещения, м. Алтуфьево, ул. Абрамцевская - Фото 2
    Продажа торгового помещения, м. Алтуфьево, ул. Абрамцевская - Фото 3
    Продажа торгового помещения, м. Алтуфьево, ул. Абрамцевская - Фото 4
    общая площадь 103.3м², реализуемая площадь 103.3м²

    Продажа торгового помещения. СВАО, станция метро Алтуфьево Площадь -103,3 кв.м. Полностью на 1-м этаже, планировка зальная, 2 отдельных входа с улицы, высота потолка 3,5 м, 5 мокрых точек, все городские коммуникации, электрическая мощность 25 кВт....
    • 103.3 м²
    • 1/12 эт.
    36 000 000 Р
    Агент
    +7 (903) Показать номер
    Посмотреть контакты
    Продажа торгового помещения, м. Водный стадион, Конаковский проезд - Фото 1
    Продажа торгового помещения, м. Водный стадион, Конаковский проезд - Фото 2
    Продажа торгового помещения, м. Водный стадион, Конаковский проезд - Фото 3
    Продажа торгового помещения, м. Водный стадион, Конаковский проезд - Фото 4
    Продажа торгового помещения, м. Водный стадион, Конаковский проезд - Фото 5
    Продажа торгового помещения, м. Водный стадион, Конаковский проезд - Фото 6
    Продажа торгового помещения, м. Водный стадион, Конаковский проезд - Фото 7
    Продажа торгового помещения, м. Водный стадион, Конаковский проезд - Фото 8
    общая площадь 147.8м², реализуемая площадь 147.8м²

    670 метров от станции метро Водный стадион! Продажа помещения. Площадь 147,8м2. 1-й этаж жилого 16-ти этажного дома. Окна, отдельный вход с улицы. Все городские коммуникации. электрическая мощность 25кВт. Планировка зальная Сдано в аренду по ДДА. МАП...
    • 147.8 м²
    • 1/16 эт.
    38 000 000 Р
    Агент
    +7 (903) Показать номер
    Посмотреть контакты

    Не нашли подходящего объявления?

    Оставьте заявку, и наши риэлторы подберут торговое помещение в районе Москвы

    (0)