85 000 000 Р 1 047 500 $ или 909 800

Информация об помещении

цоколь
Этаж

Состояние и оснащение

Количество этажей
17
Развернуть
Агент
+7 (938) 656-74-88
Начать чат с агентом

Торговая площадь в Москва Братеевская ул., 16К1 (948 м)

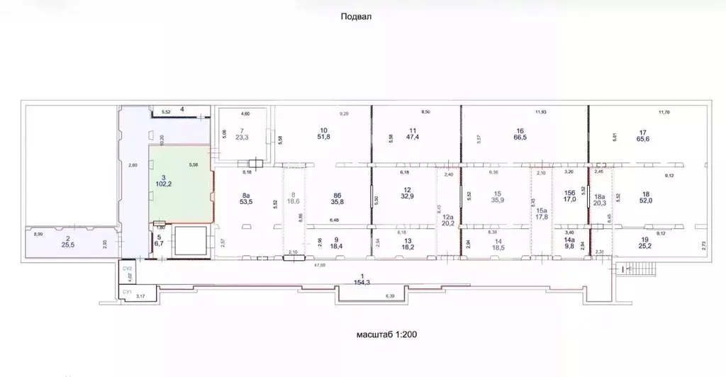
1150742. Предлагаем к приобретению помещения свободного назначения, площадью 948 кв. м. (поделены на два кадастра), расположенные в подвальном этаже 17-этажного жилого дома. Без комиссии для покупателя.Преимущества объекта:-90 метров от станции метро Алма-Атинская;-плотный жилой массив;-развитая инфраструктура в окружении;-стабильный автомобильный и пешеходный трафик;-гибкая планировка, позволяющая адаптировать пространство под различные нужды;-место для вывески;-промышленная ПВ вентиляция с подогревом воздуха и запасом х4 по мощности;-ХВС/КНС/тепло;-нет ограничений по мокрым точкам;-парковка на улице;-рядом остановки общественного транспорта;-есть возможность установить подъемник для разгрузки/погрузки;-есть подъезд грузового транспорта;-есть второй пожарный выход из помещения.Технические параметры объекта:-2 презентабельные комфортные входные группы;-полезная площадь помещений (за минусом теплопункта и активной вентиляции) ~850 кв. м.;-электрическая мощность: 80 кВт;-высота потолков: 2,8 м.Помещение идеально подходит для легкого производства, для сферы услуг, спортивных и оздоровительных предприятий. Возможен торг или оплата с рассрочкой. Подходит под вариант с ипотекой. Свяжитесь с нами для получения дополнительной информации

Читать полностью
    Позвонить Написать
    85 000 000 Р1 047 500 $ или 909 800
    Агент
    +7 (938) 656-74-88
    Начать чат с агентом
    Похожие предложения
    Продажа торгового помещения, м. Сокол, Ленинградский пр-кт. - Фото 1
    Продажа торгового помещения, м. Сокол, Ленинградский пр-кт. - Фото 2
    Продажа торгового помещения, м. Сокол, Ленинградский пр-кт. - Фото 3
    общая площадь 105.4м², реализуемая площадь 105.4м²

    1 -я линия домов Ленинградского проспекта. Предлагается к продаже помещение свободного назначения в прямой видимости от выхода метро Сокол. Общая площадь 105,4 кв.м, состоит из 1 этажа и антресоли (1 этаж 62,8 кв.м, антресоль 42,6 кв.м), отдельный вход...
    • 105.4 м²
    • 1/9 эт.
    84 000 000 Р
    Агент
    +7 (903) Показать номер
    Посмотреть контакты
    Продажа торгового помещения, м. Кантемировская, Кавказский б-р. - Фото 1
    Продажа торгового помещения, м. Кантемировская, Кавказский б-р. - Фото 2
    Продажа торгового помещения, м. Кантемировская, Кавказский б-р. - Фото 3
    Продажа торгового помещения, м. Кантемировская, Кавказский б-р. - Фото 4
    Продажа торгового помещения, м. Кантемировская, Кавказский б-р. - Фото 5
    Продажа торгового помещения, м. Кантемировская, Кавказский б-р. - Фото 6
    общая площадь 218.3м², реализуемая площадь 218.3м²

    м. Кантемировская, 20 минут. Продажа торгового помещения. Площадь - 218,3 кв.м. Помещение расположено на 1 этаже многоквартирного нового большого ЖК от ПИК (частично сдан) Первая линия основного пешеходного бульвара, через который идет весь трафик к Кавказскому...
    • 218.3 м²
    • 1/33 эт.
    84 900 000 Р
    PRO
    +7 (903) Показать номер
    Посмотреть контакты
    Продажа торгового помещения, м. Люблино, ул. Краснодарская - Фото 1
    Продажа торгового помещения, м. Люблино, ул. Краснодарская - Фото 2
    Продажа торгового помещения, м. Люблино, ул. Краснодарская - Фото 3
    общая площадь 120.4м², реализуемая площадь 120.4м²

    Помещение находится в 5-ти минутах от метро Люблино. Густонаселенный спальный массив. Сверхинтенсивный пешеходный трафик. Помещение общей площадью 120,4 кв.м (номер 15 на плане) расположено на 1-м этаже капитального здания 1977 года постройки. 1-я фасадная...
    • 120.4 м²
    • 1/1 эт.
    84 000 000 Р
    Агент
    +7 (903) Показать номер
    Посмотреть контакты
    м. Аэропорт, Ленинградский проспект, 209 м2, Торговое помещение (ном. ... - Фото 1
    м. Аэропорт, Ленинградский проспект, 209 м2, Торговое помещение (ном. ... - Фото 2
    м. Аэропорт, Ленинградский проспект, 209 м2, Торговое помещение (ном. ... - Фото 3
    м. Аэропорт, Ленинградский проспект, 209 м2, Торговое помещение (ном. ... - Фото 4
    м. Аэропорт, Ленинградский проспект, 209 м2, Торговое помещение (ном. ... - Фото 5
    м. Аэропорт, Ленинградский проспект, 209 м2, Торговое помещение (ном. ... - Фото 6
    м. Аэропорт, Ленинградский проспект, 209 м2, Торговое помещение (ном. ... - Фото 7
    м. Аэропорт, Ленинградский проспект, 209 м2, Торговое помещение (ном. ... - Фото 8
    м. Аэропорт, Ленинградский проспект, 209 м2, Торговое помещение (ном. ... - Фото 9
    м. Аэропорт, Ленинградский проспект, 209 м2, Торговое помещение (ном. ... - Фото 10
    общая площадь 209м², реализуемая площадь 209м²

    Помещение свободного назначения площадью 209 м2 (street retail), расположенное на первой линии домов, в одной минуте пешком от м. Аэропорт. Выполнена качественная отделка. Установлены стеклопакеты. Вход со стороны Ленинградского проспекта. Возможность...
    • 209 м²
    • 4 этажа
    84 990 000 Р
    Агент
    +7 (905) Показать номер
    Агентство
    Телус
    Посмотреть контакты
    м. Свиблово, ул. Летчика Бабушкина 572 м2, "Продажа здания" (ном. ... - Фото 1
    м. Свиблово, ул. Летчика Бабушкина 572 м2, "Продажа здания" (ном. ... - Фото 2
    м. Свиблово, ул. Летчика Бабушкина 572 м2, "Продажа здания" (ном. ... - Фото 3
    м. Свиблово, ул. Летчика Бабушкина 572 м2, "Продажа здания" (ном. ... - Фото 4
    м. Свиблово, ул. Летчика Бабушкина 572 м2, "Продажа здания" (ном. ... - Фото 5
    м. Свиблово, ул. Летчика Бабушкина 572 м2, "Продажа здания" (ном. ... - Фото 6
    м. Свиблово, ул. Летчика Бабушкина 572 м2, "Продажа здания" (ном. ... - Фото 7
    м. Свиблово, ул. Летчика Бабушкина 572 м2, "Продажа здания" (ном. ... - Фото 8
    м. Свиблово, ул. Летчика Бабушкина 572 м2, "Продажа здания" (ном. ... - Фото 9
    м. Свиблово, ул. Летчика Бабушкина 572 м2, "Продажа здания" (ном. ... - Фото 10
    м. Свиблово, ул. Летчика Бабушкина 572 м2, "Продажа здания" (ном. ... - Фото 11
    м. Свиблово, ул. Летчика Бабушкина 572 м2, "Продажа здания" (ном. ... - Фото 12
    м. Свиблово, ул. Летчика Бабушкина 572 м2, "Продажа здания" (ном. ... - Фото 13
    общая площадь 572м², реализуемая площадь 572м²

    На продажу предлагается административное здание в пешей доступности от станции метро Свиблово не более 15 минут. В помещениях выполнена офисная отделка, смешанная планировка, центральные коммуникации. маленький подвал и два этажа. В помещениях выполнена...
    • 572 м²
    • 2 этажа
    84 000 000 Р
    Агент
    +7 (965) Показать номер
    Агентство
    Телус
    Посмотреть контакты

    Не нашли подходящего объявления?

    Оставьте заявку, и наши риэлторы подберут торговое помещение в районе Москвы

    (0)