18 127 000 Р 223 000 $ или 194 000

Информация об помещении

1
Этаж

Состояние и оснащение

Количество этажей
11
Развернуть
Агент
+7 (916) 603-02-04
Начать чат с агентом

Торговая площадь в Москва 3-я Гражданская ул., 21 (42 м)

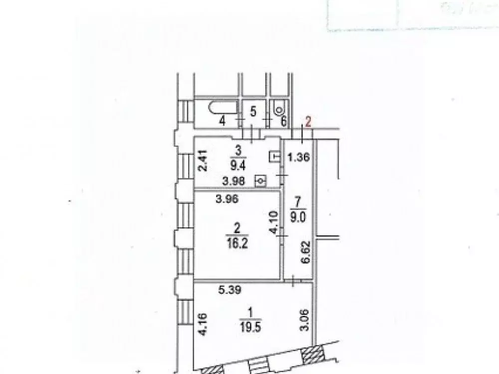
Продажа торгового помещения 41,6 м2 на ул. 3-я Гражданская, д. 21 (15 минут пешком от метро Бульвар Рокоссовского). 1 линия домов.Помещение 41,6 м2, располагается на 1 этаже, открытая планировка, высота потолка 6 м, окна по фасаду. Электрическая мощность по запросу. Один вход. Парковка перед фасадом. Место для размещения рекламы.Жилой комплекс Селф бизнес класса. Дом на 487 квартиры сдан в 2024 году. Идет активное заселение. Есть подземный паркинг. Комплекс расположен в историческом районе Москвы Богородское. В непосредственной близости остановка общественного транспорта и пешая доступность от метро Преображенская площадь/Бульвар Рокоссовского. Рядом парки Сокольники, Измайлово, Лосиный остров.Стоимость продажи. Без комиссии.

Читать полностью
    Позвонить Написать
    18 127 000 Р223 000 $ или 194 000
    Агент
    +7 (916) 603-02-04
    Начать чат с агентом
    Похожие предложения
    Торговая площадь (44 м) - Фото 1
    Торговая площадь (44 м) - Фото 2
    Продажа торгового помещения с арендатором «Груминг салон площадью 44 масположенного по адресу: Москва, Открытое шоссе, 30 ( 13 минут на транспорте от метро Щёлковская). Помещение располагается на 1-м этаже первой линии жилого комплекса....
    • 1/25 эт.
    17 000 000 Р
    Агент
    +7 (926) Показать номер
    Посмотреть контакты
    Продажа торгового помещения, м. Таганская, Александра Солженицына ул - Фото 1
    Продажа торгового помещения, м. Таганская, Александра Солженицына ул - Фото 2
    Продажа торгового помещения, м. Таганская, Александра Солженицына ул - Фото 3
    Продажа торгового помещения, м. Таганская, Александра Солженицына ул - Фото 4
    Продажа торгового помещения, м. Таганская, Александра Солженицына ул - Фото 5
    Продажа торгового помещения, м. Таганская, Александра Солженицына ул - Фото 6
    Продажа торгового помещения, м. Таганская, Александра Солженицына ул - Фото 7
    Продажа торгового помещения, м. Таганская, Александра Солженицына ул - Фото 8
    Продажа торгового помещения, м. Таганская, Александра Солженицына ул - Фото 9
    общая площадь 53.4м², реализуемая площадь 53.4м²

    Продажа торгового помещения в историческом центре Москвы. Площадь 53,42 м2 (блок на плане Р-0.4), цокольный этаж 5-ти этажного клубного БЦ в ЦАО, район Таганский, в 10 минутах пешком от метро Таганская и Марксистская. Помещение расположено в торговой...
    • 53.4 м²
    • 5 этажей
    18 818 592 Р
    Агент
    +7 (903) Показать номер
    Посмотреть контакты
    Торговая площадь в Москва Ленинградское ш., 228к7 (83 м) - Фото 1
    Торговая площадь в Москва Ленинградское ш., 228к7 (83 м) - Фото 2
    Лот 156114.Предлагается в продажу торговое помещение в монолитном 15и этажном жилом доме, расположенном по адресу: Москва, Ленинградское шоссе, 228к7 (ЖК 1-й Ленинградский , корпус 4) Район Молжаниново относится к Северному округу столицы и расположен...
    • 1/15 эт.
    18 885 400 Р
    Агент
    +7 (916) Показать номер
    Посмотреть контакты
    Торговая площадь в Москва 1-й Измайловский жилой комплекс, к2 (33 м) - Фото 1
    Торговая площадь в Москва 1-й Измайловский жилой комплекс, к2 (33 м) - Фото 2
    Лот 160017.Предлагается в продажу торговое помещение по адресу: г. Москва, Монтажная ул., Амурская(ЖК 1-й Измайловский, корп.2)ЖК 1й Измайловскийасположен на востоке Москвы в благоустроенном районе между двумя крупнейшими лесопарками. 3 линии метро и...
    • 1/32 эт.
    17 908 000 Р
    Агент
    +7 (916) Показать номер
    Посмотреть контакты
    Торговая площадь в Москва Больничный пер., 2 (60 м) - Фото 1
    Предложение на продажу 63592.Парковка: общественная.Предлагается помещение площадью 59,7 кв.м. расположено на 1-м этаже 3-х этажного жилого дома. Находится в районе c развитой инфраструктурой. B близи нaходятся cтaнции Проспeкт Mиpа и Доcтоeвcкая...
    • 1/3 эт.
    18 000 000 Р
    Агент
    +7 (989) Показать номер
    Посмотреть контакты

    Не нашли подходящего объявления?

    Оставьте заявку, и наши риэлторы подберут торговое помещение в районе Москвы

    (0)