42 300 000 Р 524 000 $ или 450 900

Информация об помещении

1
Этаж

Состояние и оснащение

Количество этажей
17
Развернуть
Агент
+7 (916) 728-17-33
Начать чат с агентом

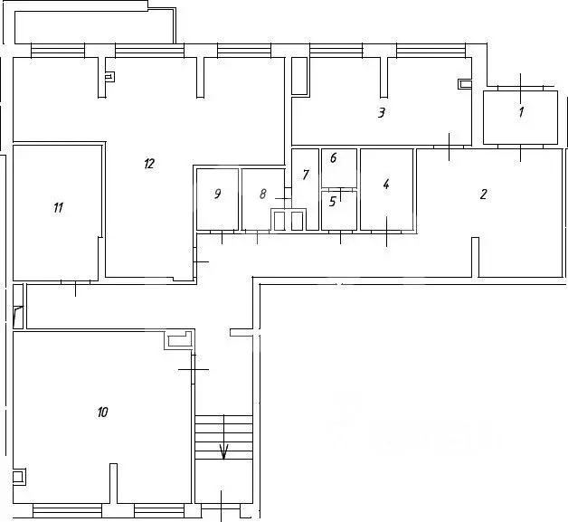
Торговая площадь в Москва ул. Плеханова, 22 (120 м)

НОВЫЙ ПОЛНОСТЬЮ ЗАСЕЛЕННЫЙ ДОМ В АКТИВНО ЗАСТРАИВАЕМОМ ЖИЛОМ РАЙОНЕ НЕЖИЛОЕ ПОМЕЩЕНИЕ С ДВУМЯ ОТДЕЛЬНЫМИ ВХОДАМИ С ОТКРЫТОЙ ТЕРРИТОРИИ, ДОРОГИМ РЕМОНТОМ И СТАБИЛЬНЫМИ АРЕНДАТОРАМИ С ОГРОМНЫМ ПОТЕНЦИАЛОМ РОСТА ЦЕНЫ И СТАВКИ АРЕНДЫ Продам действующий ( ) готовый арендный бизнес с надежными и стабильными арендаторами, которые работают уже долгие годы, стабильно и вовремя платят аренду и индексируются каждый год Новый заселенный на 100 жилой дом на 300 квартир, вокруг большой жилой массив без нежилых помещений, а также ведется активное строительство новых высотных домов (в шаговой доступности), что уже через год приведет к росту плотности населения и ставок аренды и востребованности нежилых помещений, а следовательно, и цен на них Соседний строящийся высотный дом будет сдан уже в начале 2027 года, жители которого также станут клиентами ваших арендаторов Помещение арендуют: магазин LAMODA (договор с осени 2023 года, срок ДА - 3 года)кофейня Good Coffee (договор с лета 2024 года, срок ДА. -11 месяцев)салон красоты Про Красоту (договор с лета 2025 года, срок ДА - 11 месяцев)Все арендаторы стабильно и без задержек вносят арендные платежи, проводятся ежегодные индексации арендной платы Три арендатора с короткими договорами всегда снижают риски инвестора и повышают доходность вашего арендной бизнеса, так как вы всегда можете пересмотреть арендную ставку при росте спроса на торговые площади или провести ротацию любого арендатора без потери всего арендного дохода Вакантных площадей в этом и соседних новых домах - НЕТ, все помещения стабильно сданы в аренду, а любая вакансия закрывается менее, чем за месяц Соседние помещения занимают пекарня Буханка, Красное и Белое, Wildberries, СДЭК, салон маникюра и педикюра. В соседних домах работают супермаркет Дикси, Улыбка Радуги, аптеки Горздрав и ЗдравСити и другие сетевые операторы. 2 входа с открытой территории, открытая зальная планировка, все коммуникации новые, свободное и торговое назначение, потолки 5 метров, вытяжка на крышу, электрическая мощность - 30 кВт Помещение будет стабильно приносить вам пассивный арендный доход долгие годы и вырастет в цене по мере застройки и развития района и увеличения арендного потока от арендатора Спешите купить ликвидное помещение, которое будет приносить вам стабильный арендный доход долгие годы и постоянно расти в цене Цена метра сейчас - всего 350 000 Звоните, собственник - физическое лицо Чистые документы, без залогов и обременений

Читать полностью
    Позвонить Написать
    42 300 000 Р524 000 $ или 450 900
    Агент
    +7 (916) 728-17-33
    Начать чат с агентом
    Похожие предложения
    Торговая площадь в Москва Старокрымская ул., 15к2 (176 м) - Фото 1
    Торговая площадь в Москва Старокрымская ул., 15к2 (176 м) - Фото 2
    1105222. Предлагаем к приобретению помещение свободного назначения, площадью 176,4 кв. м., расположенное на первом этаже жилого дома в ЖК Эталон-Сити . Без комиссии для покупателя.Преимущества объекта: -комплекс состоит из 9 корпусов класса бизнес ...
    • 1/26 эт.
    42 512 400 Р
    Агент
    +7 (938) Показать номер
    Посмотреть контакты
    Торговая площадь в Москва Старокрымская ул., 15к2 (177 м) - Фото 1
    Торговая площадь в Москва Старокрымская ул., 15к2 (177 м) - Фото 2
    1105224. Предлагаем к приобретению помещение свободного назначения, площадью 176,5 кв. м., расположенное на первом этаже жилого дома в ЖК Эталон-Сити . Без комиссии для покупателя.Преимущества объекта: -комплекс состоит из 9 корпусов класса бизнес ...
    • 1/26 эт.
    42 536 500 Р
    Агент
    +7 (938) Показать номер
    Посмотреть контакты
    Торговая площадь в Москва Амурская ул., 1/2/1 (68 м) - Фото 1
    Торговая площадь в Москва Амурская ул., 1/2/1 (68 м) - Фото 2
    Продажа торгового помещения площадью 68,4 м2 с арендатором Ароматный мир на ул. Амурская, д.1/2/2 (7 минут пешком от м. Локомотив / Черкизовская ). Помещение 68,4 масполагается на 1 этаже, открытая планировка, отдельный вход с фасада, высота потолка...
    • 1/24 эт.
    41 500 000 Р
    Агент
    +7 (916) Показать номер
    Посмотреть контакты
    Продажа торгового помещения, м. Алексеевская, Мира пр-кт. - Фото 1
    Продажа торгового помещения, м. Алексеевская, Мира пр-кт. - Фото 2
    Продажа торгового помещения, м. Алексеевская, Мира пр-кт. - Фото 3
    Продажа торгового помещения, м. Алексеевская, Мира пр-кт. - Фото 4
    Продажа торгового помещения, м. Алексеевская, Мира пр-кт. - Фото 5
    Продажа торгового помещения, м. Алексеевская, Мира пр-кт. - Фото 6
    общая площадь 12.8м², реализуемая площадь 12.8м²

    Продажа торгового помещения на 1-й линии проспекта Мира. Street-retail, от метро Алексеевская 1 минута пешком. Помещение площадью 12,8 кв.м (блок №1 на плане) расположено на 1-м этаже жилого 9-ти этажного дома. Планировка — открытая, все городские инженерные...
    • 12.8 м²
    • 1/9 эт.
    41 400 000 Р
    Агент
    +7 (903) Показать номер
    Посмотреть контакты
    Продажа торгового помещения, м. Бутырская, Огородный проезд - Фото 1
    Продажа торгового помещения, м. Бутырская, Огородный проезд - Фото 2
    Продажа торгового помещения, м. Бутырская, Огородный проезд - Фото 3
    Продажа торгового помещения, м. Бутырская, Огородный проезд - Фото 4
    Продажа торгового помещения, м. Бутырская, Огородный проезд - Фото 5
    Продажа торгового помещения, м. Бутырская, Огородный проезд - Фото 6
    Продажа торгового помещения, м. Бутырская, Огородный проезд - Фото 7
    Продажа торгового помещения, м. Бутырская, Огородный проезд - Фото 8
    общая площадь 153.2м², реализуемая площадь 153.2м²

    Арендный бизнес. Продажа торгового помещения в Торговом центре, рядом с метро. Помещение общей площадью 153,2 м2 (на плане – объединение блоков 54+55) на 1-ом этаже ТЦ "Зеленый". Высота потолков 4,5 м, планировка открытая, помещение с ремонтом. Помещение...
    • 153.2 м²
    • 1/2 эт.
    42 021 940 Р
    Агент
    +7 (903) Показать номер
    Посмотреть контакты

    Не нашли подходящего объявления?

    Оставьте заявку, и наши риэлторы подберут торговое помещение в районе Москвы

    (0)