Россия, Москва, Скандинавия жилой комплекс, 18.1.2
49 438 533 Р 625 300 $ или 541 000

Информация об помещении

1
Этаж

Состояние и оснащение

Количество этажей
14
Развернуть
Агент
+7 (938) 656-74-88
Начать чат с агентом

Торговая площадь в Москва Скандинавия жилой комплекс, 18.1.2 (148 м)

941402-f . Предлагаем помещение свободного назначения формата street-retail в ЖК Скандинавия , корпус 18.1.2, площадью 147.9 кв. м, расположенное на первом этаже 14-этажного жилого дома. Без комиссии для покупателя.Преимущества объекта:-ЖК состоит из 99 корпусов переменной этажности (от 9 до 19 этажей), рассчитанных на 20 073 квартир;-шаговая доступность от станции метро Потапово (17 минут пешком);-удобная транспортная доступность: 710 м до Солнцево-Бутово-Варшавское шоссе, 5.8 км до Калужского и Филатовского шоссе, 6.5 км до Варшавского шоссе;-плотный жилой массив;-развитая инфраструктура района;-высокий автомобильный и пешеходный трафик;-отлично просматривается, находится в легком доступе для потенциальных клиентов;-гибкая планировка, позволяющая адаптировать пространство под различные нужды;-витринное остекление;-возможность размещения вывески;-наземная парковка;-рядом остановка общественного транспорта.Технические параметры объекта:-отдельный вход с фасада.-высота потолков: 4.6 м.-электрическая мощность: 44 кВт.Ввод в эксплуатацию: IV квартал 2026 года.Свяжитесь с нами для получения дополнительной информации

Читать полностью
    Позвонить Написать
    49 438 533 Р625 300 $ или 541 000
    Агент
    +7 (938) 656-74-88
    Начать чат с агентом
    Похожие предложения
    Торговая площадь в Москва Скандинавия жилой комплекс, 25.3 (140 м) - Фото 1
    Торговая площадь в Москва Скандинавия жилой комплекс, 25.3 (140 м) - Фото 2
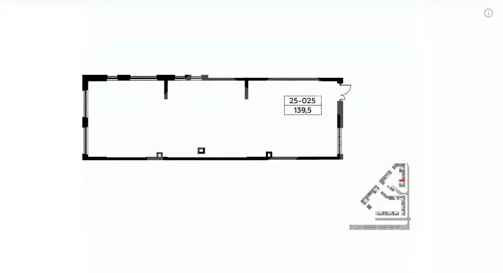
    941391. Предлагаем к приобретению помещение свободного назначения, площадью 139,5 кв. м, расположенное на первом этаже жилого дома в ЖК Скандинавия . Корпус 25.3. Без комиссии для покупателя. Преимущества объекта:-ЖК состоит из корпусов переменной этажности...
    • 1/17 эт.
    49 720 590 Р
    Агент
    +7 (938) Показать номер
    Посмотреть контакты
    Торговая площадь в Москва Скандинавия жилой комплекс, 18.1.3 (150 м) - Фото 1
    Торговая площадь в Москва Скандинавия жилой комплекс, 18.1.3 (150 м) - Фото 2
    745412-f . Предлагаем к приобретению помещение свободного назначения формата Street Retail, площадью 149,9 кв. м, расположенное на первом этаже жилого дома в ЖК Скандинавия . Корпус 18.1.3. Без комиссии для покупателя. Преимущества объекта:-ЖК состоит...
    • 1/19 эт.
    48 375 728 Р
    Агент
    +7 (938) Показать номер
    Посмотреть контакты
    Продажа торгового помещения, м. Октябрьское поле, ул. Маршала Бирюзова - Фото 1
    Продажа торгового помещения, м. Октябрьское поле, ул. Маршала Бирюзова - Фото 2
    Продажа торгового помещения, м. Октябрьское поле, ул. Маршала Бирюзова - Фото 3
    Продажа торгового помещения, м. Октябрьское поле, ул. Маршала Бирюзова - Фото 4
    Продажа торгового помещения, м. Октябрьское поле, ул. Маршала Бирюзова - Фото 5
    Продажа торгового помещения, м. Октябрьское поле, ул. Маршала Бирюзова - Фото 6
    Продажа торгового помещения, м. Октябрьское поле, ул. Маршала Бирюзова - Фото 7
    общая площадь 17.6м², реализуемая площадь 17.6м²

    Продажа торгового помещения на выходе из метро Октябрьское Поле. 210 метров, прямая видимость Площадь - 17,6 м2, отдельный вход с улицы, открытая планировка, городские коммуникации, высота потолка - 2,8 м. Ограничений по использованию нет. Размещение...
    • 17.6 м²
    • 1/1 эт.
    48 840 000 Р
    Агент
    +7 (903) Показать номер
    Посмотреть контакты
    Продажа торгового помещения, м. Зюзино, ул. Каховка - Фото 1
    Продажа торгового помещения, м. Зюзино, ул. Каховка - Фото 2
    Продажа торгового помещения, м. Зюзино, ул. Каховка - Фото 3
    Продажа торгового помещения, м. Зюзино, ул. Каховка - Фото 4
    Продажа торгового помещения, м. Зюзино, ул. Каховка - Фото 5
    общая площадь 112м², реализуемая площадь 112м²

    Продажа торгового помещения! 250 метров от станции метро Зюзино. ЮЗАО. Площадь - 112 м2, 1 этаж 19-ти этажного монолитного жилого дома 2021 года постройки. Отдельный вход с улицы, витрины, городские коммуникации, электрическая мощность 22 кВт. Планировка...
    • 112 м²
    • 1/19 эт.
    49 000 000 Р
    Агент
    +7 (903) Показать номер
    Посмотреть контакты
    Продажа торгового помещения, м. Баррикадная, Большая Грузинская ул - Фото 1
    Продажа торгового помещения, м. Баррикадная, Большая Грузинская ул - Фото 2
    Продажа торгового помещения, м. Баррикадная, Большая Грузинская ул - Фото 3
    Продажа торгового помещения, м. Баррикадная, Большая Грузинская ул - Фото 4
    общая площадь 90.7м², реализуемая площадь 90.7м²

    ЦАО, Красная Пресня! Помещение свободного назначения, 300 метров от ст. м. Краснопресненская (м. Баррикадная). Продажа помещения общей площадью 90,7 кв.м, расположенного на 1-м этаже жилого дома, отдельный вход с фасада и запасной - со двора, потолки...
    • 90.7 м²
    • 1/8 эт.
    48 000 000 Р
    Агент
    +7 (903) Показать номер
    Посмотреть контакты

    Не нашли подходящего объявления?

    Оставьте заявку, и наши риэлторы подберут торговое помещение в районе Москвы

    (0)