Россия, Москва, просп. Прокшинский, 5
50 501 847 Р 660 400 $ или 559 100

Информация об помещении

1
Этаж

Состояние и оснащение

Количество этажей
16
Развернуть
Агент
+7 (938) 656-74-88
Начать чат с агентом

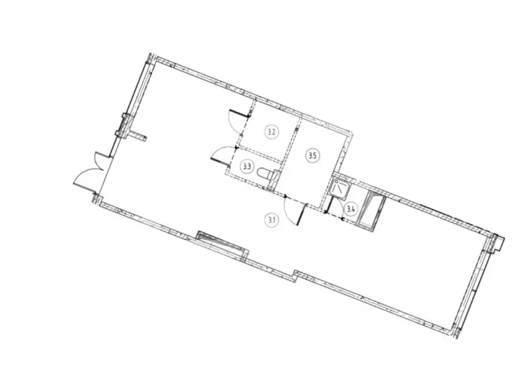
Торговая площадь в Москва просп. Прокшинский, 5 (96 м)

978557-f . Предлагаем помещение свободного назначения формата street-retail в ЖК Прокшино , площадью 95.7 кв. м, расположенное на первом этаже 16-этажного жилого дома. Корпус: 7.1.1. Без комиссии для покупателя.Преимущества объекта:-ЖК состоит из 49 корпусов переменной этажности (от 13 до 19 этажей), рассчитанных на 12 114 квартиры;-шаговая доступность от станции метро Прокшино (15 минут пешком);-удобная транспортная доступность: 800 м до Филатовского шоссе, 2 км до Новомихайловского шоссе, 3.5 км до Калужского шоссе, 4.2 км до Филимонковского шоссе;-плотный жилой массив;-развитая инфраструктура района;-высокий автомобильный и пешеходный трафик;-отлично просматривается, находится в легком доступе для потенциальных клиентов;-гибкая планировка, позволяющая адаптировать пространство под различные нужды;-витринное остекление;-возможность размещения вывески;-наземная парковка.Технические параметры объекта:-отдельный вход с улицы.-электрическая мощность: 19.14 кВт.-высота потолков: 5.6 м.Свяжитесь с нами для получения дополнительной информации

Читать полностью
    Позвонить Написать
    50 501 847 Р660 400 $ или 559 100
    Агент
    +7 (938) 656-74-88
    Начать чат с агентом
    Похожие предложения
    Торговая площадь в Москва просп. Прокшинский, 5 (96 м) - Фото 1
    Торговая площадь в Москва просп. Прокшинский, 5 (96 м) - Фото 2
    978557-f . Предлагаем помещение свободного назначения формата street-retail в ЖК Прокшино , площадью 95.7 кв. м, расположенное на первом этаже 16-этажного жилого дома. Корпус: 7.1.1. Без комиссии для покупателя.Преимущества объекта:-ЖК состоит из 49...
    • 1/16 эт.
    50 501 847 Р
    Агент
    +7 (938) Показать номер
    Посмотреть контакты
    Торговая площадь в Москва ул. Усадебный Парк, 1 (135 м) - Фото 1
    Торговая площадь в Москва ул. Усадебный Парк, 1 (135 м) - Фото 2
    На продажу предлагается готовый арендный бизнес с арендатором.Помещение площадью 135 кв.м, находится на первой линии домов, в ЖК Середневский лес , возле помещения остановка общественного транспорта, интенсивный пешеходный и автомобильный трафик вдоль...
    • 1/9 эт.
    50 400 000 Р
    Агент
    +7 (981) Показать номер
    Посмотреть контакты
    м. Лесопарковая, МКАД 34 км, 670 м2, Здание (ном. объекта: 8231) - Фото 1
    м. Лесопарковая, МКАД 34 км, 670 м2, Здание (ном. объекта: 8231) - Фото 2
    м. Лесопарковая, МКАД 34 км, 670 м2, Здание (ном. объекта: 8231) - Фото 3
    м. Лесопарковая, МКАД 34 км, 670 м2, Здание (ном. объекта: 8231) - Фото 4
    м. Лесопарковая, МКАД 34 км, 670 м2, Здание (ном. объекта: 8231) - Фото 5
    м. Лесопарковая, МКАД 34 км, 670 м2, Здание (ном. объекта: 8231) - Фото 6
    м. Лесопарковая, МКАД 34 км, 670 м2, Здание (ном. объекта: 8231) - Фото 7
    м. Лесопарковая, МКАД 34 км, 670 м2, Здание (ном. объекта: 8231) - Фото 8
    общая площадь 670м², реализуемая площадь 670м²

    Продается отдельно стоящее одноэтажное здание 670 м2. Земельный участок (пятно застройки) 740 м2 в долгосрочной аренде. 2 минуты от станции метро Лесопарковая. Центральные коммуникации. Высота потолков 3,25 метра, панорамные окна. 1997 года постройки....
    • 670 м²
    • 1 этаж
    50 000 000 Р
    Агент
    +7 (968) Показать номер
    Агентство
    Телус
    Посмотреть контакты
    м. Люблино, Люблинская ул., Здание 235 м2, Торговое помещение (ном. ... - Фото 1
    м. Люблино, Люблинская ул., Здание 235 м2, Торговое помещение (ном. ... - Фото 2
    м. Люблино, Люблинская ул., Здание 235 м2, Торговое помещение (ном. ... - Фото 3
    м. Люблино, Люблинская ул., Здание 235 м2, Торговое помещение (ном. ... - Фото 4
    м. Люблино, Люблинская ул., Здание 235 м2, Торговое помещение (ном. ... - Фото 5
    м. Люблино, Люблинская ул., Здание 235 м2, Торговое помещение (ном. ... - Фото 6
    общая площадь 263.1м², реализуемая площадь 263.1м²

    Продается здание, первая линия домов 264 м2. Год строительства 1987. Высота потолков 2,8 метров. Стены - кирпич. Сейчас используется как магазин. Здание расположено на участке 2131 м2. ВРИ участка: магазины. Можно построить 1500 м2. Первая линия домов...
    • 263.1 м²
    • 1 этаж
    50 000 000 Р
    Агент
    +7 (965) Показать номер
    Агентство
    Телус
    Посмотреть контакты
    Торговая площадь в Москва ул. Петра Кончаловского, 7к1 (85 м) - Фото 1
    Торговая площадь в Москва ул. Петра Кончаловского, 7к1 (85 м) - Фото 2
    1100435-f . Предлагаем к приобретению помещение свободного назначения формата Street Retail, площадью 84,5 кв. м., расположенное на первом этаже жилого дома в ЖК Shagal. Без комиссии для покупателя.Преимущества объекта:-комплекс состоит из 66 корпусов...
    • 1/18 эт.
    50 700 000 Р
    Агент
    +7 (938) Показать номер
    Посмотреть контакты

    Не нашли подходящего объявления?

    Оставьте заявку, и наши риэлторы подберут торговое помещение в районе Москвы

    (0)